物件画像を詳しく見る

2階LDKは日当たり良好♪◆2SLDK◆物干しスペース◆使いやすい家事動線
物件概要
<令和8年4月完成予定>●千手小学校、南中学校区の新築2SLDK♪ ●脱衣室に物干しスペース完備。使いやすい家事動線! ●2階LDKは日当たり良好♪開放感のある空間に ●前面道路には消雪パイプも完備で冬も安心!
-
物件コード
00007-200750
-
物件名
長岡市草生津2丁目 建売住宅
-
交通
駅:信越線 長岡駅から徒歩24分、バス:健康センター前から徒歩5分
-
所在地
新潟県長岡市草生津2丁目88番1
物件へのルート表示
-
物件種別
新築一戸建て
-
構造
木造
-
階建
地上2階建
-
建ぺい率/容積率
60%/200%
-
建物面積
92.54㎡
/27.99坪
-
土地面積
114.71㎡
/34.69坪
-
築年月
2026年4月完成予定
-
入居時期
相談
-
用途地域
第1種住居地域
-
地目
宅地
-
都市計画
市街化区域
-
形状
-
-
道路
西側:市道5.8m
-
私道
-
-
その他の制限
-
物件詳細情報
-
所在階/階数
-
-
号室
-
-
販売価格
23,800,000円
-
方位
西
-
間取り
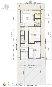
2LDK (洋室:7、5.6)、LDK15.8、建築確認番号:NK第25長00594号
-
専有面積
-
-
バルコニー面積
-
-
その他面積
-
-
駐車場
-
-
管理費
-
-
修繕積立金
-
-
現況
指定なし
-
仲介手数料
なし
-
利用制限
-
-
学校区
千手小学校(360m)・南中学校(746m)
-
設備
整形地、日当り良好、閑静な住宅街、BELS/省エネ基準適合認定建物、LDK15畳以上、全室フローリング、駐車場2台以上、南向き、TVインターホン、複層ガラス、ディンプルキー、システムキッチン、IHクッキングヒーター、3口コンロ、追いだき機能付き、バス1坪以上、温水洗浄便座、シャワー付き洗面台、エアコン、24時間換気システム、省エネ給湯、高気密高断熱住宅、都市ガス、上水道、下水道、電気、ウォークインクローゼット、全居室収納あり、床下収納、シューズBOX、照明器具付き
-
取引態様
売主
-
情報登録日
2025/12/06
-
次回更新予定日
2026/01/05
-
取引条件有効期限
2026/02/01
備考
・第三種高度地区
・22条指定区域
※物件掲載内容と現況に相違がある場合は現況を優先と致します。
詳細はお気軽にお問い合わせください。
担当:沼田
携帯:070-8449-3715
取扱い会社
有限会社 一代工務店