物件画像を詳しく見る

商業施設が近く便利♪保育園・小学校も徒歩圏内◆収納充実♪◆対面キッチン仕様
物件概要
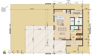
◆石川小学校まで徒歩約10分♪◆スーパー・ホームセンターも近く♪ ◆シューズクローク、食品庫、ウォークインクローゼット完備で収納スペース充実。 ◆キッチン横には便利な収納スペース付き。パントリーや日用品のストック、趣味の道具収納など、自由な使い方が可能です。 ◆対面キッチンはリビングにいるご家族の様子を見ながら調理出来ますので、小さなお子様がいるご家族でも安心です。 ◆屋根付きの玄関ポーチは、雨や雪の日でも快適に出入りできます。
-
物件コード
00007-200743
-
物件名
加茂市新栄町 建売住宅 2号棟
-
交通
駅:信越線 加茂駅から徒歩16分、バス:市役所前から徒歩6分
-
所在地
新潟県加茂市新栄町1904番5
物件へのルート表示
-
物件種別
新築一戸建て
-
構造
木造
-
階建
地上2階建
-
建ぺい率/容積率
60%/200%
-
建物面積
86.74㎡
/26.23坪
-
土地面積
192.34㎡
/58.18坪
-
築年月
2025年12月完成予定
-
入居時期
随時入居(引き渡し)可
-
用途地域
準工業地域
-
地目
宅地
-
都市計画
非線引き都市計画区域
-
形状
-
-
道路
東南側:市道(位置指定道路に指定あり)6.0m
-
私道
-
-
その他の制限
-
物件詳細情報
-
所在階/階数
-
-
号室
-
-
販売価格
25,800,000円
-
方位
南東
-
間取り
3LDK (洋室:7、6、6)、LDK14.5
-
専有面積
-
-
バルコニー面積
-
-
その他面積
-
-
駐車場
-
-
管理費
-
-
修繕積立金
-
-
現況
指定なし
-
仲介手数料
なし
-
利用制限
-
-
学校区
石川小学校(455m)・葵中学校(1,471m)
-
設備
前面道路6m以上、日当り良好、スーパー近く、BELS/省エネ基準適合認定建物、フラット35S適合、全室フローリング、駐車場2台以上、TVインターホン、複層ガラス、ディンプルキー、システムキッチン、IHクッキングヒーター、3口コンロ、追いだき機能付き、バス1坪以上、温水洗浄便座、シャワー付き洗面台、エアコン、24時間換気システム、省エネ給湯、高気密高断熱住宅、都市ガス、上水道、下水道、電気、ウォークインクローゼット、全居室収納あり、床下収納、シューズインクローゼット、照明器具付き、即引き渡し可能
-
取引態様
売主
-
情報登録日
2025/12/12
-
次回更新予定日
2026/01/05
-
取引条件有効期限
2026/02/01
備考
※物件掲載内容と現況に相違がある場合は現況を優先と致します。
詳細はお気軽にお問い合わせください。
担当:小林
携帯:090-1438-1795
取扱い会社
有限会社 一代工務店