※画像はイメージとなり実物と異なる場合があります。
物件画像を詳しく見る

スーパー、コンビニ、小学校、保育園徒歩圏内◆乾太くん設置♪◆1階にファミリークローク
物件概要
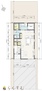
◆スーパー、コンビニ徒歩圏内でお買い物にも便利な立地です! ◆四郎丸小学校、保育園も徒歩圏内でお子様の通学も安心です。 ◆ランドリールームには乾太くんを設置。ファミリークロークも隣接してあり、洗濯から片付けまで楽々♪ ◆脱衣室と分かれた洗面台は、気兼ねなく使用できます。 ◆7帖の洋室はウォークインクローゼット付きです。◆ファミリークロークの近くのパウダールームは、お化粧とあわせて着替えもできる効率的な間取りです。◆エントランスクロークやパントリーもあり、収納力豊富で住空間もスッキリです!
-
物件コード
00007-200742
-
物件名
長岡市前田1丁目 建売住宅 2号棟
-
交通
駅:信越線 長岡駅から徒歩24分、バス:前田町から徒歩3分
-
所在地
新潟県長岡市前田1丁目97番
物件へのルート表示
-
物件種別
新築一戸建て
-
構造
木造
-
階建
地上2階建
-
建ぺい率/容積率
50%/100%
-
建物面積
91.71㎡
/27.74坪
-
土地面積
168㎡
/50.82坪
-
築年月
2026年1月完成予定
-
入居時期
相談
-
用途地域
第1種低層住居専用地域
-
地目
田 (現状:宅地)
-
都市計画
市街化区域
-
形状
-
-
道路
-
-
私道
-
-
その他の制限
-
物件詳細情報
-
所在階/階数
-
-
号室
-
-
販売価格
26,990,000円
-
方位
南
-
間取り
3LDK (洋室:7、6、6)、LDK16.8、建築確認番号:NK第25長00366号
-
専有面積
-
-
バルコニー面積
-
-
その他面積
-
-
駐車場
-
-
管理費
-
-
修繕積立金
-
-
現況
指定なし
-
仲介手数料
なし
-
利用制限
-
-
学校区
四郎丸小学校(631m)・南中学校(1,465m)
-
設備
日当り良好、閑静な住宅街、スーパー近く、BELS/省エネ基準適合認定建物、フラット35S適合、LDK15畳以上、全室フローリング、駐車場2台以上、南向き、庭あり、TVインターホン、複層ガラス、ディンプルキー、システムキッチン、IHクッキングヒーター、浄水器、3口コンロ、追いだき機能付き、バス1坪以上、温水洗浄便座、シャワー付き洗面台、エアコン、24時間換気システム、省エネ給湯、高気密高断熱住宅、都市ガス、上水道、下水道、電気、ウォークインクローゼット、全居室収納あり、床下収納、シューズBOX、照明器具付き
-
取引態様
売主
-
情報登録日
2025/12/06
-
次回更新予定日
2025/12/30
-
取引条件有効期限
2026/02/01
備考
・第一種高度地区
・22条指定区域
・高さ制限:10m
・外壁後退:なし
※物件掲載内容と現況に相違がある場合は現況を優先と致します。
詳細はお気軽にお問い合わせください。
担当:高橋
携帯:080-1223-9349
取扱い会社
有限会社 一代工務店