脱衣室・ユニットバス ガス衣類乾燥機「乾太くん」設置
物件画像を詳しく見る

敷地は77坪!◆スーパー・コンビニ、小中学校も徒歩圏内◆乾太くん設置◆WIC
物件概要
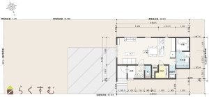
<令和8年1月完成予定>◆敷地は余裕のある77坪となっています。 ◆半田小学校・鏡が沖中学校エリアです。 ◆スーパー・コンビニ等、小中学校も徒歩圏内です。 ◆LDKは17帖、対面キッチンとなっています。 ◆脱衣室には乾太くんデラックスが設置されています。 ◆寝室にはウォークインクローゼットが設置されています。 ◆洗面台を脱衣室と別にすることで、プライバシーに配慮しました。 ◆お庭10坪以上付きで、お子様の遊び場や、BBQ、家庭菜園などお楽しみ頂けます。 ◆西側には市の水路が有ります。
-
物件コード
00007-200735
-
物件名
柏崎市半田1丁目 建売住宅
-
交通
駅:信越線 茨目駅から徒歩19分、バス:半田中央から徒歩4分
-
所在地
新潟県柏崎市半田1丁目字前谷内975番1
物件へのルート表示
-
物件種別
新築一戸建て
-
構造
木造
-
階建
地上2階建
-
建ぺい率/容積率
70%/200%
-
建物面積
89.23㎡
/26.99坪
-
土地面積
257㎡
/77.74坪
-
築年月
2026年1月完成予定
-
入居時期
相談
-
用途地域
無指定
-
地目
宅地
-
都市計画
非線引き都市計画区域
-
形状
-
-
道路
北側:市道 約5.5m~5.6m
-
私道
-
-
その他の制限
-
物件詳細情報
-
所在階/階数
-
-
号室
-
-
販売価格
24,800,000円
-
方位
東
-
間取り
3LDK (洋室:7、6、6)、LDK17、建築確認番号:NK第25長00154号
-
専有面積
-
-
バルコニー面積
-
-
その他面積
-
-
駐車場
-
-
管理費
-
-
修繕積立金
-
-
現況
指定なし
-
仲介手数料
なし
-
利用制限
-
-
学校区
半田小学校(419m)・鏡が沖中学校(772m)
-
設備
角地、整形地、日当り良好、スーパー近く、BELS/省エネ基準適合認定建物、フラット35S適合、LDK15畳以上、全室フローリング、駐車場2台以上、駐車場3台以上、南向き、庭あり、TVインターホン、複層ガラス、ディンプルキー、システムキッチン、IHクッキングヒーター、3口コンロ、追いだき機能付き、バス1坪以上、温水洗浄便座、シャワー付き洗面台、エアコン、24時間換気システム、省エネ給湯、高気密高断熱住宅、都市ガス、上水道、下水道、電気、ウォークインクローゼット、全居室収納あり、床下収納、シューズBOX、照明器具付き、バリアフリー
-
取引態様
売主
-
情報登録日
2025/12/06
-
次回更新予定日
2025/12/30
-
取引条件有効期限
2026/02/01
備考
・22条指定区域
※物件掲載内容と現況に相違がある場合は現況を優先と致します。
詳細はお気軽にお問い合わせください。
担当:藤崎
携帯:090-2763-5443
取扱い会社
有限会社 一代工務店