前面道路の幅員は7.8mで、お車の苦手な方も安心ですね♪
物件画像を詳しく見る

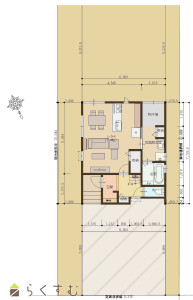
収納豊富な住まい♪洗面脱衣室の隣に物干場を配置した家事ラク動線!3台並列駐車可能♪シューズクローク有
物件概要
洗面脱衣室の隣に物干場を配置した家事ラク動線!造成された住宅地の65坪の敷地です。 荒浜小学校区・松浜中学校区エリアです。前面道路は7.4mと広く駐車も楽々です。 土地の形が良く3台並列駐車可能です。 玄関にシューズクロークが配置されています。 料理をしながらLDKを見渡せる対面キッチンとなっています。 2階寝室にはウオークインクローゼットを設置しました。
-
物件コード
00007-200715
-
物件名
柏崎市松波2丁目 建売住宅 1号棟
-
交通
駅:越後線 東柏崎駅から徒歩27分、バス:松波1丁目から徒歩5分
-
所在地
新潟県柏崎市松波2丁目字上ノ島2854番1
物件へのルート表示
-
物件種別
新築一戸建て
-
構造
木造
-
階建
地上2階建
-
建ぺい率/容積率
60%/200%
-
建物面積
92.4㎡
/27.95坪
-
土地面積
214.94㎡
/65.01坪
-
築年月
2025年9月(築3ヶ月)
-
入居時期
随時入居(引き渡し)可
-
用途地域
第1種中高層住居専用地域
-
地目
宅地
-
都市計画
非線引き都市計画区域
-
形状
-
-
道路
北側:市道約7.4m
-
私道
-
-
その他の制限
-
物件詳細情報
-
所在階/階数
-
-
号室
-
-
販売価格
22,800,000円
-
方位
東
-
間取り
3LDK (洋室:7、6、6)、LDK14、物干し場あり
-
専有面積
-
-
バルコニー面積
-
-
その他面積
-
-
駐車場
-
-
管理費
-
-
修繕積立金
-
-
現況
指定なし
-
仲介手数料
なし
-
利用制限
-
-
学校区
荒浜小学校(1,689m)・松浜中学校(1,298m)
-
設備
整形地、前面道路6m以上、日当り良好、閑静な住宅街、スーパー近く、BELS/省エネ基準適合認定建物、フラット35S適合、全室フローリング、駐車場2台以上、駐車場3台以上、庭あり、TVインターホン、複層ガラス、ディンプルキー、システムキッチン、IHクッキングヒーター、3口コンロ、追いだき機能付き、バス1坪以上、温水洗浄便座、シャワー付き洗面台、エアコン、24時間換気システム、省エネ給湯、高気密高断熱住宅、都市ガス、上水道、下水道、電気、ウォークインクローゼット、全居室収納あり、床下収納、シューズインクローゼット、照明器具付き、即引き渡し可能、バリアフリー
-
取引態様
売主
-
情報登録日
2025/12/21
-
次回更新予定日
2026/01/05
-
取引条件有効期限
2026/02/01
備考
※物件掲載内容と現況に相違がある場合は現況を優先と致します。
詳細はお気軽にお問い合わせください。
担当:藤崎
携帯:090-2763-5443
取扱い会社
有限会社 一代工務店