賃貸ピフォアカルスⅣ 詳細
 3号室
お気に入り


外観

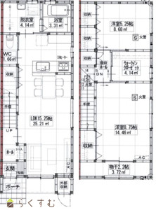
間取り

玄関

内観

内観

内観

内観

内観

内観

内観

内観

内観

内観

内観

内観

内観

内観

内観

内観

内観

内観

印刷用地図

物件画像を詳しく見る
物件概要
  • 賃料
    9.3万円/月
  • 管理費
    なし
  • 敷/礼
    2ヶ月/ 1ヶ月
  • 間取り
    2LDK (洋室:8.75、5.25)、LDK15.25、ウォークインクローゼット、外部収納
  • 広さ
    82.63㎡ /24.99坪
  • 階建
    地上2階建
  • 築年数
    2026年2月(築2ヶ月)
  • 種別
    アパート・マンション・一戸建て
  • 住所
    新潟県長岡市大山2丁目6-16 物件へのルート表示
  • 交通
    駅:上越新幹線 長岡駅から徒歩47分、バス:大山2丁目から徒歩2分

  • 物件コード 00004-101051
  • 物件名 ピフォアカルスⅣ
  • 交通 駅:上越新幹線 長岡駅から徒歩47分、バス:大山2丁目から徒歩2分
  • 所在地 新潟県長岡市大山2丁目6-16 物件へのルート表示
  • 物件種別 アパート・マンション・一戸建て
  • 総戸数 3戸
  • 構造 木造
  • 階建 地上2階建
  • 所在階/階数 1階/2階
  • 号室 3号室
  • 専有面積 82.63㎡ /24.99坪
  • 方位 指定なし
  • 間取り 2LDK (洋室:8.75、5.25)、LDK15.25、ウォークインクローゼット、外部収納
  • 賃料 9.3万円/月
  • 管理費 -
  • 礼金 1ヶ月
  • 敷金 2ヶ月
  • 共益費 -
  • ほか初期費用 -
  • その他諸費用 -
  • 更新料 -
  • 火災(家財)保険 要加入
  • 駐車場
    縦列2台
  • 町内費 450円
  • バイク料金 -
  • 鍵交換費 -
  • 清掃料 -
  • 更新事務手数料 -
  • 保証区分 連帯保証人+緊急連絡先
  • 保証会社 区分:指定なし

    -
  • 連帯保証人 [区分]  要 -
  • 仲介手数料 102,300円
  • 手数料負担割合 貸主:0%   借主:100%
  • 手数料配分割合 元付:100%   客付:0%  
  • 築年月 2026年2月(築2ヶ月)
  • 利用制限 ペット:不可、楽器:不可
  • 学校区 希望が丘小学校(424m)・西中学校(406m)
  • 設備 公園そば、外部専用物置、LDK12畳以上、メゾネット、築5年以内、駐車場2台無料、角住居、テンキー、システムキッチン、IHクッキングヒーター、バストイレ別、追いだき機能付き、ユニットバス、温水洗浄便座、洗面所独立、エアコン2基、都市ガス、公営水道、下水、サンルーム、全居室フローリング、洗濯機置場 室内、脱衣所、ウォークインクロゼット、クロゼット、シューズBOX、BS端子・アンテナ、TVモニター付きインターホン、インターネット無料、各居室照明、未入居、メゾネット式、新築・築浅物件
  • 入居時期 即入居可
  • 取引態様 仲介
  • 情報登録日 2026/04/03
  • 次回更新予定日 2026/04/18
備考
連帯保証人の極度額は500万円になります。
家財保険要加入 有限会社大川産業にて保険説明有り。
取扱い会社
有限会社 五十嵐商事
  • TEL 0258-28-1414
  • 所在地 新潟県長岡市三ツ郷屋2丁目5-23
  • 交通 西長岡案内所バス停徒歩2分
  • 営業時間 平日9時~18時・土曜日10時~15時(3月休みなし)/定休日:日曜、祝祭日、年末年始(12/27~1/4)
  • 免許番号 新潟県知事(14)1645号
  • 所属団体名 新潟県宅地建物取引業協会 長岡支部
  • 取引態様 仲介
Copyright (C) 株式会社 コモンライフ・コーポレーション. All Rights Reserved.
不動産検索サイト「らくすむ」及び関連サイトに記載の不動産情報は、会員規約に則り、情報提供会社様の責任のもとに発信されております。
不動産の賃借、購入に関しては賃借者、購入者ご自身が情報を確認され、会社企業様から説明を受けられたうえで判断をお願いいたします。
不動産検索サイト「らくすむ」及び関連サイトに記載の不動産情報、写真、デザイン、コンテンツなどの無断転載・転用・複製など禁止します。