1
物件掲載企業数:
301
社
|賃貸物件:
3,175
件|売買物件:
3,245
件|今週の登録物件:
72
件
閲覧中のブラウザ(インターネットエクスプローラー)は非推奨ブラウザです。
物件が正しく表示されなかったり、正しく検索されない場合があります。最新のブラウザ(Google Chrome・Edgeなど)にてご利用お願いいたします。
Google Chrome
Microsoft Edge
アパート・マンション・一戸建て
駐車場
貸土地
店舗
事務所
倉庫・工場
新築分譲マンション
中古マンション
新築一戸建て
中古一戸建て
売土地・分譲地
その他(投資物件など)
マンション
一戸建て
土地
ホーム
>
会社情報
>
物件種別選択
> 物件一覧
全エリア
の
新築一戸建て
物件情報
163件
該当しました。
<前のページ
1
2
3
4
5
6
7
8
9
次のページ>
表示切替:
一覧表示
/
地図表示
並び替え:
指定なし
新着順
価格が安い順
価格が高い順
画像
物件名/所在地/取扱店
詳細
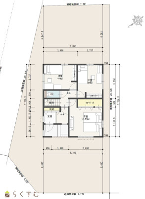
新築!平家の建売住宅
【新築】春日新田1丁目 平家建
新潟県上越市春日新田1丁目3-49
株式会社 お不動さん
価格
:
27,800,000
円
土地面積
:297.53㎡ /90坪
建物面積
:67.49㎡ /20.41坪
間取り
:3LDK
築年月
:2025年10月
アパート並みの家賃で憧れの新築マイホーム!
弓町1新築住宅
新潟県長岡市弓町1丁目2-8
アパマンショップ長岡東店 有限会社信濃不動産
価格
:
27,800,000
円
土地面積
:155.96㎡ /47.17坪
建物面積
:91.91㎡ /27.8坪
間取り
:3LDK
築年月
:不詳
スーパーやコンビニが徒歩圏内◆2SLDK◆3台並列駐車可◆乾太くん設置◆前面道路に消パイあり♪
長岡市中島1丁目 建売住宅
新潟県長岡市中島1丁目291番20
有限会社 一代工務店
価格
:
27,800,000
円
土地面積
:154.64㎡ /46.77坪
建物面積
:91.71㎡ /27.74坪
間取り
:2LDK
築年月
:2026年5月
\駐車場完備!長岡のお店で相談できます/【当日見学予約大歓迎】 ■国道17号線近くアクセス良好 ■玄関収納・全居室収納・廊下収納など収納充実 ■各階にトイレ完備
(新築住宅)長岡市中沢 第2 2号棟
新潟県長岡市中沢2丁目1146-5付近
新潟土地建物販売センター 株式会社
価格
:
27,800,000
円
土地面積
:158.89㎡ /48.06坪
建物面積
:101.25㎡ /30.62坪
間取り
:4LDK
築年月
:2026年7月
【北海道仕様×高気密高断熱の平屋住宅】 ■二人暮らしや一人暮らしに最適な2LDK ■寒い冬も安心!寒冷地用エアコン2台付き ■宮内商業施設までお車3分
( 新築住宅)長岡市摂田屋
新潟県長岡市摂田屋1-11-5付近
新潟土地建物販売センター 株式会社
価格
:
27,800,000
円
土地面積
:155㎡ /46.88坪
建物面積
:62.93㎡ /19.03坪
間取り
:2LDK
築年月
:2026年5月
オール電化!自然落雪屋根♪商業施設徒歩圏内◆2階LDK◆家事ラク動線◆角地
十日町市西本町2丁目 建売住宅 2号棟
新潟県十日町市西本町2丁目9番24
有限会社 一代工務店
価格
:
27,800,000
円
土地面積
:183㎡ /55.35坪
建物面積
:94.6㎡ /28.61坪
間取り
:3LDK
築年月
:2026年3月
☆2026年6月完成予定 ☆設計住宅性能評価取得済み ☆小学校徒歩圏内♪ ☆新潟バイパス竹尾ICまで車で5分 ☆食洗機・浴室暖房乾燥機完備 ☆オールフローリング ☆駐車は並列2台可
【テイラーハウス】新潟市東区山木戸五丁目
新潟県新潟市東区山木戸17番街区
株式会社ハーツリアルエステート 新潟支店
価格
:
27,980,000
円
土地面積
:105.38㎡ /31.87坪
建物面積
:93.98㎡ /28.42坪
間取り
:4LDK
築年月
:2026年6月
栃尾支所、トチオ―レに近い3LDKの家。1階の内装はヒノキ無垢材を多用しています。
金町新築住宅
新潟県長岡市金町1丁目4
村山ハウス(株)
価格
:
28,000,000
円
土地面積
:199.53㎡ /60.35坪
建物面積
:110.16㎡ /33.32坪
間取り
:3LDK
築年月
:2024年11月
1階・2階にWIC+回遊動線◆LDKは3面採光◆角地◆スーパー等近く便利♪◆ガス衣類乾燥機「乾太くん」付き
長岡市新保5丁目 建売住宅 1号棟
新潟県長岡市新保5丁目404番8、423番6
有限会社 一代工務店
価格
:
28,500,000
円
土地面積
:160.5㎡ /48.55坪
建物面積
:89.23㎡ /26.99坪
間取り
:3LDK
築年月
:2026年5月
【長岡市川崎に省エネで快適な二重断熱×高気密住宅】 ■前面道路に消雪パイプ完備 ■駐車3台可能 ■エアコン2台完備 ■パントリー・リビング・2階ホール収納付で収納力充実
( 新築住宅)長岡市川崎2丁目
新潟県長岡市川崎2丁目2488-15付近
新潟土地建物販売センター 株式会社
価格
:
28,800,000
円
土地面積
:128㎡ /38.72坪
建物面積
:89.43㎡ /27.05坪
間取り
:3LDK
築年月
:2025年12月
2025年11月完成。リビング隣の6帖の空間。子どもの遊びや昼寝に最適、将来は仕切って客間や寝室にも。洗面室は3帖あり、洗う・干す・しまうが1室で完結。キッチンと洗面室が隣接しており、家事動線がスムーズ。
花園3丁目 新築戸建
新潟県長岡市花園3丁目
有限会社 ブライトサクセス
価格
:
28,800,000
円
土地面積
:145.96㎡ /44.15坪
建物面積
:92.74㎡ /28.05坪
間取り
:4LDK
築年月
:2025年11月
豊田小学区エリア。マルイまで徒歩7分で買い物もラクラク♪国道へのアクセスも良く、休日のお出かけも便利な立地です♪4LDKの広々LDK!
花園 新築建売住宅 豊田小学校区
新潟県長岡市花園3丁目10番15
ダイエープロビス株式会社
価格
:
28,800,000
円
土地面積
:145.96㎡ /44.15坪
建物面積
:92.74㎡ /28.05坪
間取り
:4LDK
築年月
:2025年11月
\長岡東バイパス近く!アクセス良好/ ■前面道路16m、歩道あり ■駐車2台可能 ■スーパーなどの商業施設が徒歩圏内
(新築住宅)長岡市花園
新潟県長岡市花園3丁目1ー16付近
新潟土地建物販売センター 株式会社
価格
:
28,800,000
円
土地面積
:145.96㎡ /44.15坪
建物面積
:92.74㎡ /28.05坪
間取り
:4LDK
築年月
:2025年11月
\駐車場完備!長岡のお店で相談できます/【当日見学予約大歓迎】 ■長岡事務所で相談OK ■アクロスプラザ長岡店まで車約2分 ■長岡東バイパスまでのアクセス良好 ■前面道路消雪パイプ完備
(新築住宅)長岡市川崎 第1 5・6号棟
新潟県長岡市川崎1-2612-2付近
新潟土地建物販売センター 株式会社
価格
:
28,800,000
円
土地面積
:195.74㎡ /59.21坪
建物面積
:94.77㎡ /28.66坪
間取り
:3LDK
築年月
:2026年7月
【当日見学予約大歓迎】 ■アクロスプラザ長岡まで車約3分で毎日の暮らしが便利 ■長岡東バイパス至近!通勤やお出かけに便利 ■住宅前は車通りが少なく安心
(新築住宅)長岡市美沢 第1 1号棟
新潟県長岡市美沢2丁目190-3付近
新潟土地建物販売センター 株式会社
価格
:
28,800,000
円
土地面積
:148.74㎡ /44.99坪
建物面積
:95.58㎡ /28.91坪
間取り
:3LDK
築年月
:2026年7月
南向き・角地の新築戸建てです! 1部ご希望クロス貼替可能です。
滝寺建売
新潟県上越市滝寺2444-18
ミニミニFC上越店 ㈱インカムハウジング
価格
:
29,500,000
円
土地面積
:191㎡ /57.77坪
建物面積
:135.2㎡ /40.89坪
間取り
:3LDK
築年月
:2025年9月
\駐車場完備!長岡のお店で相談できます/【当日見学予約大歓迎】 ■各フロア収納豊富な住まい ■生活施設充実のエリアに新規分譲地 ■国道8号線が車約2分!生活利便性良好 ■日越小・西中学校区
(新築住宅)長岡市南七日町 第1 4・6号棟
新潟県長岡市南七日町30-7付近
新潟土地建物販売センター 株式会社
価格
:
29,800,000
円
土地面積
:165.5㎡ /50.06坪
建物面積
:95.58㎡ /28.91坪
間取り
:3LDK
築年月
:2026年10月
【ウオロク長岡店・大手大橋近く】オール電化×高気密高断熱住宅 ■前面道路に消雪パイプ有 ■駐車3台可能 ■熱交換換気扇&二重断熱で快適な住まい ■寒冷地用エアコン2台付
( 新築住宅)長岡市中島
新潟県長岡市中島3丁目4-4付近
新潟土地建物販売センター 株式会社
価格
:
29,800,000
円
土地面積
:133.6㎡ /40.41坪
建物面積
:87.35㎡ /26.42坪
間取り
:3LDK
築年月
:2026年4月
【当日見学予約大歓迎】 ■川崎インター至近!お出かけや通勤に便利 ■車で5分圏内に多数生活施設有 ■前面道路6m幅員×消雪パイプ完備
(新築住宅)長岡市永田 第1 1号棟
新潟県長岡市永田1丁目2-21付近
新潟土地建物販売センター 株式会社
価格
:
29,800,000
円
土地面積
:148.97㎡ /45.06坪
建物面積
:95.58㎡ /28.91坪
間取り
:3LDK
築年月
:2026年9月
\駐車場完備!長岡のお店で相談できます/【当日見学予約大歓迎】 ■長岡事務所で相談OK ■アクロスプラザ長岡店まで車約2分 ■長岡東バイパスまでのアクセス良好 ■前面道路消雪パイプ完備
(新築住宅)長岡市川崎 第1 3・4号棟
新潟県長岡市川崎1-2612-2付近
新潟土地建物販売センター 株式会社
価格
:
29,800,000
円
土地面積
:155.78㎡ /47.12坪
建物面積
:95.98㎡ /29.03坪
間取り
:4LDK
築年月
:2026年7月
表示切替:
一覧表示
/
地図表示
並び替え:
指定なし
新着順
価格が安い順
価格が高い順
価格は物件の代金総額を表示しており、消費税が課税される場合は税込み価格です。
建築条件付き土地価格には、建物価格は含まれません。
物件情報の詳細については取り扱い店までお問い合わせください。
完成予想図はいずれも外構・植栽・外観等実際のものと異なることが多少あります。
CG合成の画像の場合実際と異なることが多少あります。
完成後1年以上経過したものが未入居として記載される場合があります。ご了承ください。
販売予定物件は販売開始するまで契約または予約の申し込みはできません。
ご購入の場合物件詳細や契約内容についてご自身で十分ご確認いただきますようよろしく御願いします。
建築条件付きとは…その土地に建築する建物の建築請負契約が、一定期間内に成立することを条件として売買される土地のことをいいます。請負契約成立に向けて設計プランを協議するため、土地購入者が希望する建物にするために一定の期間(概ね3ヶ月)交渉期間としその期間内に希望するプランが実現できたかどうかによって土地の購入の判断をします。納得のいくプランができず請負契約が未成立になった場合、土地契約にかかった代金(手付金など)は、すべて返却されます。
163件
該当しました。
<前のページ
1
2
3
4
5
6
7
8
9
次のページ>
0件
がマッチ
基本条件
物件種別
新築一戸建て
価格
下限なし
100万円
250万円
500万円
1000万円
1500万円
2000万円
2500万円
3000万円
3500万円
4000万円
4500万円
5000万円
5500万円
6000万円
6500万円
7000万円
7500万円
8000万円
8500万円
9000万円
9500万円
1億円
~
上限なし
100万円
250万円
500万円
1000万円
1500万円
2000万円
2500万円
3000万円
3500万円
4000万円
4500万円
5000万円
5500万円
6000万円
6500万円
7000万円
7500万円
8000万円
8500万円
9000万円
9500万円
1億円
間取り
ワンルーム
1K
1DK
1LDK
2K
2DK
2LDK
3K
3DK
3LDK
4K
4DK
4LDK以上
専有面積
下限なし
20㎡
30㎡
40㎡
50㎡
60㎡
70㎡
80㎡
90㎡
100㎡
~
上限なし
20㎡
30㎡
40㎡
50㎡
60㎡
70㎡
80㎡
90㎡
100㎡
土地面積
下限なし
60㎡ (約18坪)
70㎡ (約21坪)
80㎡ (約24坪)
90㎡ (約27坪)
100㎡ (約30坪)
110㎡ (約33坪)
120㎡ (約36坪)
130㎡ (約39坪)
140㎡ (約42坪)
150㎡ (約45坪)
160㎡ (約48坪)
170㎡ (約51坪)
180㎡ (約54坪)
190㎡ (約57坪)
200㎡ (約60坪)
250㎡ (約75坪)
300㎡ (約90坪)
~
上限なし
60㎡ (約18坪)
70㎡ (約21坪)
80㎡ (約24坪)
90㎡ (約27坪)
100㎡ (約30坪)
110㎡ (約33坪)
120㎡ (約36坪)
130㎡ (約39坪)
140㎡ (約42坪)
150㎡ (約45坪)
160㎡ (約48坪)
170㎡ (約51坪)
180㎡ (約54坪)
190㎡ (約57坪)
200㎡ (約60坪)
250㎡ (約75坪)
300㎡ (約90坪)
建物面積
下限なし
60㎡ (約18坪)
70㎡ (約21坪)
80㎡ (約24坪)
90㎡ (約27坪)
100㎡ (約30坪)
110㎡ (約33坪)
120㎡ (約36坪)
130㎡ (約39坪)
140㎡ (約42坪)
150㎡ (約45坪)
160㎡ (約48坪)
170㎡ (約51坪)
180㎡ (約54坪)
190㎡ (約57坪)
200㎡ (約60坪)
250㎡ (約75坪)
300㎡ (約90坪)
~
上限なし
60㎡ (約18坪)
70㎡ (約21坪)
80㎡ (約24坪)
90㎡ (約27坪)
100㎡ (約30坪)
110㎡ (約33坪)
120㎡ (約36坪)
130㎡ (約39坪)
140㎡ (約42坪)
150㎡ (約45坪)
160㎡ (約48坪)
170㎡ (約51坪)
180㎡ (約54坪)
190㎡ (約57坪)
200㎡ (約60坪)
250㎡ (約75坪)
300㎡ (約90坪)
坪単価
下限なし
5万円
10万円
15万円
20万円
25万円
30万円
35万円
40万円
45万円
50万円
~
上限なし
5万円
10万円
15万円
20万円
25万円
30万円
35万円
40万円
45万円
50万円
築年数
指定なし
新築
3年以内
5年以内
10年以内
15年以内
20年以内
方位
北
北東
東
南東
南
南西
西
北西
おすすめ条件
ペット可・相談
楽器可・相談
情報公開日
指定なし
本日
3日以内
1週間以内
1ヶ月以内
0件
がマッチ
人気のあるこだわり条件
角地(30)
高台に立地(7)
整形地(127)
前面道路6m以上(119)
日当り良好(138)
閑静な住宅街(125)
スーパー近く(99)
長期優良住宅(23)
設計住宅性能評価付き(37)
耐震構造(46)
BELS/省エネ基準適合認定建物(63)
瑕疵担保保険付き(30)
建物確認・完了検査済証あり(54)
フラット35S適合(42)
LDK15畳以上(137)
全室フローリング(123)
天井高2.5m以上(23)
駐車場2台以上(114)
駐車場3台以上(87)
南向き(79)
庭あり(62)
TVインターホン(157)
複層ガラス(146)
ディンプルキー(84)
システムキッチン(155)
カウンターキッチン(105)
IHクッキングヒーター(124)
浄水器(47)
食器洗浄乾燥機(64)
3口コンロ(110)
ガスコンロ設置済み(22)
追いだき機能付き(132)
浴室暖房乾燥機(43)
バス1坪以上(153)
浴室TV(2)
温水洗浄便座(157)
シャワー付き洗面台(147)
エアコン(117)
床暖房(6)
24時間換気システム(132)
全室エアコン(4)
オール電化(86)
太陽光発電システム(3)
省エネ給湯(129)
高気密高断熱住宅(116)
ウッドデッキ・テラス(21)
ルーフバルコニー(9)
都市ガス(78)
LPG(1)
上水道(160)
下水道(154)
浄化槽(7)
電気(146)
その他水道(1)
ウォークインクローゼット(102)
全居室収納あり(138)
床下収納(68)
シューズインクローゼット(60)
シューズBOX(101)
BS端子(15)
CS(1)
CATV(3)
LAN端子(19)
照明器具付き(101)
即引き渡し可能(55)
バリアフリー(49)
条件に合った物件数は、
0 件
です。
立地・環境
角地(30)
高台に立地(7)
整形地(127)
前面道路6m以上(119)
日当り良好(138)
閑静な住宅街(125)
スーパー近く(99)
構造・工法・仕様
長期優良住宅(23)
設計住宅性能評価付き(37)
耐震構造(46)
BELS/省エネ基準適合認定建物(63)
瑕疵担保保険付き(30)
建物確認・完了検査済証あり(54)
フラット35S適合(42)
面積・間取り
LDK15畳以上(137)
全室フローリング(123)
天井高2.5m以上(23)
駐車・駐輪
駐車場2台以上(114)
駐車場3台以上(87)
採光・向き
南向き(79)
ガーデン
庭あり(62)
管理・防犯
TVインターホン(157)
複層ガラス(146)
ディンプルキー(84)
キッチン
システムキッチン(155)
カウンターキッチン(105)
IHクッキングヒーター(124)
浄水器(47)
食器洗浄乾燥機(64)
3口コンロ(110)
ガスコンロ設置済み(22)
浴室
追いだき機能付き(132)
浴室暖房乾燥機(43)
バス1坪以上(153)
浴室TV(2)
トイレ
温水洗浄便座(157)
洗面所
シャワー付き洗面台(147)
冷暖房・空調
エアコン(117)
床暖房(6)
24時間換気システム(132)
全室エアコン(4)
光熱設備
オール電化(86)
太陽光発電システム(3)
省エネ給湯(129)
高気密高断熱住宅(116)
バルコニー・テラス
ウッドデッキ・テラス(21)
ルーフバルコニー(9)
室内仕様・設備
都市ガス(78)
LPG(1)
上水道(160)
下水道(154)
浄化槽(7)
電気(146)
その他水道(1)
収納
ウォークインクローゼット(102)
全居室収納あり(138)
床下収納(68)
シューズインクローゼット(60)
シューズBOX(101)
電気設備
BS端子(15)
CS(1)
CATV(3)
LAN端子(19)
照明器具付き(101)
費用・入居・引渡・条件
即引き渡し可能(55)
その他
バリアフリー(49)
条件に合った物件数は、
0 件
です。
アパート・マンション・一戸建て
/
駐車場
/
貸土地
/
店舗
/
事務所
/
倉庫・工場
新築分譲マンション
/
中古マンション
/
新築一戸建て
/
中古一戸建て
/
売土地
/
投資物件・その他
マンション
/
一戸建て
/
土地
建てる・リフォーム
物件掲載企業一覧
掲載希望の企業様へ
新潟の不動産情報サイト
サービス利用規約
運営会社
サイトマップ
プライバシーポリシー
お問い合わせ
リンク
Copyright (C)
株式会社 コモンライフ・コーポレーション
. All Rights Reserved.
新潟・長岡・柏崎の賃貸・マンション・アパート・住宅の不動産物件情報サイト
不動産検索サイト「らくすむ」及び関連サイトに記載の不動産情報は、会員規約に則り、情報提供会社様の責任のもとに発信されております。
不動産の賃借、購入に関しては賃借者、購入者ご自身が情報を確認され、会社企業様から説明を受けられたうえで判断をお願いいたします。
不動産検索サイト「らくすむ」及び関連サイトに記載の不動産情報、写真、デザイン、コンテンツなどの
無断転載・転用・複製
など禁止します。