1
物件掲載企業数:
299
社
|賃貸物件:
2,912
件|売買物件:
3,228
件|今週の登録物件:
348
件
閲覧中のブラウザ(インターネットエクスプローラー)は非推奨ブラウザです。
物件が正しく表示されなかったり、正しく検索されない場合があります。最新のブラウザ(Google Chrome・Edgeなど)にてご利用お願いいたします。
Google Chrome
Microsoft Edge
アパート・マンション・一戸建て
駐車場
貸土地
店舗
事務所
倉庫・工場
新築分譲マンション
中古マンション
新築一戸建て
中古一戸建て
売土地・分譲地
その他(投資物件など)
マンション
一戸建て
土地
ホーム
>
検索方法選択
>
エリア選択
> 物件一覧
枇杷島小学校区
の
売土地・分譲地
一覧
21件
該当しました。
1
2
次のページ>
表示切替:
一覧表示
/
地図表示
並び替え:
指定なし
新着順
価格が安い順
価格が高い順
画像
物件名/所在地/取扱店
詳細
大幅にお値下げしました!
柳橋 売土地
新潟県柏崎市柳橋町字笄630-3、630-9
株式会社 アイエステート
価格
:
1,000,000
円
土地面積
:173.77㎡ /52.56坪
坪単価
:19,025円/坪
建ぺい率
:60%
容積率
:200%
静かな住宅地です。近隣にはコンビニやハコニワ(レストランやパン屋等)があり便利な立地です♪
城東1丁目土地
新潟県柏崎市城東1丁目
アサヒ設備株式会社
価格
:
1,500,000
円
土地面積
:347.09㎡ /104.99坪
坪単価
:14,287円/坪
建ぺい率
:60%
容積率
:200%
柏崎駅近く22坪!
柳橋町22.6坪 駐車場、倉庫用地に☆
新潟県柏崎市柳橋町621-1、621-2
株式会社 ai-will
価格
:
1,808,000
円
土地面積
:74.74㎡ /22.6坪
坪単価
:80,000円/坪
建ぺい率
:70%
容積率
:200%
子育て世代に丁度良い広さと価格‼
穂波町売り土地
新潟県柏崎市穂波町1786-1
不動産アイズ
価格
:
2,500,000
円
土地面積
:132㎡ /39.93坪
坪単価
:62,609円/坪
建ぺい率
:60%
容積率
:200%
49.6坪/徒歩10分圏内に駅・商業施設・学校・医院、 国道8号線近く、暮らしやすい立地です。
柏崎市穂波町売土地
新潟県柏崎市穂波町1980-8
株式会社 ホーメックス
価格
:
4,800,000
円
土地面積
:164㎡ /49.61坪
坪単価
:96,754円/坪
建ぺい率
:60%
容積率
:200%
78坪、信越線 柏崎駅まで徒歩8分
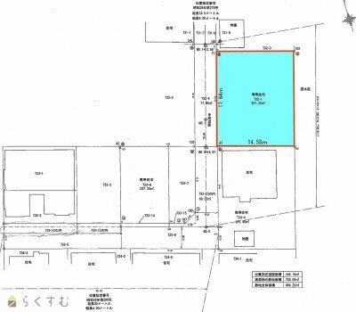
柏崎市柳橋町売土地
新潟県柏崎市柳橋町320-2
株式会社 ホーメックス
価格
:
5,000,000
円
土地面積
:258.03㎡ /78.05坪
坪単価
:64,061円/坪
建ぺい率
:400%
容積率
:80%
枇杷島小学校まで徒歩2分!
関町売土地
新潟県柏崎市関町2147-4
株式会社 アーク不動産
価格
:
5,000,000
円
土地面積
:261㎡ /78.95坪
坪単価
:63,331円/坪
建ぺい率
:60%
容積率
:200%
城東分譲地 全7区画 44坪~60坪
城東分譲地 東(E)
新潟県柏崎市城東2丁目3385-8
株式会社 藤真工業
価格
:
5,500,000
円
土地面積
:165.35㎡ /50.01坪
坪単価
:109,978円/坪
建ぺい率
:70%
容積率
:200%
城東分譲地 全7区画 44坪~60坪
城東分譲地 東(F)
新潟県柏崎市城東2丁目3385-9・3385-11
株式会社 藤真工業
価格
:
5,500,000
円
土地面積
:165.34㎡ /50.01坪
坪単価
:109,978円/坪
建ぺい率
:70%
容積率
:200%
90.50坪、国道8号線至近、柏崎駅まで750m徒歩10分
柏崎市柳橋町売土地
新潟県柏崎市柳橋町656-8
株式会社 ホーメックス
価格
:
5,500,000
円
土地面積
:299.2㎡ /90.5坪
坪単価
:60,773円/坪
建ぺい率
:80%
容積率
:400%
閑静な住宅地、国道353号沿いで消雪パイプ有り。
城東1丁目
新潟県柏崎市城東1丁目3639-3
有限会社ひまわりネットワーク
価格
:
5,900,000
円
土地面積
:242.52㎡ /73.36坪
坪単価
:80,425円/坪
建ぺい率
:60%
容積率
:200%
コモタウンと岩上ショッピングタウンにアクセス抜群の立地!柏崎駅へも徒歩13分の住宅用地です
柏崎市田中 売土地
新潟県柏崎市田中1911番9
株式会社 高野不動産販売
価格
:
6,500,000
円
土地面積
:202.85㎡ /61.36坪
坪単価
:105,932円/坪
建ぺい率
:70%
容積率
:200%
城東分譲地 全7区画 60坪~65坪
城東分譲地 西(B)
新潟県柏崎市城東2丁目3385-6
株式会社 藤真工業
価格
:
6,600,000
円
土地面積
:198.4㎡ /60.01坪
坪単価
:109,981円/坪
建ぺい率
:70%
容積率
:200%
城東分譲地 全7区画 44坪~60坪
城東分譲地 西(C)
新潟県柏崎市城東2丁目3385-7
株式会社 藤真工業
価格
:
6,600,000
円
土地面積
:198.4㎡ /60.01坪
坪単価
:109,981円/坪
建ぺい率
:70%
容積率
:200%
城東分譲地 全7区画 44坪~60坪
城東分譲地 西(A)
新潟県柏崎市城東2丁目3385-4
株式会社 藤真工業
価格
:
6,900,000
円
土地面積
:198.39㎡ /60.01坪
坪単価
:114,980円/坪
建ぺい率
:70%
容積率
:200%
!!!価格改定しました!!! 【建築条件無し】◆小学校までのアクセス良好◆ゆったり73.99坪◆南向きの住宅用地◆ウオロク柏崎店まで徒歩500m
柏崎市穂波町 売地
新潟県柏崎市穂波町12-45
ハーバーエステート株式会社
価格
:
6,980,000
円
土地面積
:244.62㎡ /73.99坪
坪単価
:94,337円/坪
建ぺい率
:60%
容積率
:200%
枇杷島小学校至近の全2区画の分譲地です。自社物件につき仲介手数料がかかりません!
柏崎市関町 55坪
新潟県柏崎市関町2148番5号
植木不動産株式会社
価格
:
7,150,000
円
土地面積
:181.95㎡ /55.03坪
坪単価
:129,929円/坪
建ぺい率
:60%
容積率
:200%
柏崎駅南口まで徒歩約6分
柳橋町77坪売土地
新潟県柏崎市柳橋町732-1
株式会社 ai-will
価格
:
7,781,000
円
土地面積
:257.25㎡ /77.81坪
坪単価
:100,000円/坪
建ぺい率
:60%
容積率
:200%
柏崎市穂波町売土地
新潟県柏崎市穂波町字香ケ田1785番地2
有限会社 片山工務店
価格
:
7,980,000
円
土地面積
:219.95㎡ /66.53坪
坪単価
:119,945円/坪
建ぺい率
:60%
容積率
:200%
枇杷島小学校至近! 56坪の整形地
穂波町 売土地
新潟県柏崎市穂波町2076-2
株式会社 ライフプラン
価格
:
8,450,000
円
土地面積
:186.44㎡ /56.39坪
坪単価
:149,849円/坪
建ぺい率
:60%
容積率
:200%
表示切替:
一覧表示
/
地図表示
並び替え:
指定なし
新着順
価格が安い順
価格が高い順
価格は物件の代金総額を表示しており、消費税が課税される場合は税込み価格です。
建築条件付き土地価格には、建物価格は含まれません。
物件情報の詳細については取り扱い店までお問い合わせください。
完成予想図はいずれも外構・植栽・外観等実際のものと異なることが多少あります。
CG合成の画像の場合実際と異なることが多少あります。
完成後1年以上経過したものが未入居として記載される場合があります。ご了承ください。
販売予定物件は販売開始するまで契約または予約の申し込みはできません。
ご購入の場合物件詳細や契約内容についてご自身で十分ご確認いただきますようよろしく御願いします。
建築条件付きとは…その土地に建築する建物の建築請負契約が、一定期間内に成立することを条件として売買される土地のことをいいます。請負契約成立に向けて設計プランを協議するため、土地購入者が希望する建物にするために一定の期間(概ね3ヶ月)交渉期間としその期間内に希望するプランが実現できたかどうかによって土地の購入の判断をします。納得のいくプランができず請負契約が未成立になった場合、土地契約にかかった代金(手付金など)は、すべて返却されます。
21件
該当しました。
1
2
次のページ>
0件
がマッチ
基本条件
物件種別
売土地・分譲地
詳細種別
売土地
分譲地
価格
下限なし
100万円
250万円
500万円
1000万円
1500万円
2000万円
2500万円
3000万円
3500万円
4000万円
4500万円
5000万円
5500万円
6000万円
6500万円
7000万円
7500万円
8000万円
8500万円
9000万円
9500万円
1億円
~
上限なし
100万円
250万円
500万円
1000万円
1500万円
2000万円
2500万円
3000万円
3500万円
4000万円
4500万円
5000万円
5500万円
6000万円
6500万円
7000万円
7500万円
8000万円
8500万円
9000万円
9500万円
1億円
間取り
ワンルーム
1K
1DK
1LDK
2K
2DK
2LDK
3K
3DK
3LDK
4K
4DK
4LDK以上
専有面積
下限なし
20㎡
30㎡
40㎡
50㎡
60㎡
70㎡
80㎡
90㎡
100㎡
~
上限なし
20㎡
30㎡
40㎡
50㎡
60㎡
70㎡
80㎡
90㎡
100㎡
土地面積
下限なし
60㎡ (約18坪)
70㎡ (約21坪)
80㎡ (約24坪)
90㎡ (約27坪)
100㎡ (約30坪)
110㎡ (約33坪)
120㎡ (約36坪)
130㎡ (約39坪)
140㎡ (約42坪)
150㎡ (約45坪)
160㎡ (約48坪)
170㎡ (約51坪)
180㎡ (約54坪)
190㎡ (約57坪)
200㎡ (約60坪)
250㎡ (約75坪)
300㎡ (約90坪)
~
上限なし
60㎡ (約18坪)
70㎡ (約21坪)
80㎡ (約24坪)
90㎡ (約27坪)
100㎡ (約30坪)
110㎡ (約33坪)
120㎡ (約36坪)
130㎡ (約39坪)
140㎡ (約42坪)
150㎡ (約45坪)
160㎡ (約48坪)
170㎡ (約51坪)
180㎡ (約54坪)
190㎡ (約57坪)
200㎡ (約60坪)
250㎡ (約75坪)
300㎡ (約90坪)
建物面積
下限なし
60㎡ (約18坪)
70㎡ (約21坪)
80㎡ (約24坪)
90㎡ (約27坪)
100㎡ (約30坪)
110㎡ (約33坪)
120㎡ (約36坪)
130㎡ (約39坪)
140㎡ (約42坪)
150㎡ (約45坪)
160㎡ (約48坪)
170㎡ (約51坪)
180㎡ (約54坪)
190㎡ (約57坪)
200㎡ (約60坪)
250㎡ (約75坪)
300㎡ (約90坪)
~
上限なし
60㎡ (約18坪)
70㎡ (約21坪)
80㎡ (約24坪)
90㎡ (約27坪)
100㎡ (約30坪)
110㎡ (約33坪)
120㎡ (約36坪)
130㎡ (約39坪)
140㎡ (約42坪)
150㎡ (約45坪)
160㎡ (約48坪)
170㎡ (約51坪)
180㎡ (約54坪)
190㎡ (約57坪)
200㎡ (約60坪)
250㎡ (約75坪)
300㎡ (約90坪)
坪単価
下限なし
5万円
10万円
15万円
20万円
25万円
30万円
35万円
40万円
45万円
50万円
~
上限なし
5万円
10万円
15万円
20万円
25万円
30万円
35万円
40万円
45万円
50万円
築年数
指定なし
新築
3年以内
5年以内
10年以内
15年以内
20年以内
方位
北
北東
東
南東
南
南西
西
北西
おすすめ条件
ペット可・相談
楽器可・相談
情報公開日
指定なし
本日
3日以内
1週間以内
1ヶ月以内
0件
がマッチ
人気のあるこだわり条件
角地(5)
整形地(10)
前道6m以上(8)
南側道路面す(2)
更地(14)
学校近く(11)
スーパー近く(5)
最寄り駅近く(9)
閑静な住宅街(13)
建築条件なし(14)
所有権(19)
即引き渡し可(4)
側溝(10)
都市ガス(前面道路)(5)
上水道(前面道路)(6)
下水道(前面道路)(4)
電気(14)
都市ガス(宅地内)(10)
上水道(宅地内)(16)
下水道(宅地内)(18)
前面道路融雪設備あり(1)
住宅向け(17)
事業用向け(1)
条件に合った物件数は、
0 件
です。
立地・環境
角地(5)
整形地(10)
前道6m以上(8)
南側道路面す(2)
更地(14)
学校近く(11)
スーパー近く(5)
最寄り駅近く(9)
閑静な住宅街(13)
用途・制限
建築条件なし(14)
引渡・条件
所有権(19)
即引き渡し可(4)
設備
側溝(10)
都市ガス(前面道路)(5)
上水道(前面道路)(6)
下水道(前面道路)(4)
電気(14)
都市ガス(宅地内)(10)
上水道(宅地内)(16)
下水道(宅地内)(18)
前面道路融雪設備あり(1)
その他
住宅向け(17)
事業用向け(1)
条件に合った物件数は、
0 件
です。
アパート・マンション・一戸建て
/
駐車場
/
貸土地
/
店舗
/
事務所
/
倉庫・工場
新築分譲マンション
/
中古マンション
/
新築一戸建て
/
中古一戸建て
/
売土地
/
投資物件・その他
マンション
/
一戸建て
/
土地
建てる・リフォーム
物件掲載企業一覧
掲載希望の企業様へ
新潟の不動産情報サイト
サービス利用規約
運営会社
サイトマップ
プライバシーポリシー
お問い合わせ
リンク
Copyright (C)
株式会社 コモンライフ・コーポレーション
. All Rights Reserved.
新潟・長岡・柏崎の賃貸・マンション・アパート・住宅の不動産物件情報サイト
不動産検索サイト「らくすむ」及び関連サイトに記載の不動産情報は、会員規約に則り、情報提供会社様の責任のもとに発信されております。
不動産の賃借、購入に関しては賃借者、購入者ご自身が情報を確認され、会社企業様から説明を受けられたうえで判断をお願いいたします。
不動産検索サイト「らくすむ」及び関連サイトに記載の不動産情報、写真、デザイン、コンテンツなどの
無断転載・転用・複製
など禁止します。