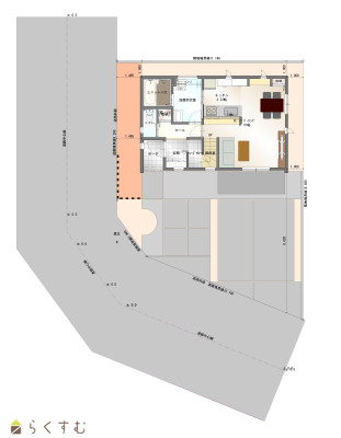
| ◆コンパクトでシンプルな間取り。◆キッチンから直接行ける洗面脱衣室で家事時短動線です。◆各居室に収納があり、2階の寝室には2帖のウォークインクローゼットが2室。どちらかを書斎として利用することも可能です。◆住宅設備は全てPanasonic製です。 | |||
| 物件コード | 00371-200004 | ||
|---|---|---|---|
| 物件名 | 秋葉区下興野町新築住宅 | ||
| 交通 | 駅:信越線 新津駅から徒歩15分、バス:下興野から徒歩3分 | ||
| 物件所在地 | 新潟県新潟市秋葉区下興野町95-10 | ||
| 物件種別 | 新築一戸建て | ||
| 構造 | 木造 | 階建 | 地上2階建 |
| 建ぺい率/容積率 | 60%/200% | ||
| 建物面積 | 1階 44.71㎡/ 2階 47.2㎡/ 計 91.91㎡ /27.8坪 | ||
| 土地面積 | 146.28㎡ /44.24坪 | ||
| 築年月 | 2026年1月(築2ヶ月) | ||
| 入居時期 | 2026年2月以降お引渡し可能 | ||
| 用途地域 | 第1種住居地域 | 地目 | 宅地 |
| 都市計画 | 市街化区域 | 学校区 | 新津第一小学校(1,653m)・新津第一中学校(1,942m) |
| 形状 | 間口 10.1m × 奥行 15.4m | 道路 | 南:市道下興野第2号線幅員6.5m、西:開発道路幅員6.0m |
| 私道 | - | ||
| 所在階/階数 | - | 号室 | - |
|---|---|---|---|
| 販売価格 | 29,800,000円 | 方位 | 南 |
| 間取り |
3LDK (洋室:6、5.2、5.2) LDK15 |
||
| 専有面積 | - | バルコニー面積 | - |
| その他面積 | - | 駐車場 | - |
| 管理費 | - | 修繕積立金 | - |
| 現況 | - | ||
| 仲介手数料 | なし | ||
| 利用制限 | - | ||
| 設備 | 角地、整形地、前面道路6m以上、日当り良好、閑静な住宅街、スーパー近く、瑕疵担保保険付き、建物確認・完了検査済証あり、LDK15畳以上、全室フローリング、駐車場3台以上、南向き、TVインターホン、複層ガラス、システムキッチン、IHクッキングヒーター、追いだき機能付き、バス1坪以上、温水洗浄便座、シャワー付き洗面台、エアコン、24時間換気システム、省エネ給湯、高気密高断熱住宅、都市ガス、上水道、下水道、電気、ウォークインクローゼット、全居室収納あり、シューズインクローゼット、照明器具付き | ||
| 取引態様 | 売主 | ||
| 備考 | 【建築確認番号】第R07-1205号 | ||
| 情報登録日 | 2025/12/04 | 次回更新予定日 | 2026/04/05 |
| 取引条件有効期限 | 2026/03/31 | ||
|
|
|
|
| TEL: | 0258-86-4740 |
|---|---|
| 所在地: | 新潟県阿賀野市保田3858 |
| 交通: | JR磐越西線「五泉駅」、バス停「安田新栄町団地」より徒歩約2分 |
| 営業時間: | 8:00~17:15/定休日:日・祝日 年末年始・夏季休暇 |
| 免許番号: | 新潟県知事(8)第3677号 |
| 所属団体名: | 公社 新潟県宅地建物取引協会 新発田支部 |
| 取引態様: | 売主 |