| 5LSDK+大空間インナーガレージ、駐車9台可 、対面キッチンLDK!新潟県の「にいがた安心こむすび住宅推進事業」の補助対象 となっている子育て世帯に優しいリノベーション住宅です。 | |||
| 物件コード | 00339-200081 | ||
|---|---|---|---|
| 物件名 | 長岡市千手リノベーション住宅【ReLive:リライブ】 | ||
| 交通 | 駅:信越線 長岡駅から徒歩21分、バス:千手1丁目から徒歩2分 | ||
| 物件所在地 | 新潟県長岡市千手1丁目2-8 | ||
| 物件種別 | 中古一戸建て | ||
| 構造 | 鉄骨 | 階建 | 地上3階建 |
| 建ぺい率/容積率 | 60%/160% | ||
| 建物面積 | 1階 118.58㎡/ 2階 127.16㎡/ 3階 90.17㎡/ 計 335.91㎡ /101.61坪 | ||
| 土地面積 | 252.39㎡ /76.34坪 | ||
| 築年月 | 1992年10月(築33年) | ||
| 入居時期 | 相談 | ||
| 用途地域 | 第1種住居地域 | 地目 | 宅地 |
| 都市計画 | 市街化区域 | 学校区 | 千手小学校(305m)・南中学校(317m) |
| 形状 | - | 道路 | 西側約4.0m公道 |
| 私道 | - | ||
| 所在階/階数 | - | 号室 | - |
|---|---|---|---|
| 販売価格 | 29,980,000円 | 方位 | 西 |
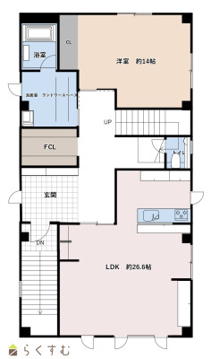
| 間取り |
5LDK (洋室:14、8.5、8.2、8、7.4) LDK26.6 建物面積にインナーガレージ118.58㎡面積含みます。 |
||
| 専有面積 | - | バルコニー面積 | - |
| その他面積 | - | 駐車場 | - |
| 管理費 | - | 修繕積立金 | - |
| 現況 | 空家 | ||
| 仲介手数料 | 1,008,690円 | ||
| 利用制限 | - | ||
| 設備 | 日当り良好、閑静な住宅街、スーパー近く、新築時図面あり、インスペクション報告書あり、建物確認・完了検査済証あり、瑕疵担保保険付き、LDK15帖以上、全室フローリング、駐車2台可能、駐車3台以上可能、駐車場融雪設備あり、南向き、TVインターホン、複層ガラス、デインプルキー、システムキッチン、カウンターキッチン、浄水器、食器洗浄乾燥機、3口コンロ、ガスコンロ設置済み、追いだき機能付き、浴室乾燥機、バス1坪以上、温水洗浄便座、トイレ2か所以上、シャワー付き洗面台、オール電化、省エネ給湯機、都市ガス、上水道、下水道、バリアフリー、ウォークインクローゼット、全居室収納あり、シューズBOX、内装リフォーム済み、外装リフォーム済み、リノベーション物件 | ||
| 取引態様 | 売主 | ||
| 備考 | ■主なリノベーション内容(令和8年8月完了予定) 【外部】 ・外壁・屋根新品、玄関ドア新品(スマートキー対応)、Low-E断熱サッシ新品、電動シャッター新品 【内部】 ・システムキッチン新品、カップボード新品、システムバス新品、洗面化粧台新品(2箇所)、トイレ新品(2箇所)、省エネ給湯器新品、フロア材新品、シューズボックス新品、建具新品、クロス貼替、照明器具新品、モニターホン新品 【その他】 ・白蟻防蟻工事、ハウスクリーニング、間取り変更等 ■保証等 ・安心R住宅適合予定、第三者機関によるインスペクション(建物現況調査)実施予定、かし保険5年、白アリ防除保証5年、定期点検制度有 ■その他 ・子育て世帯:15歳以下の子を有する世帯。 ・若者夫婦世帯:夫婦のいずれかが39歳以下の世帯。 ・子育て世帯・若者夫婦世帯以外の方の販売価格は弊社にお問合せください。 ・安心R住宅(全宅連)リフォーム予定。 ・図面等と現状が異なる場合は現状を優先とします。 ・建物面積・構造は表題変更登記後に変更になる可能性があります。 ・物件ご購入の際は仲介業者媒介によるご契約となります。 ・県道長岡中之島見附線の道路境界線から25mまでは近隣商業地域となります。 |
||
| 情報登録日 | 2026/04/24 | 次回更新予定日 | 2026/05/08 |
| 取引条件有効期限 | 2026/05/31 | ||
|
|
|
|
| TEL: | 0258-86-4227 |
|---|---|
| 所在地: | 新潟県長岡市日赤町2-4-12 |
| 交通: | 長岡駅 |
| 営業時間: | 9:00~18:00/定休日:不定休 |
| 免許番号: | 新潟県知事(1)第5668号 |
| 所属団体名: | 公社 新潟県宅地建物取引協会 長岡支部 |
| 取引態様: | 売主 |