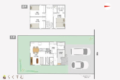
| 家事動線は一直線にまとめ、朝や夕方の忙しい時間をスムーズに。 3帖の広々とした洗面脱衣室は、洗濯・干す・取り込む・たたむ・しまうまでが1か所で完結するランドリースペースとして使え、家事の負担を軽減します。 アウトドア派に嬉しいのが、1坪(畳2枚分)の広さを確保した土間収納。 キャンプ用品やスキー道具、釣り道具、除雪道具までまとめて収納でき、汚れても床が土間なので掃除も簡単。 大島小学校、公園やこどもえんも徒歩10分圏内と、子育て世帯にも安心の環境です。 | |||
| 物件コード | 00320-200195 | ||
|---|---|---|---|
| 物件名 | 大島新町1 新築戸建 | ||
| 交通 | 駅:上越新幹線 長岡駅から徒歩35分、バス:長生橋西詰から徒歩6分 | ||
| 物件所在地 | 新潟県長岡市大島新町1丁目 | ||
| 物件種別 | 新築一戸建て | ||
| 構造 | 木造合金メッキ鋼板葺 | 階建 | 地上2階建 |
| 建ぺい率/容積率 | 60%/200% | ||
| 建物面積 | 計 87.77㎡ /26.55坪 | ||
| 土地面積 | 165.28㎡ /49.99坪 | ||
| 築年月 | 2025年3月(築11ヶ月) | ||
| 入居時期 | 随時入居(引き渡し)可 | ||
| 用途地域 | 第1種中高層住居専用地域 | 地目 | 宅地 |
| 都市計画 | 市街化区域 | 学校区 | 大島小学校(549m)・大島中学校(997m) |
| 形状 | - | 道路 | 北側前面道路幅員5.7m |
| 私道 | - | ||
| 所在階/階数 | - | 号室 | - |
|---|---|---|---|
| 販売価格 | 24,900,000円 | 方位 | 北 |
| 間取り |
3LDK (洋室:6.0、6.0、6.0) LDK14.5 |
||
| 専有面積 | - | バルコニー面積 | - |
| その他面積 | - | 駐車場 | - |
| 管理費 | - | 修繕積立金 | - |
| 現況 | 空家 | ||
| 仲介手数料 | 887,700円 | ||
| 利用制限 | - | ||
| 設備 | 整形地、日当り良好、閑静な住宅街、BELS/省エネ基準適合認定建物、全室フローリング、駐車場2台以上、南向き、庭あり、TVインターホン、複層ガラス、システムキッチン、カウンターキッチン、IHクッキングヒーター、バス1坪以上、温水洗浄便座、シャワー付き洗面台、エアコン、オール電化、省エネ給湯、高気密高断熱住宅、上水道、下水道、電気、ウォークインクローゼット、全居室収納あり、シューズインクローゼット、シューズBOX、即引き渡し可能 | ||
| 取引態様 | 仲介 | ||
| 備考 | - | ||
| 情報登録日 | 2026/01/19 | 次回更新予定日 | 2026/02/20 |
| 取引条件有効期限 | 2026/07/30 | ||
|
|
|
|
| TEL: | 0258-35-2220 |
|---|---|
| 所在地: | 新潟県長岡市新町1-1-2 |
| 交通: | 長岡駅 |
| 営業時間: | 午前10時00分~午後7時 /定休日:オンラインサービス:午前9時30分~午後9時 |
| 免許番号: | 新潟県知事(1)第5629号 |
| 所属団体名: | 公社 新潟県宅地建物取引協会 新潟支部 |
| 取引態様: | 仲介 |