| 物件コード | 00308-200241 | ||
|---|---|---|---|
| 物件名 | 南本町1丁目 売家 | ||
| 交通 | 駅:妙高はねうまライン 南高田駅から徒歩13分 | ||
| 物件所在地 | 新潟県上越市南本町1丁目5-18 | ||
| 物件種別 | 中古一戸建て | ||
| 構造 | 木造 | 階建 | 地上2階建 |
| 建ぺい率/容積率 | 60%/200% | ||
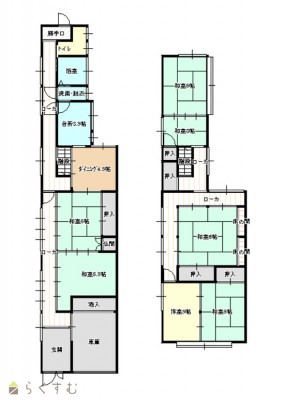
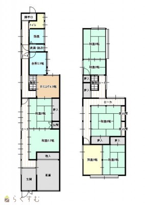
| 建物面積 | 1階 93.32㎡/ 2階 42.97㎡/ 計 136.29㎡ /41.22坪 | ||
| 土地面積 | 158.4㎡ /47.91坪 | ||
| 築年月 | 不詳 | ||
| 入居時期 | 相談 | ||
| 用途地域 | 準工業地域 | 地目 | 宅地 |
| 都市計画 | 市街化区域 | 学校区 | 南本町小学校(1,017m)・城西中学校(677m) |
| 形状 | - | 道路 | 西側 9m |
| 私道 | - | ||
| 所在階/階数 | - | 号室 | - |
|---|---|---|---|
| 販売価格 | 4,000,000円 | 方位 | 指定なし |
| 間取り |
6DK (和室:6畳、6畳、6畳、6.5畳、8畳) (洋室:5) D4.5 K3.5 |
||
| 専有面積 | - | バルコニー面積 | - |
| その他面積 | - | 駐車場 | - |
| 管理費 | - | 修繕積立金 | - |
| 現況 | 賃貸中 | ||
| 仲介手数料 | 330,000円 | ||
| 利用制限 | - | ||
| 設備 | 追いだき機能付き、温水洗浄便座 | ||
| 取引態様 | 一般 | ||
| 備考 | 現在、賃貸中です。 | ||
| 情報登録日 | 2024/08/30 | 次回更新予定日 | 2026/05/21 |
| 取引条件有効期限 | 2024/03/31 | ||
|
|
|
|
|
|
| TEL: | 025-522-3838 |
|---|---|
| 所在地: | 新潟県上越市南高田町1-2アサノビル1階 |
| 交通: | 妙高はねうまライン 南高田駅 徒歩1分 |
| 営業時間: | 9:00~18:30/定休日:毎週水曜日・GW(5/2~5/6)・夏季・・年末年始 |
| 免許番号: | 新潟県知事(9)第3372号 |
| 所属団体名: | 公社 新潟県宅地建物取引協会 上越支部 |
| 取引態様: | 一般 |