| 物件コード | 00259-200079 | ||
|---|---|---|---|
| 物件名 | 吉川区神田町売家 | ||
| 交通 | 駅:ほくほく線 くびき駅から徒歩52分、バス:神田町から徒歩4分 | ||
| 物件所在地 | 新潟県上越市吉川区神田町1771-1 | ||
| 物件種別 | 中古一戸建て | ||
| 構造 | 木造 | 階建 | 地上2階建 |
| 建ぺい率/容積率 | - | ||
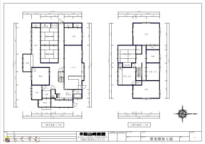
| 建物面積 | 1階 161.21㎡/ 2階 40.08㎡/ 計 201.29㎡ /60.89坪 | ||
| 土地面積 | 2,156.68㎡ /652.39坪 | ||
| 築年月 | 1973年10月(築52年) | ||
| 入居時期 | 随時入居(引き渡し)可 | ||
| 用途地域 | 無指定 | 地目 | 宅地 (現状:宅地) |
| 都市計画 | 都市計画区域外 | 学校区 | 吉川小学校(1,811m)・吉川中学校(2,149m) |
| 形状 | 間口 30m × 奥行 80m | 道路 | 南側6.0m |
| 私道 | - | ||
| 所在階/階数 | - | 号室 | - |
|---|---|---|---|
| 販売価格 | 8,000,000円 | 方位 | - |
| 間取り | 10LDK | ||
| 専有面積 | - | バルコニー面積 | - |
| その他面積 | - | 駐車場 | - |
| 管理費 | - | 修繕積立金 | - |
| 現況 | 空家 | ||
| 仲介手数料 | 330,000円 | ||
| 利用制限 | - | ||
| 設備 | - | ||
| 取引態様 | 専任 | ||
| 備考 | - | ||
| 情報登録日 | 2026/01/06 | 次回更新予定日 | 2026/05/21 |
| 取引条件有効期限 | 2026/04/06 | ||
|
|
|
|
| TEL: | 0255-72-3129 |
|---|---|
| 所在地: | 新潟県妙高市東陽町2-20 |
| 交通: | えちごトキめき鉄道 新井駅から徒歩25分 |
| 営業時間: | 8:00〜17:00/定休日:土日祝日 |
| 免許番号: | 新潟県知事(8)第3467号 |
| 所属団体名: | 公益社団法人新潟県宅地建物取引協会 上越支部 |
| 取引態様: | 専任 |