| 物件コード | 00238-200053 | ||
|---|---|---|---|
| 物件名 | 南本町2丁目(売事務所、売ビル) | ||
| 交通 | 駅:妙高はねうまライン 南高田駅から徒歩11分、バス:医療センター入口から徒歩3分 | ||
| 物件所在地 | 新潟県上越市南本町2-13-14 | ||
| 物件種別 | 中古一戸建て | ||
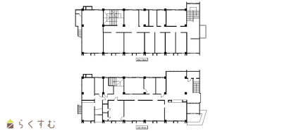
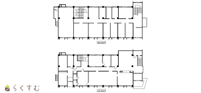
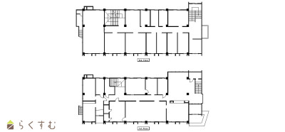
| 構造 | 鉄筋コン | 階建 | 地上2階建 |
| 建ぺい率/容積率 | 60%/200% | ||
| 建物面積 | 1階 313.95㎡/ 2階 310.08㎡/ 計 624.03㎡ /188.76坪 | ||
| 土地面積 | 994.95㎡ /300.97坪 | ||
| 築年月 | 1973年10月(築52年) | ||
| 入居時期 | 随時入居(引き渡し)可 | ||
| 用途地域 | 第1種住居地域 | 地目 | 宅地 |
| 都市計画 | 市街化区域 | 学校区 | 南本町小学校(847m)・城西中学校(529m) |
| 形状 | - | 道路 | 南側9.2M上越市道 |
| 私道 | - | ||
| 所在階/階数 | - | 号室 | - |
|---|---|---|---|
| 販売価格 | 1,730,000円 | 方位 | 南 |
| 間取り | 10DK | ||
| 専有面積 | - | バルコニー面積 | - |
| その他面積 | - | 駐車場 | - |
| 管理費 | - | 修繕積立金 | - |
| 現況 | 居住中 | ||
| 仲介手数料 | 330,000円 | ||
| 利用制限 | - | ||
| 設備 | 南向き、都市ガス、上水道、下水道、即引き渡し可能 | ||
| 取引態様 | 専属専任 | ||
| 備考 | - | ||
| 情報登録日 | 2026/03/19 | 次回更新予定日 | 2026/04/05 |
| 取引条件有効期限 | 2026/04/29 | ||
|
|
|
|
| TEL: | 025-524-6441 |
|---|---|
| 所在地: | 新潟県上越市木田1-8-11 |
| 交通: | 妙高はねうまライン春日山駅徒歩10分 |
| 営業時間: | 平日9:00~18:30 土9:00~18:00/定休日:日曜、祝日 |
| 免許番号: | 新潟県知事(15)第861号 |
| 所属団体名: | 公社 新潟県宅地建物取引協会 上越支部 |
| 取引態様: | 専属専任 |