| 物件コード | 00221-200293 | ||
|---|---|---|---|
| 物件名 | 中央区沼垂リノベーション住宅 | ||
| 交通 | 駅:上越新幹線 新潟駅から徒歩25分、バス:沼垂東五丁目から徒歩3分 | ||
| 物件所在地 | 新潟県新潟市中央区沼垂東6 | ||
| 物件種別 | 中古一戸建て | ||
| 構造 | 木造 | 階建 | 地上2階建 |
| 建ぺい率/容積率 | 80%/300% | ||
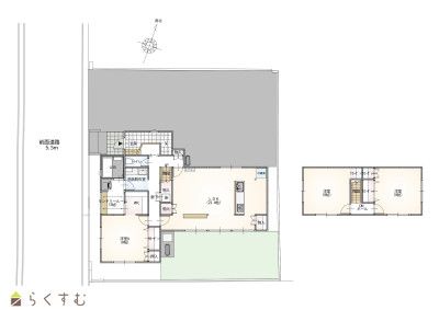
| 建物面積 | 1階 85.68㎡/ 2階 33.12㎡/ 計 118.8㎡ /35.93坪 | ||
| 土地面積 | 224.2㎡ /67.82坪 | ||
| 築年月 | 1981年6月(築44年) | ||
| 入居時期 | 相談 | ||
| 用途地域 | 近隣商業地域 | 地目 | 宅地 |
| 都市計画 | 市街化区域 | 学校区 | 沼垂小学校(810m)・東新潟中学校(817m) |
| 形状 | 間口 15.5m | 道路 | 道路幅5.4m |
| 私道 | - | ||
| 所在階/階数 | - | 号室 | - |
|---|---|---|---|
| 販売価格 | 35,800,000円 | 方位 | - |
| 間取り |
3LDK (洋室:8、8、8) LDK21.4 |
||
| 専有面積 | - | バルコニー面積 | - |
| その他面積 | - | 駐車場 | - |
| 管理費 | - | 修繕積立金 | - |
| 現況 | 空家 | ||
| 仲介手数料 | なし | ||
| 利用制限 | - | ||
| 設備 | 日当り良好、閑静な住宅街、LDK15帖以上、全室フローリング、駐車3台以上可能、TVインターホン、システムキッチン、IHクッキングヒーター、バス1坪以上、温水洗浄便座、シャワー付き洗面台、エアコンあり、24時間換気システム、都市ガス、上水道、下水道、ウォークインクローゼット、シューズBOX、シューズインクローゼット、内装リフォーム済み、外装リフォーム済み、リノベーション物件 | ||
| 取引態様 | 売主 | ||
| 備考 | 現在建築中 | ||
| 情報登録日 | 2026/04/11 | 次回更新予定日 | 2026/04/27 |
| 取引条件有効期限 | 2026/06/30 | ||
|
|
|
|
| TEL: | 080-7289-9376 |
|---|---|
| 所在地: | 新潟県長岡市古正寺3丁目116 |
| 交通: | |
| 営業時間: | 10:00~17:00/定休日:水曜日 木曜日 |
| 免許番号: | 新潟県知事(2)第5484号 |
| 所属団体名: | 新潟県宅地建物取引業協会 長岡支部 |
| 取引態様: | 売主 |