| 店舗内は木目基調の落ち着いた雰囲気 | |||
| 物件コード | 00209-200104 | ||
|---|---|---|---|
| 物件名 | 北城町3売店舗兼住居 | ||
| 交通 | 駅:妙高はねうまライン 高田駅から徒歩20分、バス:東本町三丁目から徒歩5分 | ||
| 物件所在地 | 新潟県上越市北城町3丁目15-10 | ||
| 物件種別 | 中古一戸建て | ||
| 構造 | 木造 | 階建 | 地上2階建 |
| 建ぺい率/容積率 | 60%/200% | ||
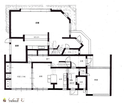
| 建物面積 | 1階 173.48㎡/ 2階 109.33㎡/ 計 282.81㎡ /85.55坪 | ||
| 土地面積 | 519.95㎡ /157.28坪 | ||
| 築年月 | 1986年12月(築39年) | ||
| 入居時期 | 相談 | ||
| 用途地域 | 第1種住居地域 | 地目 | 宅地 (現状:宅地) |
| 都市計画 | 市街化区域 | 学校区 | 大町小学校(1,028m)・城北中学校(750m) |
| 形状 | - | 道路 | 北側16m公道(歩道付) |
| 私道 | - | ||
| 所在階/階数 | - | 号室 | - |
|---|---|---|---|
| 販売価格 | 25,000,000円 | 方位 | - |
| 間取り |
3LDK (和室:10畳、8畳) (洋室:13) LDK20 |
||
| 専有面積 | - | バルコニー面積 | - |
| その他面積 | - | 駐車場 | - |
| 管理費 | - | 修繕積立金 | - |
| 現況 | 居住中 | ||
| 仲介手数料 | 891,000円 | ||
| 利用制限 | - | ||
| 設備 | LDK15帖以上、駐車3台以上可能、駐車場融雪設備あり、トイレ2か所以上、エアコンあり、都市ガス、上水道、下水道 | ||
| 取引態様 | 仲介 | ||
| 備考 | 現在、店舗営業中・居住中のため、引渡しの時期は要相談です。 | ||
| 情報登録日 | 2025/01/23 | 次回更新予定日 | 2026/05/21 |
| 取引条件有効期限 | 2025/03/31 | ||
|
|
|
|
| TEL: | 025-544-2724 |
|---|---|
| 所在地: | 新潟県上越市西本町2-3-21 |
| 交通: | 直江津駅 |
| 営業時間: | 8:30~17:00/定休日:第2.4土・日・祝 |
| 免許番号: | 新潟県知事(10)第2765号 |
| 所属団体名: | 公社新潟県宅地建物取引協会 上越支部 |
| 取引態様: | 仲介 |