| 物件コード | 00052-200268 | ||
|---|---|---|---|
| 物件名 | ◆売りマンション◆アパシティ東三条駅壱番館 | ||
| 交通 | 駅:信越線 東三条駅から徒歩3分、バス:神社庁前から徒歩3分 | ||
| 物件所在地 | 新潟県三条市東三条1丁目22番地10号 | ||
| 物件種別 | 中古マンション | ||
| 構造 | 鉄筋コン | 階建 | 地上8階建 |
| 建ぺい率/容積率 | 60%/200% | ||
| 建物面積 | 計 63.04㎡ /19.06坪 | ||
| 土地面積 | - | ||
| 築年月 | 2001年2月(築25年) | ||
| 入居時期 | 相談 | ||
| 用途地域 | 第1種住居地域 | 地目 | 宅地 (現状:宅地) |
| 都市計画 | 非線引き都市計画区域 | 学校区 | 一ノ木戸小学校(1,300m)・第二中学校(1,300m) |
| 形状 | - | 道路 | 南側:幅員8.8m 北東側:13.7m |
| 私道 | - | ||
| 所在階/階数 | 4階/8階 | 号室 | 403号室 |
|---|---|---|---|
| 販売価格 | 14,980,000円 | 方位 | 南 |
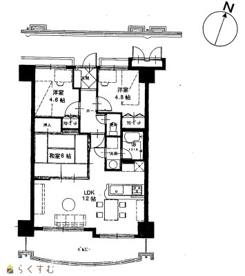
| 間取り |
3LDK (和室:4.6畳、6畳) (洋室:4.8) LDK12 |
||
| 専有面積 | 63.04㎡ /19.06坪 | バルコニー面積 | 10.44㎡ /3.15坪 |
| その他面積 | - | 駐車場 | 月額6000円 |
| 管理費 | 月額7,500円 | 修繕積立金 | 月額12,600円 |
| 現況 | 空家 | ||
| 仲介手数料 | 560,340円 | ||
| 利用制限 | ペット:可 | ||
| 設備 | 2階以上、日当り良好、最寄駅近く、エレベーター、宅配BOX、集会所、和室あり、バイク置き場、駐輪場、南向き、管理人常駐(日中)、セキュリティー良し、システムキッチン、対面式キッチン、2口コンロ、3口コンロ、温水洗浄便座、都市ガス、公営水道、下水道、全室収納あり、シューズBOX | ||
| 取引態様 | 専任 | ||
| 備考 | 契約時一時金 ■管理準備金100,000円■温泉採取許可申請料35,000円■修繕積立基金100,000円 |
||
| 情報登録日 | 2025/06/29 | 次回更新予定日 | 2026/02/19 |
| 取引条件有効期限 | 2026/03/01 | ||
|
|
|
|
| TEL: | 0256-35-5825 |
|---|---|
| 所在地: | 新潟県三条市旭町1丁目1-19-3ユタカビル |
| 交通: | 東三条駅 |
| 営業時間: | 9:00~18:00/定休日:火曜・祭日 |
| 免許番号: | 新潟見知事(9)第3203号 |
| 所属団体名: | 新潟県宅地建物取引協会 三条支部 |
| 取引態様: | 専任 |