| 物件コード | 00051-200055 | ||
|---|---|---|---|
| 物件名 | 売家 | ||
| 交通 | 駅:信越線 北長岡駅から徒歩50分、バス:江陽団地から徒歩3分 | ||
| 物件所在地 | 新潟県長岡市江陽1-12-17 | ||
| 物件種別 | 中古一戸建て | ||
| 構造 | 木造 | 階建 | 地上2階建 |
| 建ぺい率/容積率 | 50%/80% | ||
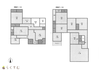
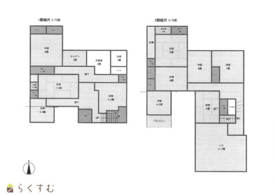
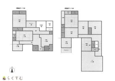
| 建物面積 | 1階 80.25㎡/ 2階 112.87㎡/ 計 193.12㎡ /58.41坪 | ||
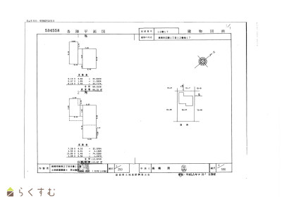
| 土地面積 | 350.14㎡ /105.91坪 | ||
| 築年月 | 1974年8月(築51年) | ||
| 入居時期 | 相談 | ||
| 用途地域 | 第1種低層住居専用地域 | 地目 | 宅地 (現状:宅地) |
| 都市計画 | 市街化区域 | 学校区 | 上川西小学校(325m)・江陽中学校(599m) |
| 形状 | 間口 14m × 奥行 25.01m | 道路 | 8 |
| 私道 | - | ||
| 所在階/階数 | - | 号室 | - |
|---|---|---|---|
| 販売価格 | 21,000,000円 | 方位 | 東 |
| 間取り |
10LDK (和室:7.5畳、8畳、6畳) (洋室:8、6.2、3.9、6、6、7、4.5) LDK17.2 内覧をご希望の方は事前にご連絡をいただきますようお願いいたします。 |
||
| 専有面積 | - | バルコニー面積 | - |
| その他面積 | - | 駐車場 | - |
| 管理費 | - | 修繕積立金 | - |
| 現況 | 居住中 | ||
| 仲介手数料 | 759,000円 | ||
| 利用制限 | - | ||
| 設備 | 閑静な住宅街、LDK15帖以上、駐車2台可能、都市ガス、上水道、下水道、2世帯向き | ||
| 取引態様 | 一般 | ||
| 備考 | - | ||
| 情報登録日 | 2025/11/06 | 次回更新予定日 | 2026/05/21 |
| 取引条件有効期限 | 2026/01/31 | ||
|
|
|
|
| TEL: | 0258-27-6599 |
|---|---|
| 所在地: | 新潟県長岡市荻野1丁目6番7号 |
| 交通: | JR長岡駅、バス(越後交通) |
| 営業時間: | 9:00~17:00/定休日:土曜・日曜・祭日(3月は無休) |
| 免許番号: | 新潟県知事(6)第4078号 |
| 所属団体名: | 新潟県宅地建物取引協会 長岡支部 |
| 取引態様: | 一般 |