| 物件コード | 00044-200718 | ||
|---|---|---|---|
| 物件名 | 小千谷市薭生 自然落雪屋根の高床三階建て | ||
| 交通 | 駅:上越線 小千谷駅から徒歩24分 | ||
| 物件所在地 | 新潟県小千谷市ひ生乙514-6 | ||
| 物件種別 | 中古一戸建て | ||
| 構造 | 木造 | 階建 | 地上3階建 |
| 建ぺい率/容積率 | 70%/200% | ||
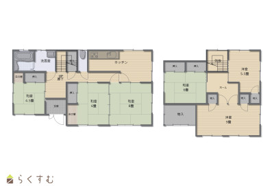
| 建物面積 | 1階 45.8㎡/ 2階 72.85㎡/ 3階 51.05㎡/ 計 169.7㎡ /51.33坪 | ||
| 土地面積 | 213.54㎡ /64.59坪 | ||
| 築年月 | 1989年11月(築36年) | ||
| 入居時期 | 随時入居(引き渡し)可 | ||
| 用途地域 | 用途の指定のない地域 | 地目 | 宅地 |
| 都市計画 | 非線引き都市計画区域 | 学校区 | 東小千谷小学校(1,199m)・東小千谷中学校(1,834m) |
| 形状 | 間口 11.24m × 奥行 15.44m | 道路 | 西側:市道 6m |
| 私道 | - | ||
| 所在階/階数 | - | 号室 | - |
|---|---|---|---|
| 販売価格 | 5,500,000円 | 方位 | - |
| 間取り | 6DK | ||
| 専有面積 | - | バルコニー面積 | - |
| その他面積 | - | 駐車場 | - |
| 管理費 | - | 修繕積立金 | - |
| 現況 | 空家 | ||
| 仲介手数料 | なし | ||
| 利用制限 | - | ||
| 設備 | 日当り良好、閑静な住宅街、駐車2台可能、システムキッチン、追いだき機能付き、バス1坪以上、温水洗浄便座、シャワー付き洗面台、エアコンあり、都市ガス、上水道、下水道、田舎暮らし | ||
| 取引態様 | 売主 | ||
| 備考 | ☆平成17年に外壁張替えしました。 ☆賃貸の場合は家賃55000円 | ||
| 情報登録日 | 2026/04/16 | 次回更新予定日 | 2026/05/01 |
| 取引条件有効期限 | 2026/05/09 | ||
|
|
|
|
|
|
| TEL: | 0258-86-6934 |
|---|---|
| 所在地: | 新潟県長岡市大島本町3丁目10番8号202号室 |
| 交通: | |
| 営業時間: | 9:30~18:00/定休日:水曜日、日曜日 |
| 免許番号: | 新潟県知事(4)第4978号 |
| 所属団体名: | ブレインリアルエステート合同会社 |
| 取引態様: | 売主 |