| ログハウスはデザイン性が高く唯一無二の空間を楽しめます! | |||
| 物件コード | 00044-200715 | ||
|---|---|---|---|
| 物件名 | 長岡市下々条町 2LDKのログハウス | ||
| 交通 | 駅:信越線 押切駅から徒歩29分、バス:大野から徒歩2分 | ||
| 物件所在地 | 新潟県長岡市下々条町2484-9 | ||
| 物件種別 | 中古一戸建て | ||
| 構造 | 木造 | 階建 | 地上2階建 |
| 建ぺい率/容積率 | 60%/200% | ||
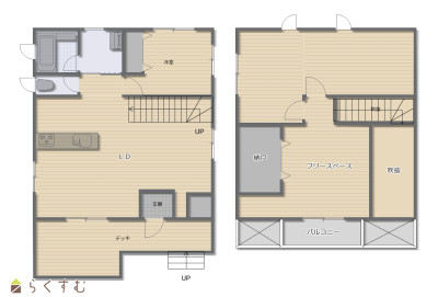
| 建物面積 | 1階 56.34㎡/ 2階 49.28㎡/ 計 105.62㎡ /31.95坪 | ||
| 土地面積 | 222.98㎡ /67.45坪 | ||
| 築年月 | 2014年10月(築11年) | ||
| 入居時期 | 随時入居(引き渡し)可 | ||
| 用途地域 | 第2種中高層住居専用地域 | 地目 | 宅地 |
| 都市計画 | - | 学校区 | 黒条小学校(684m)・堤岡中学校(266m) |
| 形状 | 間口 12.38m | 道路 | 北西側:8.1m |
| 私道 | - | ||
| 所在階/階数 | - | 号室 | - |
|---|---|---|---|
| 販売価格 | 23,800,000円 | 方位 | 西 |
| 間取り | 2LDK | ||
| 専有面積 | - | バルコニー面積 | - |
| その他面積 | - | 駐車場 | - |
| 管理費 | - | 修繕積立金 | - |
| 現況 | 空家 | ||
| 仲介手数料 | 851,400円 | ||
| 利用制限 | - | ||
| 設備 | 日当り良好、閑静な住宅街、スーパー近く、建物確認・完了検査済証あり、LDK15帖以上、駐車2台可能、TVインターホン、カウンターキッチン、IHクッキングヒーター、追いだき機能付き、バス1坪以上、温水洗浄便座、シャワー付き洗面台、エアコンあり、全室エアコン、ウッドデッキ・テラス、都市ガス、上水道、下水道、田舎暮らし | ||
| 取引態様 | 一般 | ||
| 備考 | ■現況有姿での引渡しとなります。 ■年間の固定資産税 10万円 ■薪をストックする物置有 | ||
| 情報登録日 | 2026/03/23 | 次回更新予定日 | 2026/05/22 |
| 取引条件有効期限 | 2026/06/28 | ||
|
|
|
|
|
|
| TEL: | 0258-86-6934 |
|---|---|
| 所在地: | 新潟県長岡市大島本町3丁目10番8号202号室 |
| 交通: | |
| 営業時間: | 9:30~18:00/定休日:水曜日、日曜日 |
| 免許番号: | 新潟県知事(4)第4978号 |
| 所属団体名: | ブレインリアルエステート合同会社 |
| 取引態様: | 一般 |