| セカンドハウスやシェアハウスとしてのご利用もできます。 | |||
| 物件コード | 00044-200705 | ||
|---|---|---|---|
| 物件名 | 出雲崎町大寺中古住宅 | ||
| 交通 | 駅:越後線 妙法寺駅から徒歩12分、バス:大寺から徒歩3分 | ||
| 物件所在地 | 新潟県三島郡出雲崎町大寺925番地 | ||
| 物件種別 | 中古一戸建て | ||
| 構造 | 木造 | 階建 | 地上2階建 |
| 建ぺい率/容積率 | 60%/200% | ||
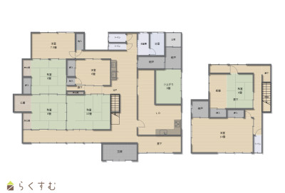
| 建物面積 | 1階 344.97㎡/ 2階 155.97㎡/ 計 500.94㎡ /151.53坪 | ||
| 土地面積 | 551.56㎡ /166.84坪 | ||
| 築年月 | 不詳 | ||
| 入居時期 | 相談 | ||
| 用途地域 | 用途の指定のない地域 | 地目 | 宅地 |
| 都市計画 | 都市計画区域外 | 学校区 | 出雲崎小学校(3,809m)・出雲崎中学校(3,827m) |
| 形状 | 間口 21m × 奥行 38m | 道路 | 南側公道 東側公道 |
| 私道 | - | ||
| 所在階/階数 | - | 号室 | - |
|---|---|---|---|
| 販売価格 | 1,600,000円 | 方位 | 南東 |
| 間取り |
7LDK (和室:6畳、8畳、8畳、10畳、6畳) (洋室:6、7.5、14) LDK15 |
||
| 専有面積 | - | バルコニー面積 | - |
| その他面積 | - | 駐車場 | - |
| 管理費 | - | 修繕積立金 | - |
| 現況 | 居住中 | ||
| 仲介手数料 | 110,000円 | ||
| 利用制限 | - | ||
| 設備 | 角地、日当り良好、閑静な住宅街、LDK15帖以上、駐車3台以上可能、南向き、システムキッチン、3口コンロ、ガスコンロ設置済み、追いだき機能付き、バス1坪以上、トイレ2か所以上、LPG、上水道、浄化槽、即引き渡し可能、別荘、田舎暮らし、事業向け | ||
| 取引態様 | 一般 | ||
| 備考 | - | ||
| 情報登録日 | 2025/12/23 | 次回更新予定日 | 2026/04/05 |
| 取引条件有効期限 | 2026/03/31 | ||
|
|
|
|
|
|
| TEL: | 0258-86-6934 |
|---|---|
| 所在地: | 新潟県長岡市大島本町3丁目10番8号202号室 |
| 交通: | |
| 営業時間: | 9:30~18:00/定休日:水曜日、日曜日 |
| 免許番号: | 新潟県知事(4)第4978号 |
| 所属団体名: | ブレインリアルエステート合同会社 |
| 取引態様: | 一般 |