| 物件コード | 00040-201160 | ||
|---|---|---|---|
| 物件名 | 石動町住宅 | ||
| 交通 | 駅:上越新幹線 長岡駅から徒歩78分、バス:日越団地から徒歩6分 | ||
| 物件所在地 | 新潟県長岡市石動町463-1 | ||
| 物件種別 | 中古一戸建て | ||
| 構造 | 木造 | 階建 | 地上2階建 |
| 建ぺい率/容積率 | 70%/200% | ||
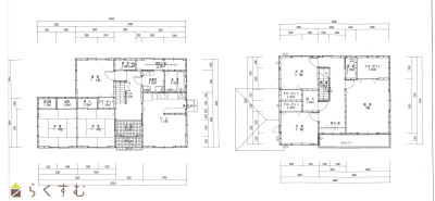
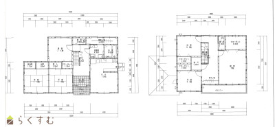
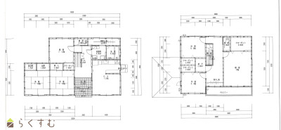
| 建物面積 | 1階 93.25㎡/ 2階 73.5㎡/ 計 166.75㎡ /50.44坪 | ||
| 土地面積 | 776.08㎡ /234.76坪 | ||
| 築年月 | 2006年8月(築19年) | ||
| 入居時期 | 測量分筆後 | ||
| 用途地域 | 無指定 | 地目 | 宅地 (現状:宅地) |
| 都市計画 | 市街化調整区域 | 学校区 | 日越小学校(830m)・西中学校(1,813m) |
| 形状 | 間口 27.4m × 奥行 27.3m | 道路 | 公道 |
| 私道 | - | ||
| 所在階/階数 | - | 号室 | - |
|---|---|---|---|
| 販売価格 | 21,500,000円 | 方位 | 東 |
| 間取り |
6LDK (和室:7.4畳、7.4畳) (洋室:7.4、6.3、6.3、12) LDk12 |
||
| 専有面積 | - | バルコニー面積 | - |
| その他面積 | 6㎡ /1.81坪 クローゼット | 駐車場 | - |
| 管理費 | - | 修繕積立金 | - |
| 現況 | 居住中 | ||
| 仲介手数料 | 775,500円 | ||
| 利用制限 | - | ||
| 設備 | 日当り良好、閑静な住宅街、駐車2台可能、複層ガラス、IHクッキングヒーター、追いだき機能付き、バス1坪以上、トイレ2か所以上、オール電化、上水道、下水道、全居室収納あり、シューズBOX | ||
| 取引態様 | 専任 | ||
| 備考 | ・土地測量分筆後の引渡しとなります。 ・敷地内に別棟の住宅があり、借家として契約しています。賃貸収入があります。 |
||
| 情報登録日 | 2025/10/07 | 次回更新予定日 | 2026/01/05 |
| 取引条件有効期限 | 2025/12/07 | ||
|
|
|
|
| TEL: | 0120-1818-27 |
|---|---|
| 所在地: | 新潟県長岡市千歳1-3-25 |
| 交通: | 長岡駅 |
| 営業時間: | 8時30分~17時30分(大手支店は9時~18時)/定休日:本社:土日祝日(事前予約での対応可能)、支店:日曜祝日第5土曜(毎年2月下旬から3月は休みなし) |
| 免許番号: | 新潟県知事(17)第191号 |
| 所属団体名: | 新潟県宅地建物取引協会 長岡支部 |
| 取引態様: | 専任 |