| 物件コード | 00030-200457 | ||
|---|---|---|---|
| 物件名 | 長岡市希望が丘一丁目売土地 A | ||
| 交通 | バス:西中学校前から徒歩2分 | ||
| 物件所在地 | 新潟県長岡市希望が丘1丁目504-11 | ||
| 物件種別 | 売土地・分譲地 | ||
| 物件区分 | 売土地 | ||
| 構造 | - | 階建 | - |
| 建ぺい率/容積率 | 50%/80% | ||
| 建物面積 | - | ||
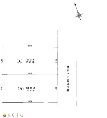
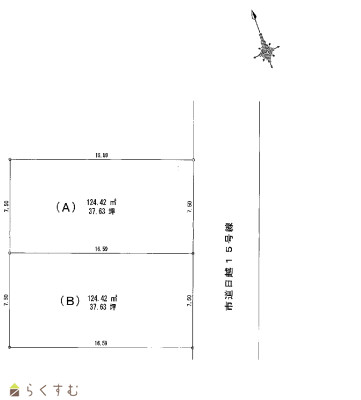
| 土地面積 | 124.42㎡ /37.63坪 | ||
| 築年月 | - | ||
| 入居時期 | 相談 | ||
| 用途地域 | 第1種低層住居専用地域 | 地目 | 宅地 (現状:宅地) |
| 都市計画 | 市街化区域 | 学校区 | 希望が丘小学校(398m)・西中学校(150m) |
| 形状 | 間口 7.5m × 奥行 16.5m | 道路 | 東側市道幅員6m |
| 私道 | - | ||
| 所在階/階数 | - | 号室 | - |
|---|---|---|---|
| 販売価格 | 7,150,000円 | 方位 | - |
| 間取り | - | ||
| 専有面積 | - | バルコニー面積 | - |
| その他面積 | - | 駐車場 | - |
| 管理費 | - | 修繕積立金 | - |
| 現況 | - | ||
| 仲介手数料 | 330,000円 | ||
| 利用制限 | - | ||
| 設備 | 整形地、前道6m以上、更地、学校近く、閑静な住宅街、建築条件なし、所有権、都市ガス(前面道路)、上水道(宅地内)、下水道(宅地内)、住宅向け、別荘地 | ||
| 取引態様 | 専任 | ||
| 備考 | 境界確定測量後、辺長及び面積と差異が生じることがあります。 道路消雪組合加入金調査中です。 |
||
| 情報登録日 | 2025/02/07 | 次回更新予定日 | 2026/05/21 |
| 取引条件有効期限 | 2024/12/11 | ||
|
|
|
|
| TEL: | 0258-46-8777 |
|---|---|
| 所在地: | 新潟県長岡市南七日町89-21 |
| 交通: | バス停「南七日町」徒歩3分 |
| 営業時間: | 9:00~18:00/定休日:日曜・祭日 |
| 免許番号: | 新潟県知事(10)2876号 |
| 所属団体名: | 新潟県宅地建物取引業協会 長岡支部 |
| 取引態様: | 専任 |