| 宮内1丁目のリノベーション物件です♪近隣駐車場も紹介可能です♪価格改定しました。 | |||
| 物件コード | 00017-200304 | ||
|---|---|---|---|
| 物件名 | 宮内1丁目リノベーション物件♪近隣駐車場も紹介可能♪価 | ||
| 交通 | 駅:信越線 宮内駅から徒歩6分 | ||
| 物件所在地 | 新潟県長岡市宮内1丁目10-25 | ||
| 物件種別 | 中古一戸建て | ||
| 構造 | 木造 | 階建 | 地上2階建 |
| 建ぺい率/容積率 | 60%/200% | ||
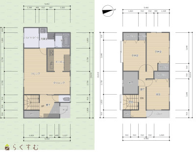
| 建物面積 | 1階 54.1㎡/ 2階 52.17㎡/ 計 106.27㎡ /32.14坪 | ||
| 土地面積 | 113.96㎡ /34.47坪 | ||
| 築年月 | 1986年7月(築39年) | ||
| 入居時期 | 随時入居(引き渡し)可 | ||
| 用途地域 | 第1種住居地域 | 地目 | 宅地 (現状:宅地) |
| 都市計画 | 市街化区域 | 学校区 | 上組小学校(1,102m)・宮内中学校(488m) |
| 形状 | 間口 7m × 奥行 16.6m | 道路 | 建築基準法第43条第2項2号(但し書き道路) |
| 私道 | 建築基準法第43条第2項2号(但し書き道路) | ||
| 所在階/階数 | - | 号室 | - |
|---|---|---|---|
| 販売価格 | 17,500,000円 | 方位 | 指定なし |
| 間取り |
3LDK (洋室:6、6、6) LDK18 |
||
| 専有面積 | - | バルコニー面積 | - |
| その他面積 | - | 駐車場 | - |
| 管理費 | - | 修繕積立金 | - |
| 現況 | 空家 | ||
| 仲介手数料 | 643,500円 | ||
| 利用制限 | - | ||
| 設備 | 角地、閑静な住宅街、LDK15帖以上、全室フローリング、駐車2台可能、複層ガラス、デインプルキー、システムキッチン、カウンターキッチン、追いだき機能付き、バス1坪以上、温水洗浄便座、都市ガス、上水道、下水道、内装リフォーム済み、外装リフォーム済み、リノベーション物件、即引き渡し可能 | ||
| 取引態様 | 一般 | ||
| 備考 | 私道公衆用道路部分14㎡は無償でお引渡し致します。 | ||
| 情報登録日 | 2025/09/29 | 次回更新予定日 | 2026/05/21 |
| 取引条件有効期限 | 2024/08/31 | ||
|
|
|
|
|
|
| TEL: | 0258-35-6682 |
|---|---|
| 所在地: | 新潟県長岡市曙1-1-7 |
| 交通: | |
| 営業時間: | 9:00~18:00/定休日: |
| 免許番号: | 新潟県知事(4)4781号 |
| 所属団体名: | 新潟県宅地建物取引業協会 長岡支部 |
| 取引態様: | 一般 |