| 母屋の屋根はステンレス製です。JR滝谷駅まで徒歩7分 畑もついておりますので田舎暮らしをご検討の方にもおすすめです。2面道路に面する敷地面積約1390㎡の広々とした敷地 | |||
| 物件コード | 00010-200226 | ||
|---|---|---|---|
| 物件名 | 滝谷町4LDK中古住宅【平成25年リフォーム済み物件】 | ||
| 交通 | 駅:上越線 越後滝谷駅から徒歩9分、バス:滝谷2丁目から徒歩1分 | ||
| 物件所在地 | 新潟県長岡市滝谷町244 他5筆 | ||
| 物件種別 | 中古一戸建て | ||
| 構造 | 木造 | 階建 | 地上2階建 |
| 建ぺい率/容積率 | 70%/200% | ||
| 建物面積 | 1階 103.85㎡/ 2階 67.06㎡/ 計 170.91㎡ /51.7坪 | ||
| 土地面積 | 1,395.83㎡ /422.23坪 | ||
| 築年月 | 2013年5月(築13年) | ||
| 入居時期 | 相談 | ||
| 用途地域 | 無指定 | 地目 | 宅地・田・畑 (現状:宅地・畑) |
| 都市計画 | 市街化調整区域 | 学校区 | 岡南小学校(228m)・岡南中学校(432m) |
| 形状 | 間口 22.2m × 奥行 81.9m | 道路 | 東側 県道滝谷三和線7m、 西側 市道六日市24号線6.2m |
| 私道 | - | ||
| 所在階/階数 | - | 号室 | - |
|---|---|---|---|
| 販売価格 | 22,000,000円 | 方位 | 東 |
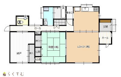
| 間取り |
4LDK (和室:10畳、8畳) (洋室:6、8.7) LDK21.3 |
||
| 専有面積 | - | バルコニー面積 | - |
| その他面積 | - | 駐車場 | - |
| 管理費 | - | 修繕積立金 | - |
| 現況 | 空家 | ||
| 仲介手数料 | 792,000円 | ||
| 利用制限 | - | ||
| 設備 | 閑静な住宅街、建物確認・完了検査済証あり、LDK15帖以上、駐車3台以上可能、駐車場融雪設備あり、TVインターホン、複層ガラス、デインプルキー、システムキッチン、3口コンロ、ガスコンロ設置済み、追いだき機能付き、バス1坪以上、温水洗浄便座、シャワー付き洗面台、エアコンあり、LPG、上水道、下水道、シューズBOX、別荘、田舎暮らし | ||
| 取引態様 | 一般 | ||
| 備考 | ・都市計画法第34条12号区域内 都市計画法第43条許可を受けることで宅地部分に専用住宅の再建築は可、但し市街化区域に土地を所有の場合は再建築不可。 ・公簿面積1395.83㎡のうち農地部分404㎡。所有権移転の為には農地法3条許可が必要となります(別途費用、農地部分住宅建築不可) ・敷地内消雪用浅井戸あり ・建築確認・検査済み証は平成25年増築部分のものがございます。 ・昭和50年築部分(1F和室、納戸、2F和室、洋室)も平成25年時にスケルトンリフォーム済み ・平成25年時屋根をステンに交換済 ※屋外に木造2階建て付属家あり(1F18.21㎡、2F16.56㎡建築年月日不詳) ※水道管の引き込みが隣地を経由しておりますが現状渡しとなります。(隣地所有者承諾済み) ※内部家財は撤去予定ですが希望であれば残置可能です。 ※仲介業者様へ 仲介手数料は当社との折半でお願いします。 ※ハウスクリーニング後引渡し |
||
| 情報登録日 | 2025/11/28 | 次回更新予定日 | 2026/05/21 |
| 取引条件有効期限 | 2026/01/23 | ||
|
|
|
|
|
| TEL: | 0258-28-1528 |
|---|---|
| 所在地: | 新潟県長岡市北山1丁目43番地12 |
| 交通: | 北山バス停の目の前です☆ |
| 営業時間: | 9:00~17:30(第1.3.5土曜営業9:00~15:00)/定休日:日曜・祝日・第2・4土曜日 |
| 免許番号: | 新潟県知事(12)2357号 |
| 所属団体名: | 新潟県宅地建物取引業協会 長岡支部 |
| 取引態様: | 一般 |