1
物件掲載企業数:
301
社
|賃貸物件:
3,177
件|売買物件:
3,245
件|今週の登録物件:
91
件
閲覧中のブラウザ(インターネットエクスプローラー)は非推奨ブラウザです。
物件が正しく表示されなかったり、正しく検索されない場合があります。最新のブラウザ(Google Chrome・Edgeなど)にてご利用お願いいたします。
Google Chrome
Microsoft Edge
アパート・マンション・一戸建て
駐車場
貸土地
店舗
事務所
倉庫・工場
新築分譲マンション
中古マンション
新築一戸建て
中古一戸建て
売土地・分譲地
その他(投資物件など)
マンション
一戸建て
土地
ホーム
>
検索方法選択
>
ランドマーク指定
> 物件一覧
全エリア
の
中古一戸建て
一覧
695件
該当しました。
<前のページ
22
23
24
25
26
27
28
29
30
31
32
次のページ>
表示切替:
一覧表示
/
地図表示
並び替え:
指定なし
新着順
価格が安い順
価格が高い順
画像
物件名/所在地/取扱店
詳細
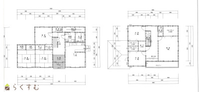
脇野町 売住宅
新潟県長岡市脇野町464番地3
株式会社 棚橋不動産
価格
:
16,980,000
円
土地面積
:127.68㎡ /38.62坪
建物面積
:96.05㎡ /29.05坪
間取り
:3LDK
築年月
:2015年11月
■ 新耐震基準適合×内外装リフォーム住宅 ■ 前面道路に消雪パイプ完備 ■ 駐車3台可能(1台分カーポート付) ■ キッチン・浴室・洗面・トイレ新品交換
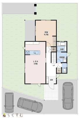
長岡市大曲戸新田 リフォーム戸建
新潟県長岡市大曲戸新田633-15
新潟土地建物販売センター 株式会社
価格
:
17,490,000
円
土地面積
:165.34㎡ /50.01坪
建物面積
:88.88㎡ /26.88坪
間取り
:3LDK
築年月
:1988年11月
内外装リフォーム済中古住宅!白あり防除施工保証(5年間)付!高床式駐車場付き+前面道路消雪パイプ有で冬場も安心! 各種商業施設・南越路スマートICが約1km圏内です♬
長岡市浦 リフォーム済中古戸建
新潟県長岡市浦9836
長岡不動産販売株式会社
価格
:
17,490,000
円
土地面積
:205.34㎡ /62.11坪
建物面積
:177.46㎡ /53.68坪
間取り
:4LDK
築年月
:1990年12月
宮内1丁目のリノベーション物件です♪近隣駐車場も紹介可能です♪価格改定しました。
宮内1丁目リノベーション物件♪近隣駐車場も紹介可能♪価
新潟県長岡市宮内1丁目10-25
有限会社 ABCホーム
価格
:
17,500,000
円
土地面積
:113.96㎡ /34.47坪
建物面積
:106.27㎡ /32.14坪
間取り
:3LDK
築年月
:1986年7月
【庭で季節を育てる、ゆとりの暮らし8DK】趣味部屋、ワークスペース、くつろぎの間…8DKだからこそ叶う“自分時間”の充実。
柏崎市比角二丁目中古戸建
新潟県柏崎市比角2丁目
田中不動産株式会社
価格
:
17,800,000
円
土地面積
:607.12㎡ /183.65坪
建物面積
:216.73㎡ /65.56坪
間取り
:8DK
築年月
:1966年12月
【リセットハウス 予約制オープンハウス開催中!】上越大通り近く生活利便性良好♪5LDK+納戸・パントリー付き!駐車3台可
上越市新光町一丁目 リセットハウス
新潟県上越市新光町一丁目2番32号
株式会社リアルト・ハーツ 長岡支店
価格
:
17,980,000
円
土地面積
:303㎡ /91.65坪
建物面積
:142.23㎡ /43.02坪
間取り
:5LDK
築年月
:1968年10月
☆2026年5月リフォーム完了予定! ☆新潟西バイパスまで車で5分 ☆セキスイハイム施工の住宅 ☆水まわり機器は全て新品交換 ☆3.6帖のファミリークローゼット完備 ☆ランドリースペース付 ☆南面バルコニー ☆購入サポート有り
当社グループ物件!【リセットハウス】新潟市西区内野西
新潟県新潟市西区内野西2-5-12
株式会社ハーツリアルエステート 新潟支店
価格
:
17,980,000
円
土地面積
:148.76㎡ /44.99坪
建物面積
:136.51㎡ /41.29坪
間取り
:5LDK
築年月
:1991年12月
※商談中《リノビレッジ》嬉しい2台分のカーポート付!メーターモジュール設計でゆったり空間!前面道路は消雪パイプが有るので冬でも安心!【5年保証(かし保険適合予定)】【住宅ローン控除対象】【安心R住宅】
《リノビレッジ》小千谷市土川2丁目 リノベーション住宅
新潟県小千谷市土川2丁目18-7
長岡不動産販売株式会社
価格
:
17,980,000
円
土地面積
:211.6㎡ /64坪
建物面積
:117㎡ /35.39坪
間取り
:5LDK
築年月
:2002年4月
一部リフォーム済み和風住宅!日当たりの良い広縁からは緑豊かなお庭が望めます!追加リフォームもご相談ください!【白あり防除工事実施(5年保証)】
加茂市若宮町1丁目 中古戸建
新潟県加茂市若宮町1丁目6-6
長岡不動産販売株式会社
価格
:
17,980,000
円
土地面積
:824.12㎡ /249.29坪
建物面積
:237.5㎡ /71.84坪
間取り
:6DK
築年月
:1980年12月
■ミサワホーム様施工
長岡市高町3丁目
新潟県長岡市高町3丁目858番地378
ハーバーエステート株式会社
価格
:
17,990,000
円
土地面積
:238.05㎡ /72.01坪
建物面積
:83.57㎡ /25.27坪
間取り
:3LDK
築年月
:1994年9月
三角の外壁が印象的な建物です!
西福島中古
新潟県上越市頸城区西福島260-3
いえみらいサポート株式会社
価格
:
18,000,000
円
土地面積
:644.2㎡ /194.87坪
建物面積
:159.1㎡ /48.12坪
間取り
:3LDK
築年月
:2004年4月
希少な店舗併用住宅です!5LDK+店舗25坪+倉庫20畳!開業される方必見です。
笹崎2丁目店舗併用住宅
新潟県長岡市笹崎2丁目3-1
有限会社 竹内不動産
価格
:
18,000,000
円
土地面積
:365.99㎡ /110.71坪
建物面積
:254.77㎡ /77.06坪
間取り
:5LDK
築年月
:1986年9月
人気の比角小学校区!国道8号線至近、近隣商業施設へ徒歩圏内!
長浜町 中古住宅 土地64坪・建物30坪
新潟県柏崎市長浜町7番35-4号
株式会社 ライフプラン
価格
:
18,000,000
円
土地面積
:214.33㎡ /64.83坪
建物面積
:101.02㎡ /30.55坪
間取り
:4LDK
築年月
:2004年2月
■2台分ガレージ付邸宅。隣接建物がない為、開放的な生活が実現できます。 ■長岡バイパスにアクセス良い立地 ■カーポート付 ■ユニットバス1.25坪、浴室暖房付
長岡市鷺巣町
新潟県長岡市鷺巣町364-1
ハーバーエステート株式会社
価格
:
18,000,000
円
土地面積
:670.46㎡ /202.81坪
建物面積
:179.4㎡ /54.26坪
間取り
:5LDK
築年月
:2001年10月
上越市大和2丁目 中古住宅
新潟県上越市大和2丁目8-13
リノベスタハセガワ株式会社
価格
:
18,000,000
円
土地面積
:440.47㎡ /133.24坪
建物面積
:185.85㎡ /56.21坪
間取り
:6DK
築年月
:1982年7月
【内覧事前予約必須】【引渡し時期指定あり】駐車4台可、床暖房完備、宅内融雪設備あり☆ 国道8号長岡東バイパスまでアクセス良好、スーパー徒歩圏内☆
新組町 売住宅
新潟県長岡市新組町2155-8
髙頭不動産 株式会社
価格
:
18,500,000
円
土地面積
:330.99㎡ /100.12坪
建物面積
:141.06㎡ /42.67坪
間取り
:3LDK
築年月
:1995年8月
【長岡市川崎】スーパーや衣料品店などの商業エリアが徒歩圏内!生活に便利な立地☆車庫付き6LDKの中古一戸建て。
長岡市堀金 中古住宅
新潟県長岡市堀金3丁目1-10
株式会社 森山建設
価格
:
18,500,000
円
土地面積
:414㎡ /125.23坪
建物面積
:169.87㎡ /51.38坪
間取り
:6LDK
築年月
:1977年7月
2階洋室を間仕切り部屋数を増やす事が可能です 駐車6台可能(車種による)宅内融雪有り冬季も安心です
江陽町 売住宅
長岡市江陽2-14-2
有限会社 アットホーム
価格
:
18,800,000
円
土地面積
:251㎡ /75.92坪
建物面積
:137.01㎡ /41.44坪
間取り
:2LDK
築年月
:1996年8月
人気の江陽エリアの中古住宅! 119坪の広々とした土地 駐車場4台可能 車庫付です! 裏庭は畑スペースもとれます! 大家族にもお奨めです!
堤町 中古住宅
新潟県長岡市堤町5-8
ふどうさんの相談所 (ライフデザイン合同会社 イオン長岡店)
価格
:
18,800,000
円
土地面積
:395.55㎡ /119.65坪
建物面積
:176.08㎡ /53.26坪
間取り
:6LDK
築年月
:1993年2月
☆2026年8月リフォーム完了予定! ☆JR越後線「寺尾」駅徒歩12分 ☆水まわり機器は全て新品交換 ☆WIC・パントリー完備 ☆ホスクリーン付き洗面室 ☆駐車は2台可 ☆南東向きバルコニー ☆購入サポート有り
当社グループ物件!【リセットハウス】新潟市西区坂井東
新潟県新潟市西区坂井東2-10-1
株式会社ハーツリアルエステート 新潟支店
価格
:
18,980,000
円
土地面積
:160.88㎡ /48.66坪
建物面積
:112.18㎡ /33.93坪
間取り
:4LDK
築年月
:1977年11月
表示切替:
一覧表示
/
地図表示
並び替え:
指定なし
新着順
価格が安い順
価格が高い順
価格は物件の代金総額を表示しており、消費税が課税される場合は税込み価格です。
建築条件付き土地価格には、建物価格は含まれません。
物件情報の詳細については取り扱い店までお問い合わせください。
完成予想図はいずれも外構・植栽・外観等実際のものと異なることが多少あります。
CG合成の画像の場合実際と異なることが多少あります。
完成後1年以上経過したものが未入居として記載される場合があります。ご了承ください。
販売予定物件は販売開始するまで契約または予約の申し込みはできません。
ご購入の場合物件詳細や契約内容についてご自身で十分ご確認いただきますようよろしく御願いします。
建築条件付きとは…その土地に建築する建物の建築請負契約が、一定期間内に成立することを条件として売買される土地のことをいいます。請負契約成立に向けて設計プランを協議するため、土地購入者が希望する建物にするために一定の期間(概ね3ヶ月)交渉期間としその期間内に希望するプランが実現できたかどうかによって土地の購入の判断をします。納得のいくプランができず請負契約が未成立になった場合、土地契約にかかった代金(手付金など)は、すべて返却されます。
695件
該当しました。
<前のページ
22
23
24
25
26
27
28
29
30
31
32
次のページ>
0件
がマッチ
基本条件
物件種別
中古一戸建て
価格
下限なし
100万円
250万円
500万円
1000万円
1500万円
2000万円
2500万円
3000万円
3500万円
4000万円
4500万円
5000万円
5500万円
6000万円
6500万円
7000万円
7500万円
8000万円
8500万円
9000万円
9500万円
1億円
~
上限なし
100万円
250万円
500万円
1000万円
1500万円
2000万円
2500万円
3000万円
3500万円
4000万円
4500万円
5000万円
5500万円
6000万円
6500万円
7000万円
7500万円
8000万円
8500万円
9000万円
9500万円
1億円
間取り
ワンルーム
1K
1DK
1LDK
2K
2DK
2LDK
3K
3DK
3LDK
4K
4DK
4LDK以上
専有面積
下限なし
20㎡
30㎡
40㎡
50㎡
60㎡
70㎡
80㎡
90㎡
100㎡
~
上限なし
20㎡
30㎡
40㎡
50㎡
60㎡
70㎡
80㎡
90㎡
100㎡
土地面積
下限なし
60㎡ (約18坪)
70㎡ (約21坪)
80㎡ (約24坪)
90㎡ (約27坪)
100㎡ (約30坪)
110㎡ (約33坪)
120㎡ (約36坪)
130㎡ (約39坪)
140㎡ (約42坪)
150㎡ (約45坪)
160㎡ (約48坪)
170㎡ (約51坪)
180㎡ (約54坪)
190㎡ (約57坪)
200㎡ (約60坪)
250㎡ (約75坪)
300㎡ (約90坪)
~
上限なし
60㎡ (約18坪)
70㎡ (約21坪)
80㎡ (約24坪)
90㎡ (約27坪)
100㎡ (約30坪)
110㎡ (約33坪)
120㎡ (約36坪)
130㎡ (約39坪)
140㎡ (約42坪)
150㎡ (約45坪)
160㎡ (約48坪)
170㎡ (約51坪)
180㎡ (約54坪)
190㎡ (約57坪)
200㎡ (約60坪)
250㎡ (約75坪)
300㎡ (約90坪)
建物面積
下限なし
60㎡ (約18坪)
70㎡ (約21坪)
80㎡ (約24坪)
90㎡ (約27坪)
100㎡ (約30坪)
110㎡ (約33坪)
120㎡ (約36坪)
130㎡ (約39坪)
140㎡ (約42坪)
150㎡ (約45坪)
160㎡ (約48坪)
170㎡ (約51坪)
180㎡ (約54坪)
190㎡ (約57坪)
200㎡ (約60坪)
250㎡ (約75坪)
300㎡ (約90坪)
~
上限なし
60㎡ (約18坪)
70㎡ (約21坪)
80㎡ (約24坪)
90㎡ (約27坪)
100㎡ (約30坪)
110㎡ (約33坪)
120㎡ (約36坪)
130㎡ (約39坪)
140㎡ (約42坪)
150㎡ (約45坪)
160㎡ (約48坪)
170㎡ (約51坪)
180㎡ (約54坪)
190㎡ (約57坪)
200㎡ (約60坪)
250㎡ (約75坪)
300㎡ (約90坪)
坪単価
下限なし
5万円
10万円
15万円
20万円
25万円
30万円
35万円
40万円
45万円
50万円
~
上限なし
5万円
10万円
15万円
20万円
25万円
30万円
35万円
40万円
45万円
50万円
築年数
指定なし
新築
3年以内
5年以内
10年以内
15年以内
20年以内
方位
北
北東
東
南東
南
南西
西
北西
おすすめ条件
ペット可・相談
楽器可・相談
情報公開日
指定なし
本日
3日以内
1週間以内
1ヶ月以内
0件
がマッチ
人気のあるこだわり条件
角地(134)
高台に立地(40)
日当り良好(341)
閑静な住宅街(371)
スーパー近く(145)
長期優良住宅(3)
設計住宅性能評価付(2)
耐震構造(9)
フラット35S適合(1)
瑕疵担保保険対象(7)
耐震基準適合証明書あり(3)
新築時図面あり(57)
修繕記録あり(9)
BELS/省エネ基準適合認定建物(2)
インスペクション報告書あり(8)
建物確認・完了検査済証あり(26)
適合状況調査報告書あり(1)
瑕疵担保保険付き(16)
LDK15帖以上(145)
全室フローリング(54)
築10年以内(40)
築15年以内(26)
駐車2台可能(233)
駐車3台以上可能(265)
駐車場融雪設備あり(33)
南向き(149)
TVインターホン(128)
複層ガラス(85)
デインプルキー(36)
システムキッチン(242)
カウンターキッチン(73)
IHクッキングヒーター(110)
浄水器(29)
食器洗浄乾燥機(52)
3口コンロ(152)
2口コンロ(27)
ガスコンロ設置可能(37)
ガスコンロ設置済み(44)
追いだき機能付き(297)
浴室乾燥機(52)
バス1坪以上(251)
温水洗浄便座(324)
トイレ2か所以上(231)
シャワー付き洗面台(198)
エアコンあり(252)
床暖房(15)
24時間換気システム(41)
堀ごたつ(3)
全室エアコン(12)
オール電化(52)
太陽光発電システム(5)
省エネ給湯機(48)
ウッドデッキ・テラス(21)
ルーフバルコニー(15)
都市ガス(444)
LPG(98)
上水道(587)
下水道(504)
浄化槽(66)
バリアフリー(25)
その他水道(3)
ウォークインクローゼット(90)
全居室収納あり(127)
床下収納(45)
シューズBOX(149)
シューズインクローゼット(18)
BS端子(18)
CS(5)
CATV(7)
LAN端子(3)
内装リフォーム済み(82)
外装リフォーム済み(59)
リノベーション物件(31)
2世帯向き(36)
即引き渡し可能(150)
別荘(74)
田舎暮らし(168)
事業向け(46)
条件に合った物件数は、
0 件
です。
立地・環境
角地(134)
高台に立地(40)
日当り良好(341)
閑静な住宅街(371)
スーパー近く(145)
構造・工法・仕様
長期優良住宅(3)
設計住宅性能評価付(2)
耐震構造(9)
フラット35S適合(1)
瑕疵担保保険対象(7)
耐震基準適合証明書あり(3)
新築時図面あり(57)
修繕記録あり(9)
BELS/省エネ基準適合認定建物(2)
インスペクション報告書あり(8)
建物確認・完了検査済証あり(26)
適合状況調査報告書あり(1)
瑕疵担保保険付き(16)
面積・間取り
LDK15帖以上(145)
全室フローリング(54)
築年
築10年以内(40)
築15年以内(26)
駐車・駐輪
駐車2台可能(233)
駐車3台以上可能(265)
駐車場融雪設備あり(33)
採光・向き
南向き(149)
管理・防犯
TVインターホン(128)
複層ガラス(85)
デインプルキー(36)
キッチン
システムキッチン(242)
カウンターキッチン(73)
IHクッキングヒーター(110)
浄水器(29)
食器洗浄乾燥機(52)
3口コンロ(152)
2口コンロ(27)
ガスコンロ設置可能(37)
ガスコンロ設置済み(44)
浴室
追いだき機能付き(297)
浴室乾燥機(52)
バス1坪以上(251)
トイレ
温水洗浄便座(324)
トイレ2か所以上(231)
洗面所
シャワー付き洗面台(198)
冷暖房・空調
エアコンあり(252)
床暖房(15)
24時間換気システム(41)
堀ごたつ(3)
全室エアコン(12)
光熱設備
オール電化(52)
太陽光発電システム(5)
省エネ給湯機(48)
バルコニー・テラス
ウッドデッキ・テラス(21)
ルーフバルコニー(15)
室内仕様・設備
都市ガス(444)
LPG(98)
上水道(587)
下水道(504)
浄化槽(66)
バリアフリー(25)
その他水道(3)
収納
ウォークインクローゼット(90)
全居室収納あり(127)
床下収納(45)
シューズBOX(149)
シューズインクローゼット(18)
電気設備
BS端子(18)
CS(5)
CATV(7)
LAN端子(3)
リフォーム
内装リフォーム済み(82)
外装リフォーム済み(59)
リノベーション物件(31)
費用・入居・引渡・条件
2世帯向き(36)
即引き渡し可能(150)
その他
別荘(74)
田舎暮らし(168)
事業向け(46)
条件に合った物件数は、
0 件
です。
アパート・マンション・一戸建て
/
駐車場
/
貸土地
/
店舗
/
事務所
/
倉庫・工場
新築分譲マンション
/
中古マンション
/
新築一戸建て
/
中古一戸建て
/
売土地
/
投資物件・その他
マンション
/
一戸建て
/
土地
建てる・リフォーム
物件掲載企業一覧
掲載希望の企業様へ
新潟の不動産情報サイト
サービス利用規約
運営会社
サイトマップ
プライバシーポリシー
お問い合わせ
リンク
Copyright (C)
株式会社 コモンライフ・コーポレーション
. All Rights Reserved.
新潟・長岡・柏崎の賃貸・マンション・アパート・住宅の不動産物件情報サイト
不動産検索サイト「らくすむ」及び関連サイトに記載の不動産情報は、会員規約に則り、情報提供会社様の責任のもとに発信されております。
不動産の賃借、購入に関しては賃借者、購入者ご自身が情報を確認され、会社企業様から説明を受けられたうえで判断をお願いいたします。
不動産検索サイト「らくすむ」及び関連サイトに記載の不動産情報、写真、デザイン、コンテンツなどの
無断転載・転用・複製
など禁止します。