新潟県見附市細越1丁目2-5 中古一戸建て 6DK 1,000,000円の物件情報

物件名/所在地 詳細 価格
細越1丁目中古住宅(予約済)
新潟県見附市細越1丁目2-5
  • 土地面積
    :220.41㎡ /66.67坪
  • 建物面積
    :144.62㎡ /43.74坪
  • 間取り
    :6DK
  • 築年月
    :不詳
1,000,000
  • 細越1丁目中古住宅(予約済)
    株式会社 山常組
  • この物件を問い合わせる/無料
  • TEL: 0258-62-0804 0258-62-0804

物件画像

外観
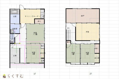
間取り
物件画像
※画像クリックで拡大表示
外観
物件画像
※画像クリックで拡大表示
間取り
詳細画像
物件画像
玄関
物件画像
和室
物件画像
バスルーム
物件画像
2階未工事部屋(間取り図には納戸と表示)
物件画像
洋室
物件画像
印刷用地図


物件概要

物件コード 00337-200011
物件名 細越1丁目中古住宅(予約済)
交通 駅:信越線 見附駅から徒歩36分、バス:本町3丁目から徒歩3分
物件所在地 新潟県見附市細越1丁目2-5
物件種別 中古一戸建て
構造 木造 階建 地上2階建
建ぺい率/容積率 60%/200%
建物面積 計 144.62㎡ /43.74坪
土地面積 220.41㎡ /66.67坪
築年月 不詳
入居(引き渡し)時期 随時入居(引き渡し)可
用途地域 第1種住居地域 地目 宅地  (現状:宅地)
都市計画 市街化区域 学校区 見附小学校(847m)・見附中学校(566m)
形状 間口 7.44m × 奥行 30.6m 道路 -
私道 - その他の制限 -
  • 細越1丁目中古住宅(予約済)
    株式会社 山常組
  • この物件を問い合わせる/無料
  • TEL: 0258-62-0804 0258-62-0804

物件詳細情報

所在階/階数 - 号室 -
販売価格 1,000,000円 方位 -
間取り 6DK (和室:6畳、7.2畳、6畳、6畳) (洋室:9)
DK6.5
2階:未工事部屋10.5
専有面積 - バルコニー面積 -
その他面積 - 駐車場 -
管理費 - 修繕積立金 -
現況 空家
仲介手数料 330,000円
利用制限 -
設備 ガスコンロ設置可能、追いだき機能付き、温水洗浄便座、都市ガス、上水道、下水道
取引態様 専属専任
備考 -
取り扱い会社

株式会社 山常組

新潟県見附市新町3-7-21

情報登録日 2025/10/14 次回更新予定日 2025/11/09
取引条件有効期限 2025/09/30
  • 細越1丁目中古住宅(予約済)
    株式会社 山常組
  • この物件を問い合わせる/無料
  • TEL: 0258-62-0804 0258-62-0804

この物件の地図・周辺情報・行政情報

この物件の周辺情報・行政情報を詳しく見る
【周辺情報】
物件の近くにあるコンビニや銀行・学校など、アイコン付のマップで詳しく表示できます!
【行政情報】
水道料や下水道料・ガス料金など、暮らしに関係のある情報を表示しています。
セブン-イレブン 見附本町店(コンビニ)までm
大光銀行 見附支店(銀行)までm

※カメラのアイコンがある場合は、マウスをポイントするとその施設の画像がご覧いただけます。


担当取扱い店舗情報

取扱い店舗画像
株式会社 山常組
TEL: 0258-62-0804
所在地: 新潟県見附市新町3-7-21
交通:
営業時間: 8:00~18:00/定休日:第2・4土曜、日曜、祝日
免許番号: 新潟県知事(8)第3541号
所属団体名: 公社 新潟県宅地建物取引協会 三条支部
取引態様: 専属専任
ホームページ: http://www.yamatsune.com