新潟県上越市春日山町2丁目13番9号 中古一戸建て 6LDK 26,540,000円の物件情報

大家族・二世帯同居の方には特におすすめです! ゆとりの6LDK!

物件名/所在地 詳細 価格
春日山2丁目リフォーム済中古住宅
新潟県上越市春日山町2丁目13番9号
  • 土地面積
    :347.69㎡ /105.17坪
  • 建物面積
    :201.62㎡ /60.99坪
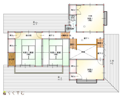
  • 間取り
    :6LDK
  • 築年月
    :1988年1月
26,540,000
  • 春日山2丁目リフォーム済中古住宅
    家'Sハセガワ 株式会社
  • この物件を問い合わせる/無料
  • TEL: 0120-72-3878 0120-72-3878

物件画像

外観
間取り
物件画像
※画像クリックで拡大表示
外観
物件画像
※画像クリックで拡大表示
間取り
詳細画像
物件画像
間取り2階
物件画像
玄関
物件画像
リビング
物件画像
キッチン
物件画像
和室


物件概要

広々100坪超の敷地で明るい東南角地
物件コード 00333-200018
物件名 春日山2丁目リフォーム済中古住宅
交通 駅:妙高はねうまライン 春日山駅から徒歩17分、バス:春日山町三丁目南から徒歩3分
物件所在地 新潟県上越市春日山町2丁目13番9号
物件種別 中古一戸建て
構造 木造 階建 地上2階建
建ぺい率/容積率 60%/200%
建物面積 1階 125.85㎡/ 2階 75.77㎡/ 計 201.62㎡ /60.99坪
土地面積 347.69㎡ /105.17坪
築年月 1988年1月(築38年)
入居(引き渡し)時期 2026年4月
用途地域 第1種中高層住居専用地域 地目 宅地  (現状:宅地)
都市計画 市街化区域 学校区 春日小学校(670m)・春日中学校(1,085m)
形状 間口 19m 道路 公道 幅員約6m
私道 - その他の制限 -
  • 春日山2丁目リフォーム済中古住宅
    家'Sハセガワ 株式会社
  • この物件を問い合わせる/無料
  • TEL: 0120-72-3878 0120-72-3878

物件詳細情報

所在階/階数 - 号室 -
販売価格 26,540,000円 方位 南東
間取り 6LDK (和室:8畳、8畳、8畳、6畳) (洋室:8、6)
L10帖 DK10帖 
専有面積 - バルコニー面積 -
その他面積 - 駐車場 -
管理費 - 修繕積立金 -
現況 空家
仲介手数料 なし
利用制限 -
設備 角地、日当り良好、閑静な住宅街、LDK15帖以上、駐車3台以上可能、南向き、システムキッチン、バス1坪以上、温水洗浄便座、トイレ2か所以上、シャワー付き洗面台、都市ガス、全居室収納あり、シューズBOX、内装リフォーム済み、外装リフォーム済み、2世帯向き
取引態様 仲介
備考 -
取り扱い会社

家'Sハセガワ 株式会社

新潟県妙高市十日市473

情報登録日 2026/02/27 次回更新予定日 2026/04/06
取引条件有効期限 2026/03/31
  • 春日山2丁目リフォーム済中古住宅
    家'Sハセガワ 株式会社
  • この物件を問い合わせる/無料
  • TEL: 0120-72-3878 0120-72-3878

この物件の地図・周辺情報・行政情報

この物件の周辺情報・行政情報を詳しく見る
【周辺情報】
物件の近くにあるコンビニや銀行・学校など、アイコン付のマップで詳しく表示できます!
【行政情報】
水道料や下水道料・ガス料金など、暮らしに関係のある情報を表示しています。

担当取扱い店舗情報

取扱い店舗画像
家'Sハセガワ 株式会社
TEL: 0120-72-3878
所在地: 新潟県妙高市十日市473
交通:
営業時間: 9:00~18:00/定休日:毎週火・水曜日・年末年始
免許番号: 新潟県知事(1)第5649号
所属団体名: 公社 新潟県宅地建物取引協会 上越支部
取引態様: 仲介
ホームページ: https://www.yeshasegawa.co.jp/