新潟県新潟市中央区万代1丁目2508番地5 中古マンション 3LDK 9,990,000円の物件情報

棟内エステ店あり!新潟駅徒歩7分、通勤・通学やお出かけにも便利な万代エリア

物件名/所在地 詳細 価格
万代ファーストハイツBrightマンション
※号室
新潟県新潟市中央区万代1丁目2508番地5
  • 専有面積
    :78.34㎡ /23.69坪
  • 間取り
    :3LDK
  • 築年月
    :1979年5月
9,990,000
  • 万代ファーストハイツBrightマンション
    有限会社 ブライトサクセス
  • この物件を問い合わせる/無料
  • TEL: 0258-35-2220 0258-35-2220

物件画像

外観
間取り
物件画像
※画像クリックで拡大表示
外観
物件画像
※画像クリックで拡大表示
間取り
詳細画像
物件画像
リビングダイニング:家具配置イメージ
物件画像
リビング:リフォーム中
物件画像
キッチン:リフォーム中
物件画像
和室
物件画像
廊下
物件画像
バスルーム
物件画像
トイレ
物件画像
洗面所
物件画像
印刷用地図
動画


物件概要

■ 万代シティをはじめ商業施設・飲食店・金融機関・医療機関が徒歩10分圏内に揃う利便性の高い立地 ■ 5階部分の角部屋につき、通風・採光に優れた開放感のある住戸 ■ 和室を備えており、くつろぎの空間や来客用としても活用可能 ■ バルコニー2か所設置で、用途に応じた使い分けができる間取り構成
物件コード 00320-200229
物件名 万代ファーストハイツBrightマンション
交通 駅:上越新幹線 新潟駅から徒歩10分、バス:万代シテイバスセンターから徒歩2分
物件所在地 新潟県新潟市中央区万代1丁目2508番地5
物件種別 中古マンション
構造 鉄骨鉄筋コン 階建 地上11階建
建ぺい率/容積率 80%/570%
建物面積 計 78.34㎡ /23.69坪
土地面積 -
築年月 1979年5月(築46年)
入居(引き渡し)時期 相談
用途地域 商業地域 地目 宅地
都市計画 市街化区域 学校区 南万代小学校(783m)・宮浦中学校(427m)
形状 - 道路 東側公道幅員9.3m
私道 - その他の制限 準防火地域、道路斜線制限、隣地斜線制限
  • 万代ファーストハイツBrightマンション
    有限会社 ブライトサクセス
  • この物件を問い合わせる/無料
  • TEL: 0258-35-2220 0258-35-2220

物件詳細情報

所在階/階数 5階/11階 号室 ※号室
販売価格 9,990,000円 方位
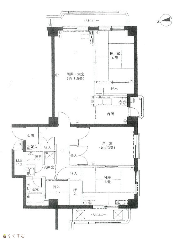
間取り 3LDK (和室:6畳、6畳) (洋室:6.3)
LD11.5
専有面積 78.34㎡ /23.69坪 バルコニー面積 10.3㎡ /3.11坪
その他面積 - 駐車場 現在空き無し
管理費 月額12100円 修繕積立金 月額16500円
現況 空家
仲介手数料 なし
自転車置き場 300円
月額
利用制限 ペット:可、楽器:相談
設備 10階建て以上、角部屋、2階以上、日当り良好、スーパー近く、最寄駅近く、洗濯機置き場、和室あり、駐輪場、管理人常駐(日中)、ガスコンロ設置済み、都市ガス、公営水道、下水道、全室収納あり、シューズBOX、ペット相談、楽器相談
取引態様 売主
備考 管理会社:ハウズイング株式会社
取り扱い会社

有限会社 ブライトサクセス

新潟県長岡市新町1-1-2

情報登録日 2026/02/02 次回更新予定日 2026/02/18
取引条件有効期限 2027/01/09
  • 万代ファーストハイツBrightマンション
    有限会社 ブライトサクセス
  • この物件を問い合わせる/無料
  • TEL: 0258-35-2220 0258-35-2220

この物件の地図・周辺情報・行政情報

この物件の周辺情報・行政情報を詳しく見る
【周辺情報】
物件の近くにあるコンビニや銀行・学校など、アイコン付のマップで詳しく表示できます!
【行政情報】
水道料や下水道料・ガス料金など、暮らしに関係のある情報を表示しています。
ローソン アパリゾート新潟駅前大通店(コンビニ)まで80m
ファミリーマート 新潟万代四丁目店(コンビニ)まで150m
ココカラファイン 新潟駅前店(ドラッグストア)までm
新潟伊勢丹(デパート)までm
第四北越銀行 新潟駅前支店(銀行)までm
ゆうちょ銀行 新潟店(銀行)までm
郵便ポスト ラブラ万代北側(郵便局)までm

※カメラのアイコンがある場合は、マウスをポイントするとその施設の画像がご覧いただけます。


担当取扱い店舗情報

取扱い店舗画像
有限会社 ブライトサクセス
TEL: 0258-35-2220
所在地: 新潟県長岡市新町1-1-2
交通: 長岡駅
営業時間: 午前10時00分~午後7時 /定休日:オンラインサービス:午前9時30分~午後9時
免許番号: 新潟県知事(1)第5629号
所属団体名: 公社 新潟県宅地建物取引協会 新潟支部
取引態様: 売主
ホームページ: https://bright-success.net/