新潟県新潟市東区幸栄2丁目20-19 新築一戸建て 3LDK 24,800,000円の物件情報

ウオロク空港通り店まで徒歩12分、ドラッグ・トップス空港通り店まで徒歩9分の立地。前面道路も広く、車は3台駐車可能。ファミリーにおすすめの3LDK

物件名/所在地 詳細 価格
幸栄2丁目新築一戸建
新潟県新潟市東区幸栄2丁目20-19
  • 土地面積
    :142.87㎡ /43.21坪
  • 建物面積
    :99.36㎡ /30.05坪
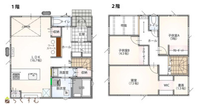
  • 間取り
    :3LDK
  • 築年月
    :2024年11月
24,800,000
  • 幸栄2丁目新築一戸建
    有限会社 ブライトサクセス
  • この物件を問い合わせる/無料
  • TEL: 0258-35-2220 0258-35-2220

物件画像

外観
間取り
物件画像
※画像クリックで拡大表示
外観
物件画像
※画像クリックで拡大表示
間取り図
詳細画像
物件画像
リビングイメージ
物件画像
キッチン
物件画像
バスルーム
物件画像
洗面所
物件画像
トイレ
物件画像
2階ホール
物件画像
玄関収納
物件画像
玄関
物件画像
【壁断熱】
物件画像
エコガラス
物件画像
【床断熱】
物件画像
【天井断熱】イメージ
物件画像
24時間熱交換換気扇
物件画像
印刷用地図
動画


物件概要

吹抜けで2階とつながるリビング、どこにいても家族の気配を感じられます。リビングにはワークスペースあります。二階ホールにもエアコン。季節ごとの入れ替え不要、頼もしいウォークインクローゼットあり。1.5帖の書斎つきで仕事部屋にも趣味部屋にもお使いいただけます。
物件コード 00320-200171
物件名 幸栄2丁目新築一戸建
交通 駅:白新線 大形駅から徒歩67分、バス:朝鮮学校前から徒歩4分
物件所在地 新潟県新潟市東区幸栄2丁目20-19
物件種別 新築一戸建て
構造 木造 階建 地上2階建
建ぺい率/容積率 60%/200%
建物面積 計 99.36㎡ /30.05坪
土地面積 142.87㎡ /43.21坪
築年月 2024年11月(築1年)
入居(引き渡し)時期 相談
用途地域 第2種住居地域 地目 宅地
都市計画 市街化区域 学校区 下山小学校(1,307m)・下山中学校(1,562m)
形状 間口 11.5m 道路 前面道路幅員・北17m
私道 私道負担無 その他の制限 景観法による規制有
  • 幸栄2丁目新築一戸建
    有限会社 ブライトサクセス
  • この物件を問い合わせる/無料
  • TEL: 0258-35-2220 0258-35-2220

物件詳細情報

所在階/階数 - 号室 -
販売価格 24,800,000円 方位
間取り 3LDK (洋室:7.5、5.0、4.5)
LDK16.7
専有面積 - バルコニー面積 -
その他面積 2.43㎡ /0.73坪  書斎1.5帖 駐車場 -
管理費 - 修繕積立金 -
現況 空家
仲介手数料 884,400円
利用制限 -
設備 整形地、前面道路6m以上、日当り良好、LDK15畳以上、全室フローリング、駐車場3台以上、TVインターホン、複層ガラス、システムキッチン、カウンターキッチン、IHクッキングヒーター、バス1坪以上、温水洗浄便座、シャワー付き洗面台、エアコン、オール電化、省エネ給湯、高気密高断熱住宅、上水道、下水道、電気、ウォークインクローゼット、全居室収納あり、シューズインクローゼット
取引態様 仲介
備考 超高性能
・二重断熱で家の中の温度を逃がさない!
・24時間熱交換換気扇で換気時のロスを削減!
・エアコン1台で1年中快適だから光熱費が抑えられる!
取り扱い会社

有限会社 ブライトサクセス

新潟県長岡市新町1-1-2

情報登録日 2026/02/04 次回更新予定日 2026/02/19
取引条件有効期限 2026/07/31
  • 幸栄2丁目新築一戸建
    有限会社 ブライトサクセス
  • この物件を問い合わせる/無料
  • TEL: 0258-35-2220 0258-35-2220

この物件の地図・周辺情報・行政情報

この物件の周辺情報・行政情報を詳しく見る
【周辺情報】
物件の近くにあるコンビニや銀行・学校など、アイコン付のマップで詳しく表示できます!
【行政情報】
水道料や下水道料・ガス料金など、暮らしに関係のある情報を表示しています。
新潟物見山郵便局(郵便局)までm
セブン-イレブン 新潟浜谷町店(コンビニ)まで500m
清水フードセンター 河渡店(スーパー)まで330m
新潟信用金庫 物見山支店(銀行)まで570m
新潟物見山郵便局(郵便局)まで690m

※カメラのアイコンがある場合は、マウスをポイントするとその施設の画像がご覧いただけます。


担当取扱い店舗情報

取扱い店舗画像
有限会社 ブライトサクセス
TEL: 0258-35-2220
所在地: 新潟県長岡市新町1-1-2
交通: 長岡駅
営業時間: 午前10時00分~午後7時 /定休日:オンラインサービス:午前9時30分~午後9時
免許番号: 新潟県知事(1)第5629号
所属団体名: 公社 新潟県宅地建物取引協会 新潟支部
取引態様: 仲介
ホームページ: https://bright-success.net/