新潟県上越市西城町1丁目6番3号 投資物件・その他 7,500,000円の物件情報

高田城址公園近くで元店舗の貸家物件!

物件名/所在地 詳細 価格
表面利回り
西城町 貸家
新潟県上越市西城町1丁目6番3号
  • 土地面積
    :148.98㎡ /45.06坪
  • 建ぺい率
    :60%
  • 容積率
    :200%
7,500,000
9%
(満室想定時)
  • 西城町 貸家
    上越宅地販売株式会社
  • この物件を問い合わせる/無料
  • TEL: 025-522-3838 025-522-3838

物件画像

外観
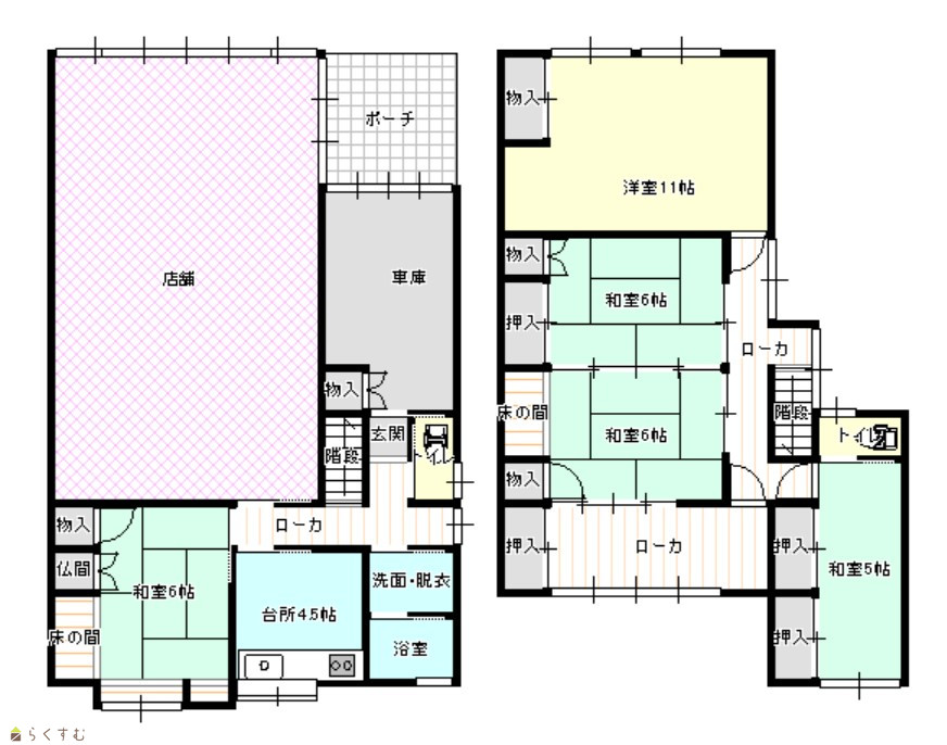
間取り
物件画像
※画像クリックで拡大表示
外観
物件画像
※画像クリックで拡大表示
間取り
詳細画像
物件画像
内装
物件画像
内装
物件画像
洗面所
物件画像
バスルーム
物件画像
キッチン
物件画像
トイレ
物件画像
内装
物件画像
前面道路
物件画像
印刷用地図


物件概要

現在賃貸中です。
物件コード 00308-200314
物件名 西城町 貸家
交通 駅:妙高はねうまライン 高田駅から徒歩15分、バス:西城町一丁目から徒歩1分
物件所在地 新潟県上越市西城町1丁目6番3号
物件種別 投資物件・その他
物件区分 その他
構造 木造 階建 地上2階建
建ぺい率/容積率 60%/200%
建物面積 1階 84.59㎡/ 2階 65.01㎡/ 計 149.6㎡ /45.25坪
土地面積 148.98㎡ /45.06坪
築年月 1973年9月(築52年)
入居(引き渡し)時期 随時入居(引き渡し)可
用途地域 第2種中高層住居専用地域 地目 宅地
都市計画 市街化区域 学校区 大町小学校(773m)・城東中学校(625m)
形状 - 道路 北側15m
私道 - その他の制限 -
  • 西城町 貸家
    上越宅地販売株式会社
  • この物件を問い合わせる/無料
  • TEL: 025-522-3838 025-522-3838

物件詳細情報

所在階/階数 - 号室 -
販売価格 7,500,000円 方位 -
表面利回り(満室想定時) 9% 満室想定年収 540,000円 (想定月収: 45,000円 )
現行利回り 7.2% 現行年間年収 540,000円
住戸数 1
間取り -
専有面積 149.6㎡ /45.25坪 ~ 149.6㎡ /45.25坪 バルコニー面積 -
その他面積 - 駐車場 敷地内1台
管理費 - 修繕積立金 -
現況 賃貸中
仲介手数料 330,000円
利用制限 -
設備 公営水道、都市ガス、下水道
取引態様 一般
備考 -
取り扱い会社

上越宅地販売株式会社

新潟県上越市南高田町1-2アサノビル1階

情報登録日 2026/03/07 次回更新予定日 2026/05/21
取引条件有効期限 2026/05/31
  • 西城町 貸家
    上越宅地販売株式会社
  • この物件を問い合わせる/無料
  • TEL: 025-522-3838 025-522-3838

この物件の地図・周辺情報・行政情報

この物件の周辺情報・行政情報を詳しく見る
【周辺情報】
物件の近くにあるコンビニや銀行・学校など、アイコン付のマップで詳しく表示できます!
【行政情報】
水道料や下水道料・ガス料金など、暮らしに関係のある情報を表示しています。
セブン-イレブン 上越北城店(コンビニ)まで670m
ナルス 北城店(スーパー)まで430m
クスリのアオキ 北城店(ドラッグストア)まで790m

※カメラのアイコンがある場合は、マウスをポイントするとその施設の画像がご覧いただけます。


担当取扱い店舗情報

取扱い店舗画像
上越宅地販売株式会社
TEL: 025-522-3838
所在地: 新潟県上越市南高田町1-2アサノビル1階
交通: 妙高はねうまライン 南高田駅 徒歩1分
営業時間: 9:00~18:30/定休日:毎週水曜日・GW(5/2~5/6)・夏季・・年末年始
免許番号: 新潟県知事(9)第3372号
所属団体名: 公社 新潟県宅地建物取引協会 上越支部
取引態様: 一般
ホームページ: http://takuhan.com/