新潟県上越市木島769-1 中古一戸建て 6DK 6,800,000円の物件情報

広い土地と広いお家でファミリー向けです!

物件名/所在地 詳細 価格
木島 売家
新潟県上越市木島769-1
  • 土地面積
    :1,654.88㎡ /500.6坪
  • 建物面積
    :182.34㎡ /55.15坪
  • 間取り
    :6DK
  • 築年月
    :1978年7月
6,800,000
  • 木島 売家
    上越宅地販売株式会社
  • この物件を問い合わせる/無料
  • TEL: 025-522-3838 025-522-3838

物件画像

外観
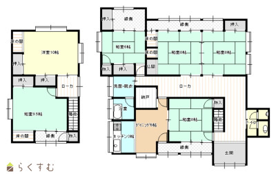
間取り
物件画像
※画像クリックで拡大表示
外観
物件画像
※画像クリックで拡大表示
間取図
詳細画像
物件画像
居間
物件画像
キッチン
物件画像
玄関
物件画像
浴室
物件画像
物置
物件画像
トイレ
物件画像
地図画像


物件概要

物件コード 00308-200273
物件名 木島 売家
交通 駅:妙高はねうまライン 上越妙高駅から徒歩46分、バス:上新田入口から徒歩17分
物件所在地 新潟県上越市木島769-1
物件種別 中古一戸建て
構造 木造 階建 地上2階建
建ぺい率/容積率 70%/200%
建物面積 1階 132.76㎡/ 2階 49.58㎡/ 計 182.34㎡ /55.15坪
土地面積 1,654.88㎡ /500.6坪
築年月 1978年7月(築47年)
入居(引き渡し)時期 相談
用途地域 無指定 地目 宅地
都市計画 市街化調整区域 学校区 和田小学校(1,412m)・城西中学校(4,268m)
形状 - 道路 -
私道 - その他の制限 -
  • 木島 売家
    上越宅地販売株式会社
  • この物件を問い合わせる/無料
  • TEL: 025-522-3838 025-522-3838

物件詳細情報

所在階/階数 - 号室 -
販売価格 6,800,000円 方位 -
間取り 6DK (和室:9.5畳、8畳、8畳、8畳、6畳) (洋室:10)
DK7
専有面積 - バルコニー面積 -
その他面積 - 駐車場 -
管理費 - 修繕積立金 -
現況 指定なし
仲介手数料 330,000円
利用制限 -
設備 駐車3台以上可能、追いだき機能付き、バス1坪以上、上水道、下水道
取引態様 専任
備考 -
取り扱い会社

上越宅地販売株式会社

新潟県上越市南高田町1-2アサノビル1階

情報登録日 2024/11/23 次回更新予定日 2025/11/10
取引条件有効期限 2024/12/31
  • 木島 売家
    上越宅地販売株式会社
  • この物件を問い合わせる/無料
  • TEL: 025-522-3838 025-522-3838

この物件の地図・周辺情報・行政情報

この物件の周辺情報・行政情報を詳しく見る
【周辺情報】
物件の近くにあるコンビニや銀行・学校など、アイコン付のマップで詳しく表示できます!
【行政情報】
水道料や下水道料・ガス料金など、暮らしに関係のある情報を表示しています。

担当取扱い店舗情報

取扱い店舗画像
上越宅地販売株式会社
TEL: 025-522-3838
所在地: 新潟県上越市南高田町1-2アサノビル1階
交通: 妙高はねうまライン 南高田駅 徒歩1分
営業時間: 9:00~18:30/定休日:毎週水曜日・GW・夏季・臨時休業(9/21日曜日)・年末年始
免許番号: 新潟県知事(9)第3372号
所属団体名: 公社 新潟県宅地建物取引協会 上越支部
取引態様: 専任
ホームページ: http://takuhan.com/