新潟県上越市富岡1874-3 中古一戸建て 2LDK 15,000,000円の物件情報

上越IC近くで交通アクセス良好!

物件名/所在地 詳細 価格
富岡 売店舗
新潟県上越市富岡1874-3
  • 土地面積
    :182.57㎡ /55.22坪
  • 建物面積
    :134.61㎡ /40.71坪
  • 間取り
    :2LDK
  • 築年月
    :1992年4月
15,000,000
  • 富岡 売店舗
    上越宅地販売株式会社
  • この物件を問い合わせる/無料
  • TEL: 025-522-3838 025-522-3838

物件画像

外観
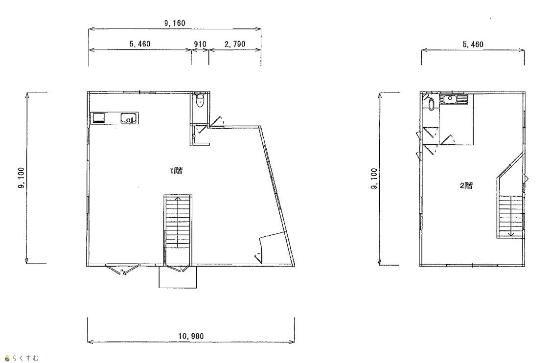
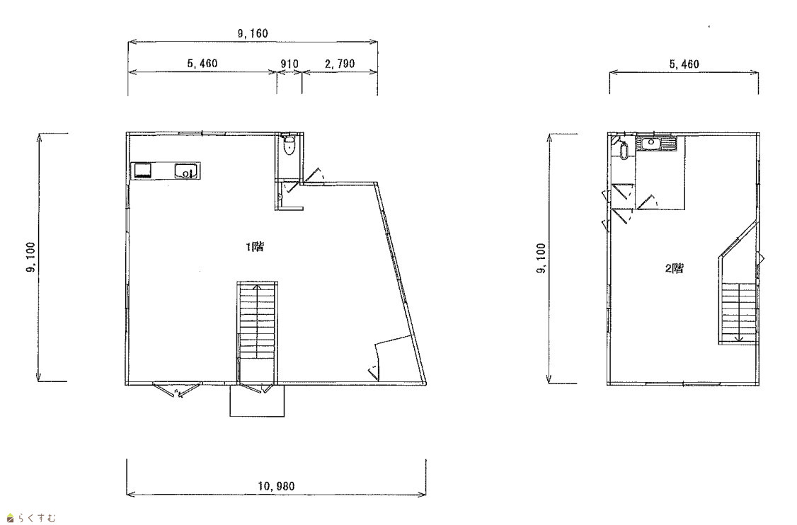
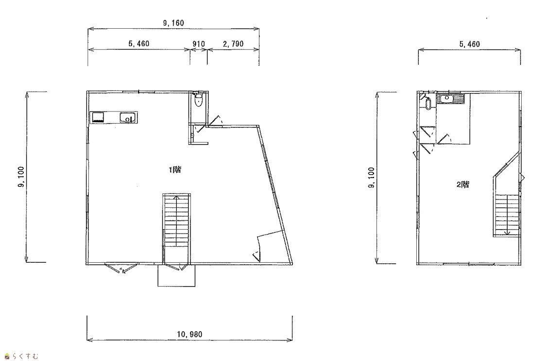
間取り
物件画像
※画像クリックで拡大表示
外観
物件画像
※画像クリックで拡大表示
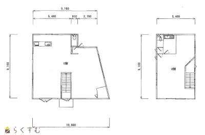
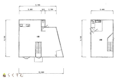
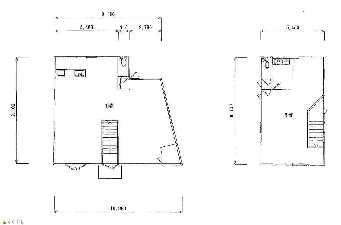
間取図
詳細画像
物件画像
店内
物件画像
店内
物件画像
給湯エリア
物件画像
店内
物件画像
店内
物件画像
トイレ
物件画像
2階事務所
物件画像
駐車場
物件画像
前面道路
物件画像
地図画像


物件概要

物件コード 00308-200245
物件名 富岡 売店舗
交通 駅:妙高はねうまライン 春日山駅から徒歩36分、バス:富岡十字路から徒歩5分
物件所在地 新潟県上越市富岡1874-3
物件種別 中古一戸建て
構造 木造 階建 地上2階建
建ぺい率/容積率 50%/80%
建物面積 1階 84.93㎡/ 2階 49.68㎡/ 計 134.61㎡ /40.71坪
土地面積 182.57㎡ /55.22坪
築年月 1992年4月(築33年)
入居(引き渡し)時期 相談
用途地域 第1種低層住居専用地域 地目 宅地
都市計画 市街化区域 学校区 富岡小学校(657m)・城東中学校(3,838m)
形状 - 道路 -
私道 - その他の制限 -
  • 富岡 売店舗
    上越宅地販売株式会社
  • この物件を問い合わせる/無料
  • TEL: 025-522-3838 025-522-3838

物件詳細情報

所在階/階数 - 号室 -
販売価格 15,000,000円 方位 -
間取り 2LDK
1階が店舗、2階が事務所となっています。
専有面積 - バルコニー面積 -
その他面積 - 駐車場 -
管理費 - 修繕積立金 -
現況 居住中
仲介手数料 561,000円
利用制限 -
設備 角地、日当り良好、駐車3台以上可能
取引態様 一般
備考 -
取り扱い会社

上越宅地販売株式会社

新潟県上越市南高田町1-2アサノビル1階

情報登録日 2023/12/10 次回更新予定日 2025/12/28
取引条件有効期限 2024/03/31
  • 富岡 売店舗
    上越宅地販売株式会社
  • この物件を問い合わせる/無料
  • TEL: 025-522-3838 025-522-3838

この物件の地図・周辺情報・行政情報

この物件の周辺情報・行政情報を詳しく見る
【周辺情報】
物件の近くにあるコンビニや銀行・学校など、アイコン付のマップで詳しく表示できます!
【行政情報】
水道料や下水道料・ガス料金など、暮らしに関係のある情報を表示しています。

担当取扱い店舗情報

取扱い店舗画像
上越宅地販売株式会社
TEL: 025-522-3838
所在地: 新潟県上越市南高田町1-2アサノビル1階
交通: 妙高はねうまライン 南高田駅 徒歩1分
営業時間: 9:00~18:30/定休日:毎週水曜日・GW・夏季・臨時休業(9/21日曜日)・年末年始
免許番号: 新潟県知事(9)第3372号
所属団体名: 公社 新潟県宅地建物取引協会 上越支部
取引態様: 一般
ホームページ: http://takuhan.com/