新潟県柏崎市谷根698 中古一戸建て 7DK 5,000,000円の物件情報

日本らしい風情が感じられる谷根で田舎暮らしをしてみませんか

物件名/所在地 詳細 価格
柏崎市谷根 中古戸建て
新潟県柏崎市谷根698
  • 土地面積
    :756.95㎡ /228.97坪
  • 建物面積
    :149.92㎡ /45.35坪
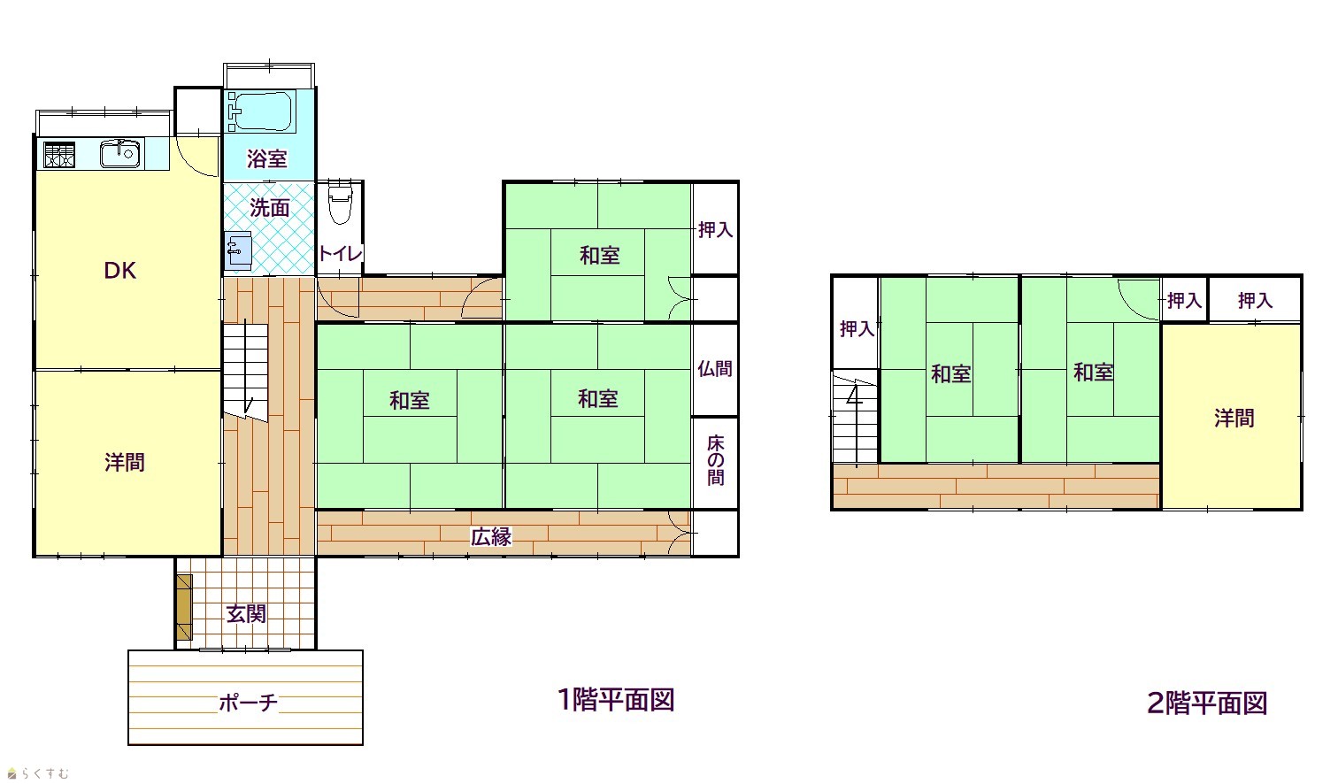
  • 間取り
    :7DK
  • 築年月
    :1981年12月
5,000,000
  • 柏崎市谷根 中古戸建て
    田中不動産株式会社
  • この物件を問い合わせる/無料
  • TEL: 025-512-5001 025-512-5001

物件画像

外観
間取り
物件画像
※画像クリックで拡大表示
外観
物件画像
※画像クリックで拡大表示
間取り
詳細画像
物件画像
室内
物件画像
キッチン
物件画像
和室
物件画像
室内
物件画像
玄関
物件画像
洗面
物件画像
浴室
物件画像
トイレ
物件画像
谷根の景色
物件画像
谷根の景色
物件画像
谷根の景色
物件画像
谷根の景色
物件画像
外観
物件画像
周辺道路
物件画像
地図画像


物件概要

米山登山道谷根コースまで約1200♪谷根川が長閑に流れ、田園風景が広がる別荘としてもおすすめの避暑地です。4月~5月が見頃の花桃や谷根ダムなど、自然あふれるエリアです。
物件コード 00297-200069
物件名 柏崎市谷根 中古戸建て
交通 駅:信越線 青海川駅から徒歩43分
物件所在地 新潟県柏崎市谷根698
物件種別 中古一戸建て
構造 木造 階建 地上2階建
建ぺい率/容積率 -
建物面積 計 149.92㎡ /45.35坪
土地面積 756.95㎡ /228.97坪
築年月 1981年12月(築44年)
入居(引き渡し)時期 相談
用途地域 無指定 地目 宅地
都市計画 都市計画区域外 学校区 鯨波小学校(2,954m)・第三中学校(4,538m)
形状 - 道路 東:公道
私道 - その他の制限 -
  • 柏崎市谷根 中古戸建て
    田中不動産株式会社
  • この物件を問い合わせる/無料
  • TEL: 025-512-5001 025-512-5001

物件詳細情報

所在階/階数 - 号室 -
販売価格 5,000,000円 方位 指定なし
間取り 7DK
専有面積 - バルコニー面積 -
その他面積 - 駐車場 -
管理費 - 修繕積立金 -
現況 空家
仲介手数料 330,000円
利用制限 -
設備 閑静な住宅街、システムキッチン、LPG、上水道、下水道、別荘、田舎暮らし
取引態様 専属専任
備考 ※敷地内に未登記建物(物置約77㎡)有
※給湯器故障中の為、使用不可
※現況でのお引渡しとなります。
取り扱い会社

田中不動産株式会社

新潟県上越市土橋1154-1ワグリオフィスA

情報登録日 2026/02/26 次回更新予定日 2026/05/21
取引条件有効期限 2026/05/31
  • 柏崎市谷根 中古戸建て
    田中不動産株式会社
  • この物件を問い合わせる/無料
  • TEL: 025-512-5001 025-512-5001

この物件の地図・周辺情報・行政情報

この物件の周辺情報・行政情報を詳しく見る
【周辺情報】
物件の近くにあるコンビニや銀行・学校など、アイコン付のマップで詳しく表示できます!
【行政情報】
水道料や下水道料・ガス料金など、暮らしに関係のある情報を表示しています。
柏崎市 谷根診療所(病院)まで220m
柏崎上米山郵便局(郵便局)まで250m

※カメラのアイコンがある場合は、マウスをポイントするとその施設の画像がご覧いただけます。


担当取扱い店舗情報

取扱い店舗画像
田中不動産株式会社
TEL: 025-512-5001
所在地: 新潟県上越市土橋1154-1ワグリオフィスA
交通: 妙高はねうまライン 高田駅
営業時間: 9:00~18:00/定休日:土・日・祝
免許番号: 大臣免許(2)第9635号
所属団体名: 公社 新潟県宅地建物取引協会 上越支部
取引態様: 専属専任
ホームページ: http://www.tanakafudousan-inc.co.jp