新潟県上越市仲町6丁目4-24 中古一戸建て 8DK 1,000,000円の物件情報

☆仲町6丁目通りの町屋物件です☆駐車場付き!

物件名/所在地 詳細 価格
仲町6丁目
新潟県上越市仲町6丁目4-24
  • 土地面積
    :267.54㎡ /80.93坪
  • 建物面積
    :199.42㎡ /60.32坪
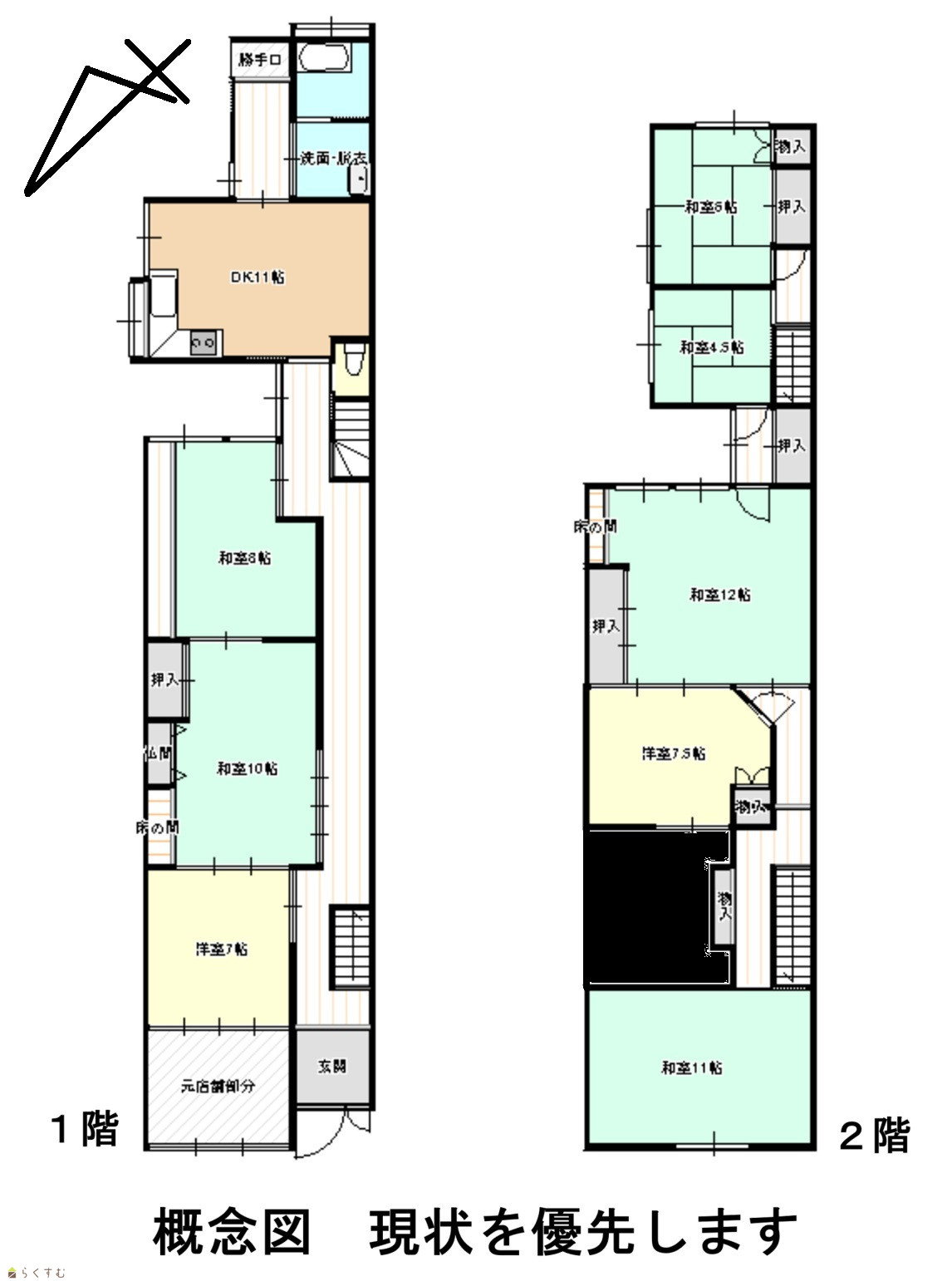
  • 間取り
    :8DK
  • 築年月
    :1868年5月
1,000,000
  • 仲町6丁目
    有限会社田村家具店
  • この物件を問い合わせる/無料
  • TEL: 025-523-2438 025-523-2438

物件画像

外観
間取り
物件画像
※画像クリックで拡大表示
現地外観
物件画像
※画像クリックで拡大表示
間取り概念図
詳細画像
物件画像
現地外観
物件画像
1階元店舗部分
物件画像
1階洋室
物件画像
1階和室①
物件画像
1階和室②
物件画像
キッチンダイニング
物件画像
浴室
物件画像
洗面・脱衣所
物件画像
トイレ
物件画像
2階洋室
物件画像
2階和室①
物件画像
2階和室②
物件画像
2階和室③
物件画像
2階和室④
物件画像
敷地裏駐車場
物件画像
前面道路を含む現地
物件画像
地図画像


物件概要

物件コード 00277-200406
物件名 仲町6丁目
交通 駅:妙高はねうまライン 高田駅から徒歩9分
物件所在地 新潟県上越市仲町6丁目4-24
物件種別 中古一戸建て
構造 木造 階建 地上2階建
建ぺい率/容積率 80%/500%
建物面積 計 199.42㎡ /60.32坪
土地面積 267.54㎡ /80.93坪
築年月 1868年5月(築157年)
入居(引き渡し)時期 相談
用途地域 商業地域 地目 宅地  (現状:宅地)
都市計画 市街化区域 学校区 大町小学校(821m)・城北中学校(686m)
形状 間口 5.1m 道路 南東側約7.9m
私道 - その他の制限 -
  • 仲町6丁目
    有限会社田村家具店
  • この物件を問い合わせる/無料
  • TEL: 025-523-2438 025-523-2438

物件詳細情報

所在階/階数 - 号室 -
販売価格 1,000,000円 方位 -
間取り 8DK
専有面積 - バルコニー面積 -
その他面積 - 駐車場 -
管理費 - 修繕積立金 -
現況 空家
仲介手数料 なし
固定資産税 33,500円
年額の金額です
利用制限 -
設備 駐車2台可能、エアコンあり、都市ガス、上水道、下水道
取引態様 一般
備考 ・裏に駐車場がある町屋物件です!
・前面道路が6m以上あり消雪パイプも完備されています☆
・昭和40年頃に建物の8割くらいを増改築されております!
・土地、建物、設備に関しては現状渡しです。
・残置物は売主の必要な物以外は現状渡しです。

※本体代金に別途諸費用が掛かります。
取り扱い会社

有限会社田村家具店

新潟県上越市稲田4-5-21

情報登録日 2025/06/20 次回更新予定日 2025/11/09
取引条件有効期限 2035/12/31
  • 仲町6丁目
    有限会社田村家具店
  • この物件を問い合わせる/無料
  • TEL: 025-523-2438 025-523-2438

この物件の地図・周辺情報・行政情報

この物件の周辺情報・行政情報を詳しく見る
【周辺情報】
物件の近くにあるコンビニや銀行・学校など、アイコン付のマップで詳しく表示できます!
【行政情報】
水道料や下水道料・ガス料金など、暮らしに関係のある情報を表示しています。

担当取扱い店舗情報

取扱い店舗画像
有限会社田村家具店
TEL: 025-523-2438
所在地: 新潟県上越市稲田4-5-21
交通: 高田駅
営業時間: 午前9:00~午後18:00/定休日:水曜日 第1、第3日曜日
免許番号: 新潟県知事(10)第2792号
所属団体名: 公社 新潟県宅地建物取引協会 上越支部
取引態様: 一般