新潟県妙高市高柳1丁目26-2 新築一戸建て 2LDK 34,200,000円の物件情報

妙高市高柳・平屋建売1号棟

物件名/所在地 詳細 価格
妙高市高柳・平屋建売1号棟
新潟県妙高市高柳1丁目26-2
  • 土地面積
    :264.09㎡ /79.88坪
  • 建物面積
    :81.9㎡ /24.77坪
  • 間取り
    :2LDK
  • 築年月
    :2025年8月
34,200,000
  • 妙高市高柳・平屋建売1号棟
    株式会社山崎建設
  • この物件を問い合わせる/無料
  • TEL: 0255-72-3129 0255-72-3129

物件画像

外観
間取り
物件画像
※画像クリックで拡大表示
外観
物件画像
※画像クリックで拡大表示
間取り
詳細画像
物件画像
内装
物件画像
印刷用地図


物件概要

慎ましい中に上質な暮らしを叶える「つきつめたフツウ」 ~妙高市高柳の平屋~
物件コード 00259-200073
物件名 妙高市高柳・平屋建売1号棟
交通 駅:妙高はねうまライン 新井駅から徒歩11分
物件所在地 新潟県妙高市高柳1丁目26-2
物件種別 新築一戸建て
構造 テクノストラクチャー工法 階建 地上1階建
建ぺい率/容積率 60%/200%
建物面積 1階 81.9㎡/ 計 81.9㎡ /24.77坪
土地面積 264.09㎡ /79.88坪
築年月 2025年8月(築9ヶ月)
入居(引き渡し)時期 相談
用途地域 第1種中高層住居専用地域 地目 宅地
都市計画 - 学校区 新井中央小学校(410m)・新井中学校(2,138m)
形状 - 道路 -
私道 - その他の制限 -
  • 妙高市高柳・平屋建売1号棟
    株式会社山崎建設
  • この物件を問い合わせる/無料
  • TEL: 0255-72-3129 0255-72-3129

物件詳細情報

所在階/階数 - 号室 -
販売価格 34,200,000円 方位
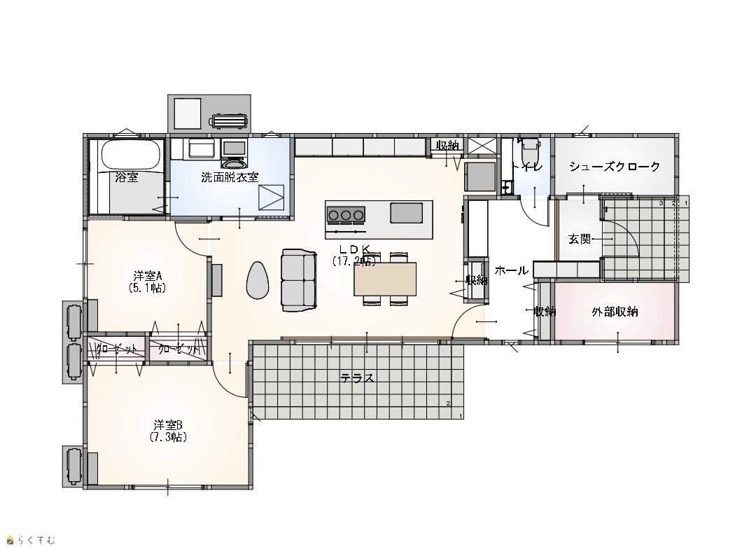
間取り 2LDK (洋室:5.0、7.2)
LDK16.9
専有面積 - バルコニー面積 -
その他面積 - 駐車場 -
管理費 - 修繕積立金 -
現況 -
仲介手数料 なし
利用制限 -
設備 整形地、前面道路6m以上、閑静な住宅街、スーパー近く、長期優良住宅、設計住宅性能評価付き、耐震構造、LDK15畳以上、全室フローリング、駐車場2台以上、南向き、庭あり、TVインターホン、複層ガラス、システムキッチン、カウンターキッチン、IHクッキングヒーター、浄水器、食器洗浄乾燥機、3口コンロ、バス1坪以上、温水洗浄便座、エアコン、24時間換気システム、全室エアコン、オール電化、省エネ給湯、高気密高断熱住宅、ウッドデッキ・テラス、上水道、下水道、電気、全居室収納あり、シューズインクローゼット、シューズBOX、照明器具付き
取引態様 売主
備考 妙高市に『慎ましい中にもこだわりのある丁寧で上質な暮らしを叶える』そんな平屋が完成しました。閑静な住宅街でも主要道路へのアクセスも良く、生活しやすい地域になります。
生活感が押し出ないよう、ミニマムな中にも家事動線に配慮した暮らしやすさにこだわった間取りで、外観内観は共に暮らす方の遊び心に順応するようシンプルに。生活やインテリアを邪魔しないそんなデザインになっています。
スキー場や上越妙高駅へのアクセスも良いので、セカンドハウスとしてもお使いいただけます。
こちらの平屋はメーターモジュールでの設計。2LDKでも十分な空間の広さをぜひご体感ください。

建築確認済証番号第R06-2394号
取り扱い会社

株式会社山崎建設

新潟県妙高市東陽町2-20

情報登録日 2025/08/07 次回更新予定日 2026/05/21
取引条件有効期限 2025/10/30
  • 妙高市高柳・平屋建売1号棟
    株式会社山崎建設
  • この物件を問い合わせる/無料
  • TEL: 0255-72-3129 0255-72-3129

この物件の地図・周辺情報・行政情報

この物件の周辺情報・行政情報を詳しく見る
【周辺情報】
物件の近くにあるコンビニや銀行・学校など、アイコン付のマップで詳しく表示できます!
【行政情報】
水道料や下水道料・ガス料金など、暮らしに関係のある情報を表示しています。
ローソン 新井高柳店(コンビニ)まで210m
セブン-イレブン 妙高関川町店(コンビニ)まで260m
クスリのアオキ 新井店(ドラッグストア)まで430m
自然堂つるや薬局 新井店(ドラッグストア)まで880m

※カメラのアイコンがある場合は、マウスをポイントするとその施設の画像がご覧いただけます。


担当取扱い店舗情報

取扱い店舗画像
株式会社山崎建設
TEL: 0255-72-3129
所在地: 新潟県妙高市東陽町2-20
交通: えちごトキめき鉄道 新井駅から徒歩25分
営業時間: 8:00〜17:00/定休日:土日祝日
免許番号: 新潟県知事(8)第3467号
所属団体名: 公益社団法人新潟県宅地建物取引協会 上越支部
取引態様: 売主
ホームページ: https://www.yamazaki-k.co.jp/concept/