新潟県上越市北城町4丁目8-20 中古一戸建て 6DK 12,800,000円の物件情報

物件名/所在地 詳細 価格
北城町売家
新潟県上越市北城町4丁目8-20
  • 土地面積
    :199㎡ /60.19坪
  • 建物面積
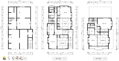
    :255.15㎡ /77.18坪
  • 間取り
    :6DK
  • 築年月
    :1993年12月
12,800,000
  • 北城町売家
    株式会社山崎建設
  • この物件を問い合わせる/無料
  • TEL: 0255-72-3129 0255-72-3129

物件画像

外観
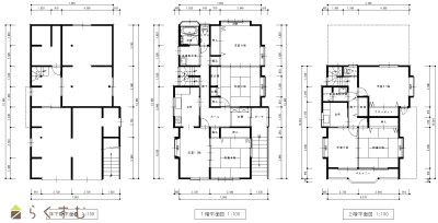
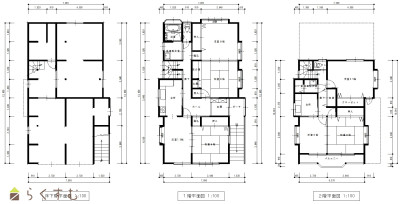
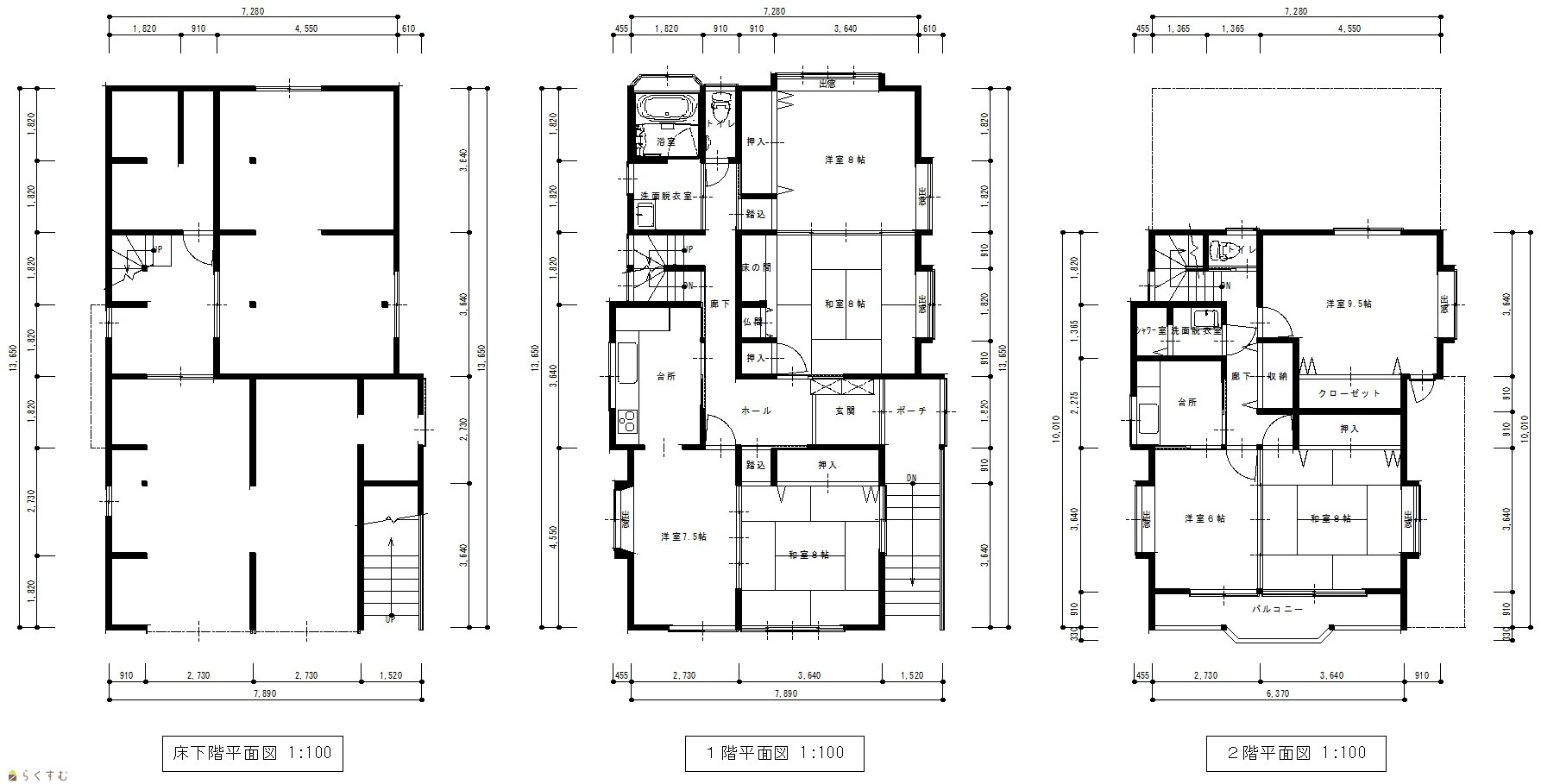
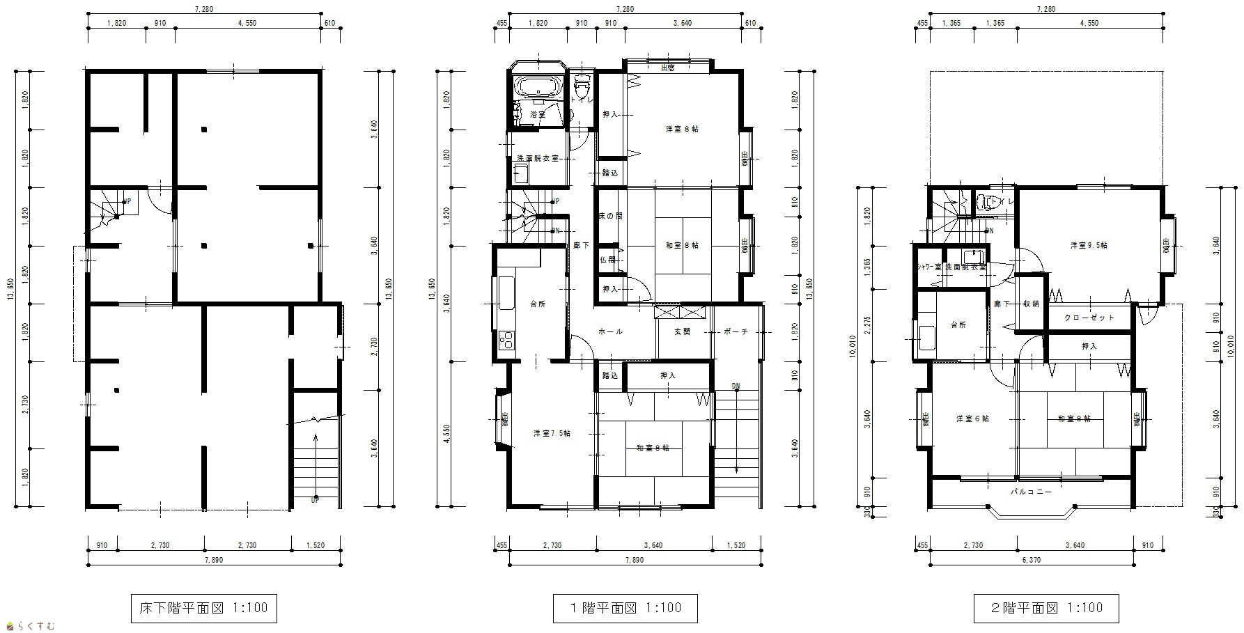
間取り
物件画像
※画像クリックで拡大表示
外観
物件画像
※画像クリックで拡大表示
間取
詳細画像
物件画像
玄関
物件画像
1階ホール
物件画像
ダイニング
物件画像
茶の間
物件画像
キッチン
物件画像
洗面脱衣室
物件画像
バスルーム
物件画像
1階トイレ
物件画像
座敷
物件画像
階段
物件画像
2階トイレ
物件画像
洋室
物件画像
2階洗面・シャワールーム
物件画像
2階ミニキッチン
物件画像
バルコニー
物件画像
和室
物件画像
洋室
物件画像
高床部分
物件画像
地図画像


物件概要

物件コード 00259-200052
物件名 北城町売家
交通 駅:妙高はねうまライン 高田駅から徒歩25分、バス:北城町から徒歩3分
物件所在地 新潟県上越市北城町4丁目8-20
物件種別 中古一戸建て
構造 木造鉄筋コン 階建 地上3階建
建ぺい率/容積率 50%/80%
建物面積 1階 97.69㎡/ 2階 94.88㎡/ 3階 62.58㎡/ 計 255.15㎡ /77.18坪
土地面積 199㎡ /60.19坪
築年月 1993年12月(築32年)
入居(引き渡し)時期 随時入居(引き渡し)可
用途地域 第1種住居地域 地目 宅地  (現状:宅地)
都市計画 市街化区域 学校区 大町小学校(1,283m)・城北中学校(798m)
形状 - 道路 南側
私道 - その他の制限 -
  • 北城町売家
    株式会社山崎建設
  • この物件を問い合わせる/無料
  • TEL: 0255-72-3129 0255-72-3129

物件詳細情報

所在階/階数 - 号室 -
販売価格 12,800,000円 方位
間取り 6DK (和室:8畳、8畳、8畳) (洋室:9.5、8、6)
DK7.5
専有面積 - バルコニー面積 -
その他面積 - 駐車場 -
管理費 - 修繕積立金 -
現況 空家
仲介手数料 なし
利用制限 -
設備 南向き、都市ガス、上水道、下水道
取引態様 売主
備考 -
取り扱い会社

株式会社山崎建設

新潟県妙高市東陽町2-20

情報登録日 2024/06/04 次回更新予定日 2026/05/21
取引条件有効期限 2024/09/04
  • 北城町売家
    株式会社山崎建設
  • この物件を問い合わせる/無料
  • TEL: 0255-72-3129 0255-72-3129

この物件の地図・周辺情報・行政情報

この物件の周辺情報・行政情報を詳しく見る
【周辺情報】
物件の近くにあるコンビニや銀行・学校など、アイコン付のマップで詳しく表示できます!
【行政情報】
水道料や下水道料・ガス料金など、暮らしに関係のある情報を表示しています。
セブン-イレブン 上越北城店(コンビニ)まで660m
ナルス 北城店(スーパー)まで650m
クスリのアオキ 北城店(ドラッグストア)まで230m
内科さとう医院(病院)まで50m
セブン銀行ATM(銀行)まで630m
高土町郵便局(郵便局)まで640m

※カメラのアイコンがある場合は、マウスをポイントするとその施設の画像がご覧いただけます。


担当取扱い店舗情報

取扱い店舗画像
株式会社山崎建設
TEL: 0255-72-3129
所在地: 新潟県妙高市東陽町2-20
交通: えちごトキめき鉄道 新井駅から徒歩25分
営業時間: 8:00〜17:00/定休日:土日祝日
免許番号: 新潟県知事(8)第3467号
所属団体名: 公益社団法人新潟県宅地建物取引協会 上越支部
取引態様: 売主
ホームページ: https://www.yamazaki-k.co.jp/concept/