新潟県柏崎市大字下田尻1758番地 中古一戸建て 8LDK 3,500,000円の物件情報

インター近くで、部屋数豊富、広い敷地!!

物件名/所在地 詳細 価格
柏崎市 下田尻 売住宅
新潟県柏崎市大字下田尻1758番地
  • 土地面積
    :1,023.86㎡ /309.71坪
  • 建物面積
    :215.81㎡ /65.28坪
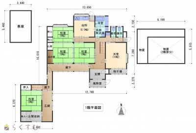
  • 間取り
    :8LDK
  • 築年月
    :1971年6月
3,500,000
  • 柏崎市 下田尻 売住宅
    株式会社 タカノ建築
  • この物件を問い合わせる/無料
  • TEL: 0257-35-6025 0257-35-6025

物件画像

外観
間取り
物件画像
※画像クリックで拡大表示
外観
物件画像
※画像クリックで拡大表示
間取り
詳細画像
物件画像
追加
物件画像
追加
物件画像
追加
物件画像
追加
物件画像
追加
物件画像
作業所
物件画像
車庫
物件画像
追加
物件画像
追加
物件画像
追加
物件画像
追加
物件画像
追加
物件画像
追加
360度画像
洋室
※下のリンクをクリックすると、上の画像が切り替わります。
洋室     

インターネットエクスプローラーでは360°画像は閲覧できません。それ以外のブラウザでご覧下さい。

360度画像を詳しく見る


物件概要

物件コード 00251-200003
物件名 柏崎市 下田尻 売住宅
交通 駅:信越線 茨目駅から徒歩17分、バス:下田尻西から徒歩2分
物件所在地 新潟県柏崎市大字下田尻1758番地
物件種別 中古一戸建て
構造 木造 階建 地上2階建
建ぺい率/容積率 70%/200%
建物面積 1階 155.63㎡/ 2階 60.18㎡/ 計 215.81㎡ /65.28坪
土地面積 1,023.86㎡ /309.71坪
築年月 1971年6月(築54年)
入居(引き渡し)時期 相談
用途地域 無指定 地目 宅地
都市計画 非線引き都市計画区域 学校区 田尻小学校(1,181m)・東中学校(693m)
形状 - 道路 市道柏崎9-62号線 東側 幅員3.4m 他西側道路
私道 - その他の制限 要セットバック
  • 柏崎市 下田尻 売住宅
    株式会社 タカノ建築
  • この物件を問い合わせる/無料
  • TEL: 0257-35-6025 0257-35-6025

物件詳細情報

所在階/階数 - 号室 -
販売価格 3,500,000円 方位 指定なし
間取り 8LDK (和室:10畳、8畳、8畳、6畳、8畳、6畳、7畳) (洋室:7、4)
車庫(19.83㎡)、作業所(77.68㎡)
専有面積 - バルコニー面積 -
その他面積 - 駐車場 -
管理費 - 修繕積立金 -
現況 空家
仲介手数料 330,000円
利用制限 -
設備 閑静な住宅街、駐車3台以上可能、南向き、追いだき機能付き、バス1坪以上、都市ガス、上水道、下水道、2世帯向き
取引態様 一般
備考 現況有姿での売買となります。
間取りと現況に相違がある場合、現況を優先します。
売主契約不適合責任免責物件となります。
取り扱い会社

株式会社 タカノ建築

新潟県柏崎市加納2776-1

情報登録日 2026/01/06 次回更新予定日 2026/05/21
取引条件有効期限 2024/12/31
  • 柏崎市 下田尻 売住宅
    株式会社 タカノ建築
  • この物件を問い合わせる/無料
  • TEL: 0257-35-6025 0257-35-6025

この物件の地図・周辺情報・行政情報

この物件の周辺情報・行政情報を詳しく見る
【周辺情報】
物件の近くにあるコンビニや銀行・学校など、アイコン付のマップで詳しく表示できます!
【行政情報】
水道料や下水道料・ガス料金など、暮らしに関係のある情報を表示しています。

担当取扱い店舗情報

取扱い店舗画像
株式会社 タカノ建築
TEL: 0257-35-6025
所在地: 新潟県柏崎市加納2776-1
交通:
営業時間: 8:00~18:30/定休日:日曜日・祝日
免許番号: 新潟県知事(2)第5462号
所属団体名: 公社 新潟県宅地建物取引協会 
取引態様: 一般
ホームページ: https://www.takano-ken.jp/