新潟県上越市寺町3丁目6-38 中古一戸建て 5DK 1,000,000円の物件情報

高田駅より徒歩4分! 5DKの戸建です! 土地は借地。

物件名/所在地 詳細 価格
寺町3丁目 中古戸建
新潟県上越市寺町3丁目6-38
  • 土地面積
    :344.34㎡ /104.16坪
  • 建物面積
    :120.65㎡ /36.49坪
  • 間取り
    :5DK
  • 築年月
    :1930年4月
1,000,000
  • 寺町3丁目 中古戸建
    越乃エステート株式会社
  • この物件を問い合わせる/無料
  • TEL: 025-520-6623 025-520-6623

物件画像

外観
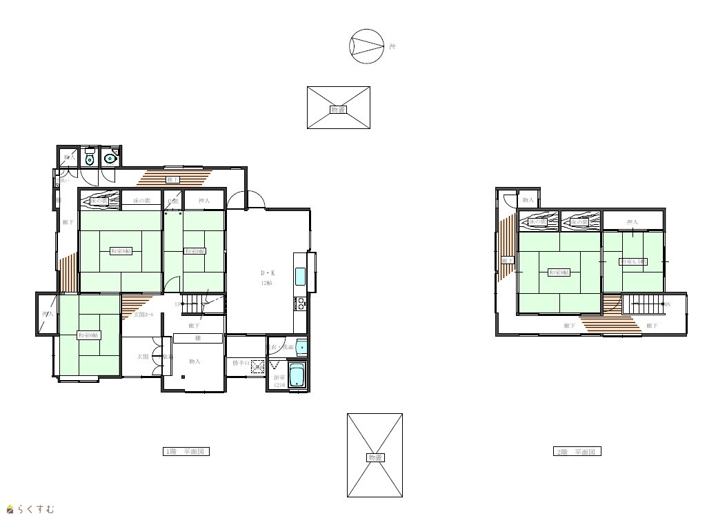
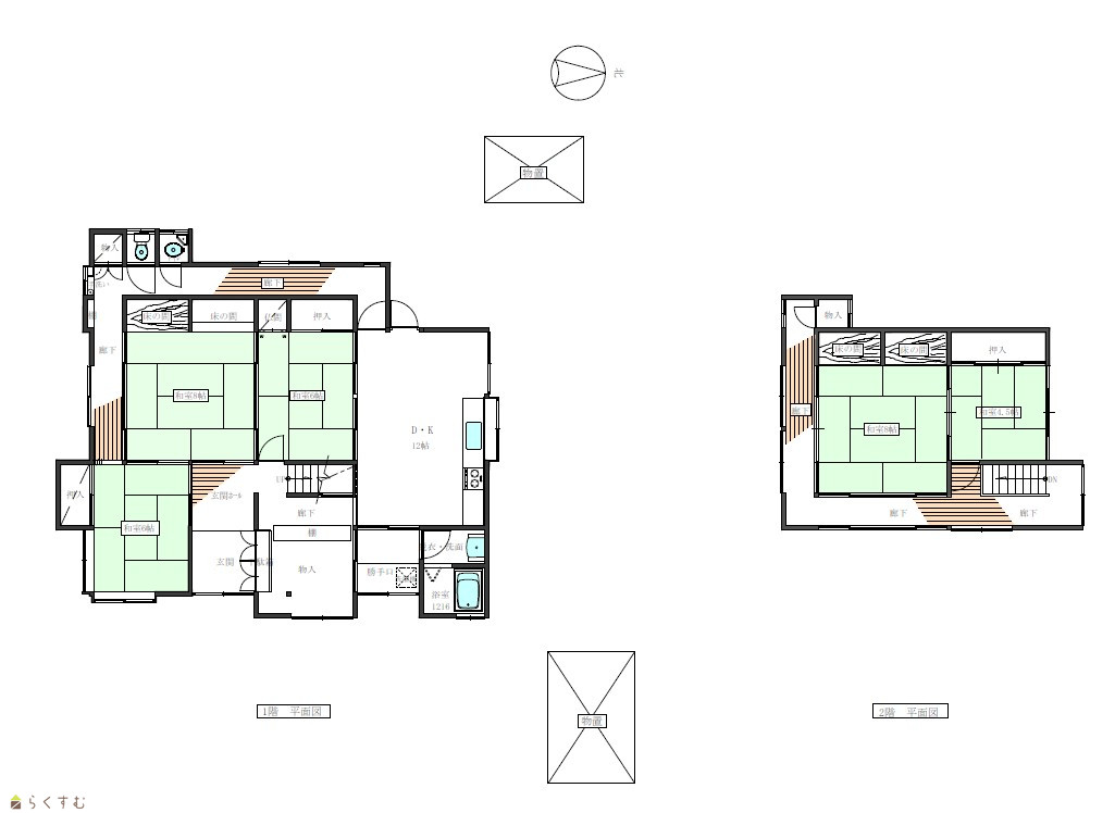
間取り
物件画像
※画像クリックで拡大表示
外観
物件画像
※画像クリックで拡大表示
間取り
詳細画像
物件画像
外観
物件画像
南側外観
物件画像
前面道路
物件画像
和室
物件画像
和室
物件画像
バスルーム
物件画像
洗面所
物件画像
トイレ
物件画像
キッチン
物件画像
2F和室8帖
物件画像
2F 廊下&階段
物件画像
玄関
物件画像
印刷用地図


物件概要

浴室及び玄関・居間6帖もリフォーム済み。
物件コード 00250-200076
物件名 寺町3丁目 中古戸建
交通 駅:妙高はねうまライン 高田駅から徒歩4分、バス:高田駅前から徒歩4分
物件所在地 新潟県上越市寺町3丁目6-38
物件種別 中古一戸建て
構造 木造 階建 地上2階建
建ぺい率/容積率 60%/200%
建物面積 1階 80.99㎡/ 2階 39.66㎡/ 計 120.65㎡ /36.49坪
土地面積 344.34㎡ /104.16坪
築年月 1930年4月(築95年)
入居(引き渡し)時期 随時入居(引き渡し)可
用途地域 第1種中高層住居専用地域 地目 宅地  (現状:宅地)
都市計画 市街化区域 学校区 大町小学校(637m)・城北中学校(1,135m)
形状 間口 16.6m × 奥行 20.7m 道路 上越市道 幅員7.5m(歩道2.1m含む) 消雪パイプ有り
私道 - その他の制限 準防火地域
  • 寺町3丁目 中古戸建
    越乃エステート株式会社
  • この物件を問い合わせる/無料
  • TEL: 025-520-6623 025-520-6623

物件詳細情報

所在階/階数 - 号室 -
販売価格 1,000,000円 方位
間取り 5DK (和室:8畳、6畳、6畳、8畳、4.5畳)
DK12帖
物置2棟有(未登記)
専有面積 - バルコニー面積 -
その他面積 - 駐車場 -
管理費 - 修繕積立金 -
現況 空家
仲介手数料 330,000円
建物の固定資産税(年間) 4,621円
利用制限 -
設備 日当り良好、駐車2台可能、南向き、ガスコンロ設置可能、追いだき機能付き、エアコンあり、都市ガス、上水道、床下収納、内装リフォーム済み
取引態様 専任
備考 ・土地は旧法借地権(期間:30年) 地代(月額)17,360円。
・トイレは簡易水洗(年4回汲取り 費用約計40,000円/年)。
・玄関前に消雪用ポンプ有り。
取り扱い会社

越乃エステート株式会社

新潟県上越市春日野1丁目7番4号オフィスYAMADA-B号

情報登録日 2025/12/08 次回更新予定日 2026/01/03
取引条件有効期限 2026/03/09
  • 寺町3丁目 中古戸建
    越乃エステート株式会社
  • この物件を問い合わせる/無料
  • TEL: 025-520-6623 025-520-6623

この物件の地図・周辺情報・行政情報

この物件の周辺情報・行政情報を詳しく見る
【周辺情報】
物件の近くにあるコンビニや銀行・学校など、アイコン付のマップで詳しく表示できます!
【行政情報】
水道料や下水道料・ガス料金など、暮らしに関係のある情報を表示しています。
ローソン 上越高田駅前店(コンビニ)まで490m
イチコ 幸店(スーパー)まで850m
(医)知命堂病院(病院)まで680m
高田駅前郵便局(郵便局)まで400m

※カメラのアイコンがある場合は、マウスをポイントするとその施設の画像がご覧いただけます。


担当取扱い店舗情報

取扱い店舗画像
越乃エステート株式会社
TEL: 025-520-6623
所在地: 新潟県上越市春日野1丁目7番4号オフィスYAMADA-B号
交通: 春日山駅より徒歩8分
営業時間: 9:00~17:00/定休日:水・日
免許番号: 新潟県知事(1)第5592号
所属団体名: 公益社団法人 全日本不動産協会 新潟県本部
取引態様: 専任
ホームページ: https://koshino-e.com