新潟県上越市三和区川浦496 中古一戸建て 9DK 16,800,000円の物件情報

ご商談中!

物件名/所在地 詳細 価格
三和区川浦 戸建 1997年築
新潟県上越市三和区川浦496
  • 土地面積
    :578.51㎡ /174.99坪
  • 建物面積
    :422.13㎡ /127.69坪
  • 間取り
    :9DK
  • 築年月
    :1997年9月
16,800,000
  • 三和区川浦 戸建 1997年築
    越乃エステート株式会社
  • この物件を問い合わせる/無料
  • TEL: 025-520-6623 025-520-6623

物件画像

外観
間取り
物件画像
※画像クリックで拡大表示
北側外観
物件画像
※画像クリックで拡大表示
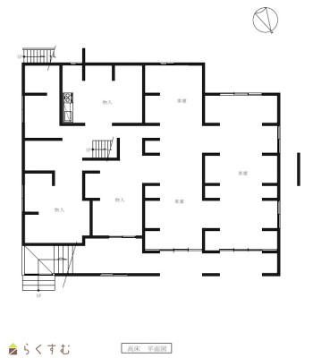
1F間取図
詳細画像
物件画像
2F間取図
物件画像
高床間取図
物件画像
北東側外観
物件画像
東側外観
物件画像
玄関ホール
物件画像
階段
物件画像
ダイニング
物件画像
キッチン
物件画像
バスルーム
物件画像
洗面所
物件画像
トイレ
物件画像
シャワールーム
物件画像
和室
物件画像
2Fホール
物件画像
洋室
物件画像
洋室
物件画像
物件から市道へのアプローチ
物件画像
地図画像


物件概要

広い敷地に駐車スペースも多くあります。高床式3階建の戸建! 敷地174.99坪 1997年築!
物件コード 00250-200072
物件名 三和区川浦 戸建 1997年築
交通 駅:妙高はねうまライン 高田駅から徒歩107分
物件所在地 新潟県上越市三和区川浦496
物件種別 中古一戸建て
構造 木造鉄筋コン 階建 地上3階建
建ぺい率/容積率 -
建物面積 1階 162.66㎡/ 2階 164.88㎡/ 3階 94.59㎡/ 計 422.13㎡ /127.69坪
土地面積 578.51㎡ /174.99坪
築年月 1997年9月(築28年)
入居(引き渡し)時期 相談
用途地域 無指定 地目 宅地  (現状:宅地)
都市計画 都市計画区域外 学校区 三和小学校(972m)・三和中学校(3,410m)
形状 間口 28m × 奥行 20.5m 道路 物件は市道(幅員10.2m)から赤道を経由。
私道 北側赤道(幅員3m) その他の制限 -
  • 三和区川浦 戸建 1997年築
    越乃エステート株式会社
  • この物件を問い合わせる/無料
  • TEL: 025-520-6623 025-520-6623

物件詳細情報

所在階/階数 - 号室 -
販売価格 16,800,000円 方位
間取り 9DK (和室:8畳、10畳、10畳、8畳、7.5畳、7.5畳) (洋室:8、10、8)
DK8
専有面積 - バルコニー面積 -
その他面積 - 駐車場 -
管理費 - 修繕積立金 -
現況 空家
仲介手数料 620,400円
固定資産税/年間 87,531円
利用制限 -
設備 日当り良好、閑静な住宅街、新築時図面あり、駐車3台以上可能、南向き、システムキッチン、カウンターキッチン、3口コンロ、追いだき機能付き、浴室乾燥機、バス1坪以上、温水洗浄便座、トイレ2か所以上、シャワー付き洗面台、エアコンあり、LPG、上水道、下水道、シューズBOX、2世帯向き、即引き渡し可能、田舎暮らし
取引態様 専任
備考 上水道・下水道・プロパンガス
屋根の雪は東側へ自然落下。
取り扱い会社

越乃エステート株式会社

新潟県上越市春日野1丁目7番4号オフィスYAMADA-B号

情報登録日 2025/10/27 次回更新予定日 2025/11/10
取引条件有効期限 2026/01/27
  • 三和区川浦 戸建 1997年築
    越乃エステート株式会社
  • この物件を問い合わせる/無料
  • TEL: 025-520-6623 025-520-6623

この物件の地図・周辺情報・行政情報

この物件の周辺情報・行政情報を詳しく見る
【周辺情報】
物件の近くにあるコンビニや銀行・学校など、アイコン付のマップで詳しく表示できます!
【行政情報】
水道料や下水道料・ガス料金など、暮らしに関係のある情報を表示しています。

担当取扱い店舗情報

取扱い店舗画像
越乃エステート株式会社
TEL: 025-520-6623
所在地: 新潟県上越市春日野1丁目7番4号オフィスYAMADA-B号
交通: 春日山駅より徒歩8分
営業時間: 9:00~17:00/定休日:水・日
免許番号: 新潟県知事(1)第5592号
所属団体名: 公益社団法人 全日本不動産協会 新潟県本部
取引態様: 専任
ホームページ: https://koshino-e.com