新潟県上越市大潟区潟町517-7 中古一戸建て 6DK 2,800,000円の物件情報

価格変更! 学校や保育園も徒歩圏! コンビニも近くにあります! 鵜の浜海岸まで徒歩10分。

物件名/所在地 詳細 価格
大潟区潟町 中古戸建6DK
新潟県上越市大潟区潟町517-7
  • 土地面積
    :469㎡ /141.87坪
  • 建物面積
    :137.46㎡ /41.58坪
  • 間取り
    :6DK
  • 築年月
    :1974年5月
2,800,000
  • 大潟区潟町 中古戸建6DK
    越乃エステート株式会社
  • この物件を問い合わせる/無料
  • TEL: 025-520-6623 025-520-6623

物件画像

外観
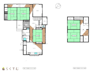
間取り
物件画像
※画像クリックで拡大表示
北側外観
物件画像
※画像クリックで拡大表示
間取図
詳細画像
物件画像
南側外観
物件画像
玄関
物件画像
1F居間6帖
物件画像
キッチン
物件画像
トイレ
物件画像
浴室
物件画像
1F洋室6帖
物件画像
1F和室8~6帖
物件画像
2F和室6帖
物件画像
2F和室8帖
物件画像
2F廊下&収納
物件画像
車庫&納屋
物件画像
車庫図
物件画像
1F洗面
物件画像
接道
物件画像
地図画像


物件概要

室内も綺麗にお使いの住宅です! 車庫1台分&納屋2階建て有り。
物件コード 00250-200067
物件名 大潟区潟町 中古戸建6DK
交通 駅:信越線 潟町駅から徒歩7分
物件所在地 新潟県上越市大潟区潟町517-7
物件種別 中古一戸建て
構造 木造 階建 地上2階建
建ぺい率/容積率 50%/100%
建物面積 1階 104.34㎡/ 2階 33.12㎡/ 計 137.46㎡ /41.58坪
土地面積 469㎡ /141.87坪
築年月 1974年5月(築51年)
入居(引き渡し)時期 相談
用途地域 第1種低層住居専用地域 地目 宅地  (現状:宅地)
都市計画 市街化区域 学校区 大潟町小学校(1,517m)・大潟町中学校(449m)
形状 間口 4m × 奥行 18m 道路 私道(各所有権あり) 
私道 幅員5m その他の制限 -
  • 大潟区潟町 中古戸建6DK
    越乃エステート株式会社
  • この物件を問い合わせる/無料
  • TEL: 025-520-6623 025-520-6623

物件詳細情報

所在階/階数 - 号室 -
販売価格 2,800,000円 方位
間取り 6DK (和室:6畳、6畳、8畳、6畳、8畳) (洋室:6)
DK10
専有面積 - バルコニー面積 -
その他面積 126㎡ /38.11坪  敷地面積の内、進入路の道路部分(地目:公衆用道路) 駐車場 -
管理費 - 修繕積立金 -
現況 空家
仲介手数料 330,000円
利用制限 -
設備 日当り良好、閑静な住宅街、駐車3台以上可能、南向き、3口コンロ、追いだき機能付き、温水洗浄便座、エアコンあり、都市ガス、上水道、浄化槽、床下収納、シューズBOX、田舎暮らし
取引態様 専任
備考 ・都市ガス、上水道、浄化槽。敷地面積の内126㎡は公道面積。
・道路の除雪は、近くの建築会社に依頼し除雪を実施。
・未登記建物(車庫・納屋)は売主負担で登記。
取り扱い会社

越乃エステート株式会社

新潟県上越市春日野1丁目7番4号オフィスYAMADA-B号

情報登録日 2025/10/27 次回更新予定日 2025/11/10
取引条件有効期限 2026/01/27
  • 大潟区潟町 中古戸建6DK
    越乃エステート株式会社
  • この物件を問い合わせる/無料
  • TEL: 025-520-6623 025-520-6623

この物件の地図・周辺情報・行政情報

この物件の周辺情報・行政情報を詳しく見る
【周辺情報】
物件の近くにあるコンビニや銀行・学校など、アイコン付のマップで詳しく表示できます!
【行政情報】
水道料や下水道料・ガス料金など、暮らしに関係のある情報を表示しています。
セブン-イレブン 上越大潟店まで380m
杉田医院まで260m
上越市立まつかぜ保育園まで290m
大型総合事務所まで1000m
市立体操場ジムリーナまで400m
ナルス大潟店まで1200m
鵜の浜海岸まで750m

※カメラのアイコンがある場合は、マウスをポイントするとその施設の画像がご覧いただけます。


担当取扱い店舗情報

取扱い店舗画像
越乃エステート株式会社
TEL: 025-520-6623
所在地: 新潟県上越市春日野1丁目7番4号オフィスYAMADA-B号
交通: 春日山駅より徒歩8分
営業時間: 9:00~17:00/定休日:水・日
免許番号: 新潟県知事(1)第5592号
所属団体名: 公益社団法人 全日本不動産協会 新潟県本部
取引態様: 専任
ホームページ: https://koshino-e.com