新潟県長岡市北園町9-3付近 新築一戸建て 3LDK 25,800,000円の物件情報

【当日見学予約大歓迎】 ■原信城岡店まで車約3分 ■蔵王橋まで車約3分!川西へも行きやすい立地 ■前面道路に消雪パイプ有 ■駐車3台可能

物件名/所在地 詳細 価格
(新築住宅)長岡市北園町第1
新潟県長岡市北園町9-3付近
  • 土地面積
    :148.36㎡ /44.87坪
  • 建物面積
    :105.3㎡ /31.85坪
  • 間取り
    :3LDK
  • 築年月
    :2026年10月
25,800,000
  • (新築住宅)長岡市北園町第1
    新潟土地建物販売センター 株式会社
  • この物件を問い合わせる/無料
  • TEL: 0258-89-8245 0258-89-8245

物件画像

外観
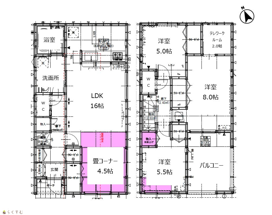
間取り
物件画像
※画像クリックで拡大表示
10月完成予定!同施工会社様の類似物件へご案内します。
物件画像
※画像クリックで拡大表示
全居室収納付♪住み心地のいい大きさ。お問い合わせ下さい♪
詳細画像
物件画像
区画図 駐車3台可能
物件画像
※現地写真いれてください 写真なければ削除※
物件画像
【ご購入者様特典のメンテナンス制度】
物件画像
耐震装置【SAFE365】搭載
物件画像
ベタ基礎工法採用 より丈夫な土台を築く為にこだわっています。
物件画像
住宅性能表示制度において耐震、劣化対策など、最高等級を取得
物件画像
(参考写真)フローリング 傷に強く、美しい仕上がり。
物件画像
(参考写真)畳コーナー
物件画像
(参考写真)キッチン収納
物件画像
(参考写真)浄水器付き水栓
物件画像
(参考写真)高断熱浴槽
物件画像
(参考写真)浴室暖房乾燥機
物件画像
(参考写真)洗面台 ミラー扉の内側はすべて収納スペース♪
物件画像
(参考写真)温水洗浄機能付きトイレ
物件画像
(参考写真)インナーバルコニーには物干し付
物件画像
(参考写真)お財布にも環境にも優しい省エネ給湯器
物件画像
(参考写真)モニターフォン 録画機能付き
物件画像
(参考写真)防犯カメラ
物件画像
(参考写真)電気自動車充電コンセント


物件概要

◆毎日営業中!当日のご内覧大歓迎!いつでもご案内します!!◆急なご来店でも相談出来ます◆豊富な知識と経験を基に丁寧にアドバイスします!先ずはお電話、メール、LINEにてお問合せ下さい♪
物件コード 00239-200648
物件名 (新築住宅)長岡市北園町第1
交通 駅:信越線 北長岡駅から徒歩19分、バス:宝1丁目から徒歩3分
物件所在地 新潟県長岡市北園町9-3付近
物件種別 新築一戸建て
構造 木造 階建 地上2階建
建ぺい率/容積率 60%/200%
建物面積 1階 51.84㎡/ 2階 53.46㎡/ 計 105.3㎡ /31.85坪
土地面積 148.36㎡ /44.87坪
築年月 2026年10月完成予定
入居(引き渡し)時期 相談
用途地域 準工業地域 地目 宅地
都市計画 市街化区域 学校区 新町小学校(1,700m)・北中学校(550m)
形状 - 道路 南側6.0m公道
私道 - その他の制限 建築基準法22条指定区域
  • (新築住宅)長岡市北園町第1
    新潟土地建物販売センター 株式会社
  • この物件を問い合わせる/無料
  • TEL: 0258-89-8245 0258-89-8245

物件詳細情報

所在階/階数 - 号室 -
販売価格 25,800,000円 方位
間取り 3LDK (洋室:8.0、5.5、5.0)
LDK20.5
2階に2帖のテレワークルーム有
専有面積 - バルコニー面積 -
その他面積 - 駐車場 -
管理費 - 修繕積立金 -
現況 空家
仲介手数料 917,400円
利用制限 -
設備 整形地、前面道路6m以上、日当り良好、閑静な住宅街、スーパー近く、耐震構造、LDK15畳以上、全室フローリング、駐車場3台以上、南向き、TVインターホン、複層ガラス、ディンプルキー、システムキッチン、カウンターキッチン、浄水器、3口コンロ、ガスコンロ設置済み、追いだき機能付き、浴室暖房乾燥機、バス1坪以上、温水洗浄便座、シャワー付き洗面台、24時間換気システム、省エネ給湯、高気密高断熱住宅、都市ガス、上水道、下水道、電気、全居室収納あり、床下収納、シューズBOX
取引態様 一般
備考 【教育】
新町小学校 約1700m 徒歩約22分
北中学校 約550m 徒歩約7分

【交通】
JR信越本線 北長岡駅 徒歩約19分
越後交通 宝1丁目 徒歩約3分

■■売って終わりにしない、充実のアフターサービス体制■■
◎アフターサービスの専門スタッフが、迅速・丁寧にご対応
◎独自のメンテナンス制度で設備の故障や建物の傷を無償修理
◎ご購入後のお困り事も、充実した体制で手厚くサポート

■■選べるプレゼント■■
◎エアコンや照明などの新生活に必要な設備を無料でプレゼント
取り扱い会社

新潟土地建物販売センター 株式会社

新潟県長岡市台町1-7-331階

情報登録日 2026/01/28 次回更新予定日 2026/04/05
取引条件有効期限 2026/12/31
  • (新築住宅)長岡市北園町第1
    新潟土地建物販売センター 株式会社
  • この物件を問い合わせる/無料
  • TEL: 0258-89-8245 0258-89-8245

この物件の地図・周辺情報・行政情報

この物件の周辺情報・行政情報を詳しく見る
【周辺情報】
物件の近くにあるコンビニや銀行・学校など、アイコン付のマップで詳しく表示できます!
【行政情報】
水道料や下水道料・ガス料金など、暮らしに関係のある情報を表示しています。
セブン-イレブン 長岡下々条1丁目店(コンビニ)まで500m
新潟県立精神医療センター(病院)まで660m

※カメラのアイコンがある場合は、マウスをポイントするとその施設の画像がご覧いただけます。


担当取扱い店舗情報

取扱い店舗画像
新潟土地建物販売センター 株式会社
TEL: 0258-89-8245
所在地: 新潟県長岡市台町1-7-331階
交通: 長岡駅
営業時間: 9:00~18:00/定休日:なし
免許番号: 新潟県知事(3)第5151号
所属団体名: 公社 新潟県宅地建物取引協会 新潟支部
取引態様: 一般
ホームページ: https://niigata-tochitate.jp/