新潟県長岡市古正寺1丁目3027付近 新築一戸建て 3LDK 58,600,000円の物件情報

【長岡市古正寺に佇む、ミサワホーム施工の高品質住宅】 ■仲介手数料不要 ■前面道路8m、消雪パイプ完備 ■駐車3台可能 ■ファミクロや納戸など豊富な収納あり ■教育・生活環境も良好

物件名/所在地 詳細 価格
(新築住宅)長岡市古正寺プラザA棟
新潟県長岡市古正寺1丁目3027付近
  • 土地面積
    :232.7㎡ /70.39坪
  • 建物面積
    :111.78㎡ /33.81坪
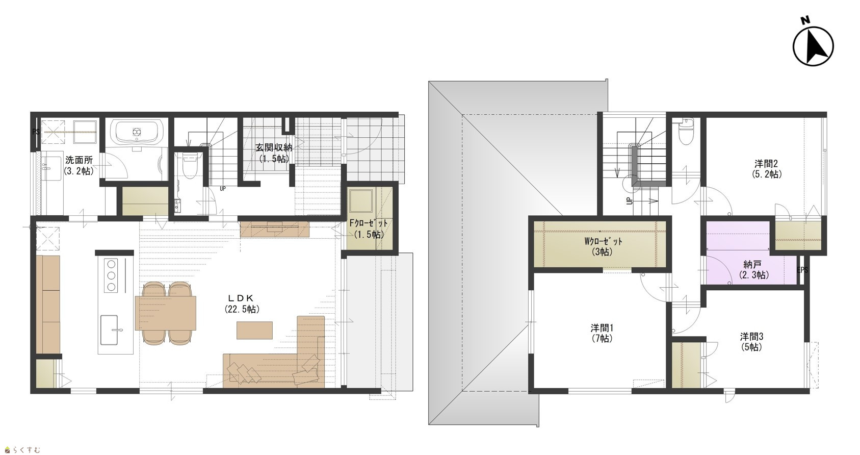
  • 間取り
    :3LDK
  • 築年月
    :2025年10月
58,600,000
  • (新築住宅)長岡市古正寺プラザA棟
    新潟土地建物販売センター 株式会社
  • この物件を問い合わせる/無料
  • TEL: 0258-89-8245 0258-89-8245

物件画像

外観
間取り
物件画像
※画像クリックで拡大表示
重厚感と洗練が際立つミサワホーム施工のお家です。
物件画像
※画像クリックで拡大表示
ファミリークローゼットや納戸など充実した収納スペースを完備!
詳細画像
物件画像
駐車スペース3台可能
物件画像
22.5帖の広々LDKは折り上げ天井&間接照明でおしゃれ空間
物件画像
大きな窓が2面にあり、明るさとお庭の眺めを楽しめる開放的空間
物件画像
1.5帖のファミリークローゼット付きでLDKまわりもすっきり
物件画像
IHコンロ&食洗機付きの使いやすいキッチンです。
物件画像
背面にはカップボードとパントリーが揃い、見た目も使い勝手も◎
物件画像
デザインもこだわったワイドな洗面台で、おしゃれに機能的な空間
物件画像
スタイリッシュな物干し機付き。収納棚はシンプルながら実用的。
物件画像
浴室乾燥暖房機付きバスルームは、雨の日も快適に。
物件画像
タンクレストイレ&独立手洗い器で、スマート&清潔感のある空間
物件画像
2階洋室7帖 エアコン&WIC付きで快適&収納たっぷり♪
物件画像
3帖のウォークインクローゼット。洋服も荷物もしっかり収納◎
物件画像
2階洋室5.2帖 クローゼットとワイドな窓が魅力のお部屋です
物件画像
2階洋室5帖 明るい2面採光&収納完備の居心地◎
物件画像
2.3帖の納戸付きで、季節物や大きな荷物の収納に便利◎
物件画像
扉付き収納で玄関がすっきり。生活感を感じさせない空間に!
物件画像
1.5帖の玄関収納。家族みんなの荷物もラクラク収納可能!
物件画像
前面道路は消雪パイプ完備の東側8m幅員です。


物件概要

収納力にこだわる方におすすめの一邸です。 ファミリークローゼットや納戸などの豊富な収納に加え、22.5帖の広々LDKで快適な暮らしを実現! 徒歩圏内には生活・教育環境も整った安心の住環境です♪
物件コード 00239-200567
物件名 (新築住宅)長岡市古正寺プラザA棟
交通 バス:古正寺中央から徒歩2分
物件所在地 新潟県長岡市古正寺1丁目3027付近
物件種別 新築一戸建て
構造 木造 階建 地上2階建
建ぺい率/容積率 60%/200%
建物面積 1階 62.1㎡/ 2階 49.68㎡/ 計 111.78㎡ /33.81坪
土地面積 232.7㎡ /70.39坪
築年月 2025年10月(築2ヶ月)
入居(引き渡し)時期 相談
用途地域 第1種中高層住居専用地域 地目 宅地
都市計画 市街化区域 学校区 大島小学校(1,000m)・大島中学校(550m)
形状 間口 11.0m × 奥行 19.7m 道路 東側8.0m公道
私道 - その他の制限 法22条
  • (新築住宅)長岡市古正寺プラザA棟
    新潟土地建物販売センター 株式会社
  • この物件を問い合わせる/無料
  • TEL: 0258-89-8245 0258-89-8245

物件詳細情報

所在階/階数 - 号室 -
販売価格 58,600,000円 方位
間取り 3LDK (洋室:7、5.2、5)
LDK22.5
ファミリークローゼット1.5帖・玄関収納1.2帖あり
専有面積 - バルコニー面積 -
その他面積 - 駐車場 -
管理費 - 修繕積立金 -
現況 空家
仲介手数料 なし
利用制限 -
設備 前面道路6m以上、日当り良好、閑静な住宅街、スーパー近く、長期優良住宅、設計住宅性能評価付き、耐震構造、BELS/省エネ基準適合認定建物、建物確認・完了検査済証あり、LDK15畳以上、全室フローリング、天井高2.5m以上、駐車場3台以上、南向き、庭あり、TVインターホン、複層ガラス、ディンプルキー、システムキッチン、カウンターキッチン、IHクッキングヒーター、食器洗浄乾燥機、3口コンロ、追いだき機能付き、バス1坪以上、温水洗浄便座、シャワー付き洗面台、エアコン、床暖房、24時間換気システム、省エネ給湯、高気密高断熱住宅、ウッドデッキ・テラス、都市ガス、上水道、下水道、電気、ウォークインクローゼット、全居室収納あり、床下収納、シューズインクローゼット、シューズBOX、BS端子、LAN端子、照明器具付き、バリアフリー
取引態様 一般
備考 【教育機関】
大島小学校 約1000m 徒歩約13分
大島中学校 約550m 徒歩約7分

【交通機関】
越後交通バス 古正寺中央 徒歩約2分

【備考】
・町会費:金額未定
・消雪設備年会費:25,000円/年

―情報物件―
■高気密高断熱住宅で一年中快適にお過ごしいただけます
■エアコン2台設置済で初期費用が抑えられます
■高天井&ハイサッシによる開放的なLDK空間
■寒い季節も足元から温まる床暖房付き
■ガーデニングや家庭菜園が楽しめる庭付き
■敷地内にEVコンセント完備◎電気自動車の充電が可能です
取り扱い会社

新潟土地建物販売センター 株式会社

新潟県長岡市台町1-7-331階

情報登録日 2025/10/17 次回更新予定日 2025/12/30
取引条件有効期限 2026/12/31
  • (新築住宅)長岡市古正寺プラザA棟
    新潟土地建物販売センター 株式会社
  • この物件を問い合わせる/無料
  • TEL: 0258-89-8245 0258-89-8245

この物件の地図・周辺情報・行政情報

この物件の周辺情報・行政情報を詳しく見る
【周辺情報】
物件の近くにあるコンビニや銀行・学校など、アイコン付のマップで詳しく表示できます!
【行政情報】
水道料や下水道料・ガス料金など、暮らしに関係のある情報を表示しています。
セブン-イレブン 長岡古正寺店(コンビニ)まで350m
原信 古正寺店(スーパー)まで390m
イオン長岡店(スーパー)まで620m
ドラッグトップス 古正寺薬局(ドラッグストア)まで410m

※カメラのアイコンがある場合は、マウスをポイントするとその施設の画像がご覧いただけます。


担当取扱い店舗情報

取扱い店舗画像
新潟土地建物販売センター 株式会社
TEL: 0258-89-8245
所在地: 新潟県長岡市台町1-7-331階
交通: 長岡駅
営業時間: 9:00~18:00/定休日:なし
免許番号: 新潟県知事(3)第5151号
所属団体名: 公社 新潟県宅地建物取引協会 新潟支部
取引態様: 一般
ホームページ: https://niigata-tochitate.jp/