新潟県柏崎市柳田町7-21-3 新築一戸建て 3LDK 29,800,000円の物件情報

【仲介料不要】旧価格3180万円→新価格2980万円 全館空調搭載★ソーラーパネル搭載で電気代がお得♪スーパー、ホームセンター、学校すべて徒歩圏内♪

物件名/所在地 詳細 価格
柏崎市柳田町33坪3LDK+ソーラーパネル 2980万円
新潟県柏崎市柳田町7-21-3
  • 土地面積
    :193.11㎡ /58.41坪
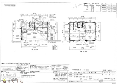
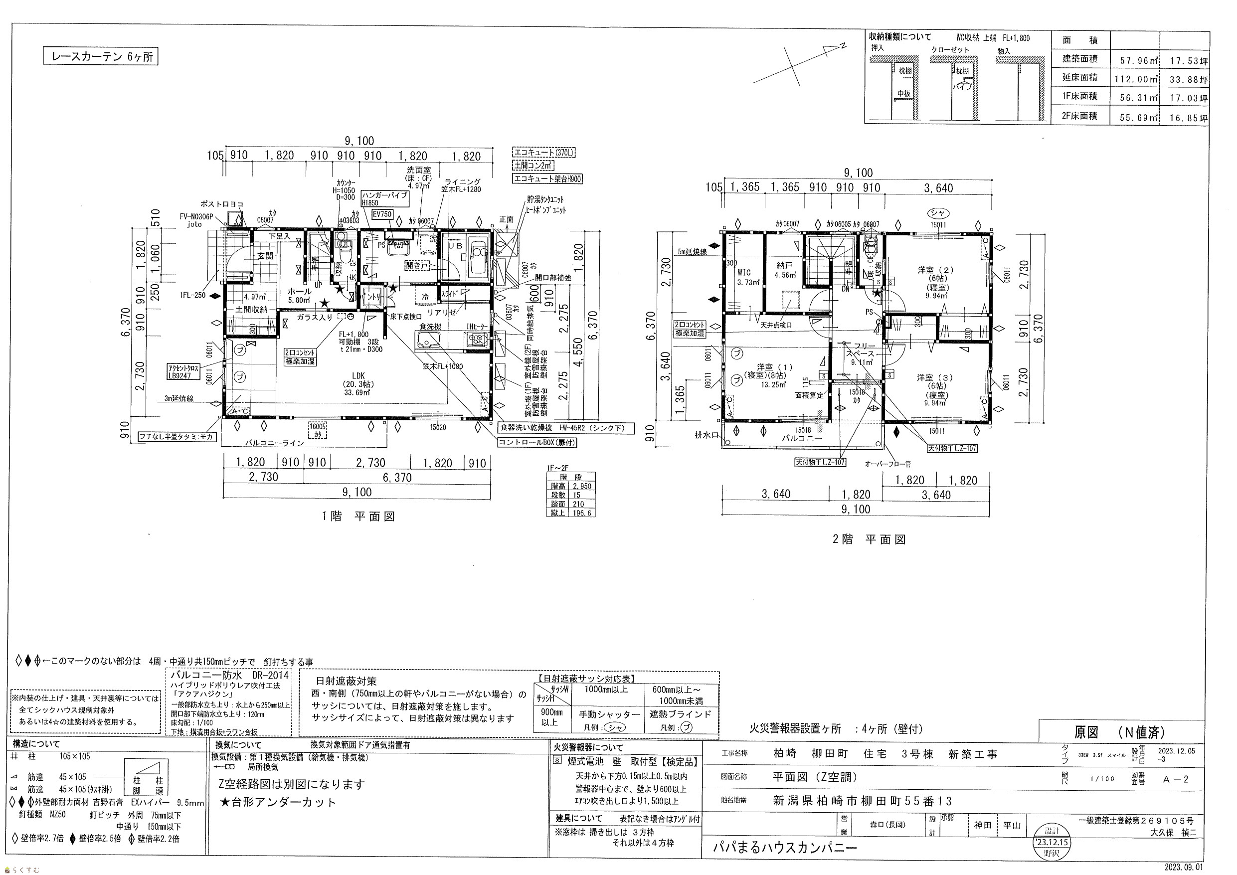
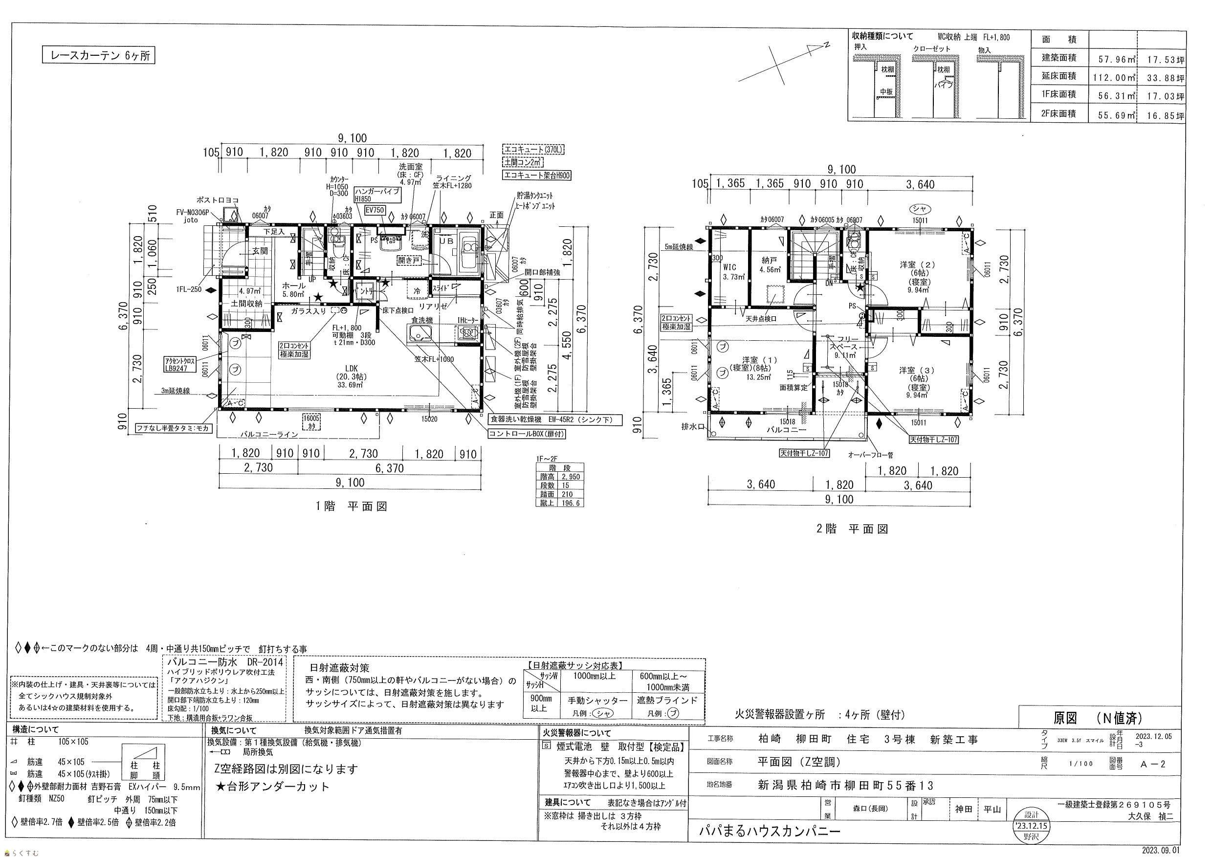
  • 建物面積
    :112㎡ /33.88坪
  • 間取り
    :3LDK
  • 築年月
    :2024年4月
29,800,000
  • 柏崎市柳田町33坪3LDK+ソーラーパネル 2980万円
    株式会社ヒノキヤグループ パパまるハウスカンパニー長岡支店
  • この物件を問い合わせる/無料
  • TEL: 0258-28-7880 0258-28-7880

物件画像

外観
間取り
物件画像
※画像クリックで拡大表示
カーポート付 4台以上駐車可能
物件画像
※画像クリックで拡大表示
プラン
詳細画像
物件画像
玄関 シューズボックス
物件画像
玄関に大型シューズクローク
物件画像
温水シャワー便座 リモコン付き
物件画像
一坪 ユニットバス
物件画像
畳コーナーが便利
物件画像
20帖の大きなLDK
物件画像
キッチン 食器棚付
物件画像
キッチン脇の収納が便利!
物件画像
汚れに強く大容量収納
物件画像
洗面室にも物干し可能
物件画像
二階にもトイレあり
物件画像
明るい二階にサンルーム 物干しに困りません
物件画像
明るい雰囲気の室内
物件画像
各居室に収納完備
物件画像
地図画像
動画


物件概要

全館空調シェアNo.1★Z空調★
物件コード 00214-200057
物件名 柏崎市柳田町33坪3LDK+ソーラーパネル 2980万円
交通 駅:越後線 西中通駅から徒歩25分、バス:瑞穂中学校入口から徒歩3分
物件所在地 新潟県柏崎市柳田町7-21-3
物件種別 新築一戸建て
構造 木造 階建 地上2階建
建ぺい率/容積率 80%/200%
建物面積 1階 56.31㎡/ 2階 55.69㎡/ 計 112㎡ /33.88坪
土地面積 193.11㎡ /58.41坪
築年月 2024年4月(築1年)
入居(引き渡し)時期 随時入居(引き渡し)可
用途地域 近隣商業地域 地目 宅地  (現状:宅地)
都市計画 - 学校区 槇原小学校(466m)・瑞穂中学校(196m)
形状 間口 10m × 奥行 19m 道路 位置指定道路
私道 - その他の制限 -
  • 柏崎市柳田町33坪3LDK+ソーラーパネル 2980万円
    株式会社ヒノキヤグループ パパまるハウスカンパニー長岡支店
  • この物件を問い合わせる/無料
  • TEL: 0258-28-7880 0258-28-7880

物件詳細情報

所在階/階数 - 号室 -
販売価格 29,800,000円 方位 西
間取り 3LDK (洋室:8、6、6)
LDK20帖
専有面積 - バルコニー面積 -
その他面積 - 駐車場 -
管理費 - 修繕積立金 -
現況 指定なし
仲介手数料 なし
利用制限 -
設備 整形地、前面道路6m以上、日当り良好、閑静な住宅街、スーパー近く、BELS/省エネ基準適合認定建物、瑕疵担保保険付き、建物確認・完了検査済証あり、フラット35S適合、LDK15畳以上、駐車場2台以上、TVインターホン、複層ガラス、システムキッチン、IHクッキングヒーター、食器洗浄乾燥機、3口コンロ、追いだき機能付き、バス1坪以上、温水洗浄便座、シャワー付き洗面台、エアコン、24時間換気システム、全室エアコン、オール電化、太陽光発電システム、省エネ給湯、高気密高断熱住宅、ウッドデッキ・テラス、上水道、下水道、電気、ウォークインクローゼット、全居室収納あり、シューズBOX、照明器具付き、即引き渡し可能、バリアフリー
取引態様 売主
備考 旧価格3180万円→新価格2980万円
玄関を開けてすぐ、徒歩1分100mにスーパー、ホームセンターがあり、日頃のお買い物も楽々♪槇原小学校まで1400m徒歩17分、瑞穂中学校400m徒歩5分。国道8号線へ車で30秒!5.55KWのソーラーパネル搭載!!電気代超お得♪
1階にも内干しスペースがありお洗濯も楽々。
タタミコーナー、2階納戸有り!!
毎日楽しく楽々快適に過ごせます!!
ご見学のご予約は下記担当者へお気軽にご連絡ください!
担当 さとう 080-7112-0169
取り扱い会社

株式会社ヒノキヤグループ パパまるハウスカンパニー長岡支店

新潟県長岡市古正寺3丁目10番地1

情報登録日 2025/09/07 次回更新予定日 2026/01/04
取引条件有効期限 2024/10/31
  • 柏崎市柳田町33坪3LDK+ソーラーパネル 2980万円
    株式会社ヒノキヤグループ パパまるハウスカンパニー長岡支店
  • この物件を問い合わせる/無料
  • TEL: 0258-28-7880 0258-28-7880

この物件の地図・周辺情報・行政情報

この物件の周辺情報・行政情報を詳しく見る
【周辺情報】
物件の近くにあるコンビニや銀行・学校など、アイコン付のマップで詳しく表示できます!
【行政情報】
水道料や下水道料・ガス料金など、暮らしに関係のある情報を表示しています。
ローソン 柏崎藤元町店(コンビニ)まで840m
原信 柏崎東店(スーパー)まで290m
共創未来 柳田町薬局(ドラッグストア)まで140m
クスリのアオキ 松美店(ドラッグストア)まで780m
柏崎春日郵便局(郵便局)まで890m

※カメラのアイコンがある場合は、マウスをポイントするとその施設の画像がご覧いただけます。


担当取扱い店舗情報

取扱い店舗画像
株式会社ヒノキヤグループ パパまるハウスカンパニー長岡支店
TEL: 0258-28-7880
所在地: 新潟県長岡市古正寺3丁目10番地1
交通:
営業時間: 8:30~17:30/定休日:祝祭日・年末年始・お盆
免許番号: 国土交通大臣(1)第10420号
所属団体名: 公社新潟県宅地建物取引協会 長岡支部
取引態様: 売主
ホームページ: https://www.papamaru.jp/