新潟県糸魚川市横町2丁目2番8号 中古一戸建て 6DK 11,800,000円の物件情報

■糸魚川駅まで徒歩9分■駐車スペース7台■6DK■収納豊富

物件名/所在地 詳細 価格
糸魚川市横町2丁目 中古物件
新潟県糸魚川市横町2丁目2番8号
  • 土地面積
    :535.35㎡ /161.94坪
  • 建物面積
    :227.25㎡ /68.74坪
  • 間取り
    :6DK
  • 築年月
    :1975年8月
11,800,000
  • 糸魚川市横町2丁目 中古物件
    株式会社 ナンバ管理
  • この物件を問い合わせる/無料
  • TEL: 0258-86-7835 0258-86-7835

物件画像

外観
間取り
物件画像
※画像クリックで拡大表示
外観
物件画像
※画像クリックで拡大表示
間取り
詳細画像
物件画像
駐車場
物件画像
駐車場
物件画像
エントランス
物件画像
玄関
物件画像
玄関
物件画像
ダイニング
物件画像
キッチン
物件画像
和室
物件画像
和室
物件画像
洗面所
物件画像
バスルーム
物件画像
1階廊下
物件画像
和室
物件画像
洋室
物件画像
収納
物件画像
洗面所
物件画像
トイレ
物件画像
設備
物件画像
物件画像
印刷用地図


物件概要

糸魚川駅まで徒歩9分!大家族様向け6DK中古住宅です。ゆとりのある間取でご家族のプライベートが保たれます。また、収納も豊富で荷物が多くてもすっきりと収まります。駐車スペースは7台分!一部を貸駐車場としてお使いいただくことも可能です。
物件コード 00195-200296
物件名 糸魚川市横町2丁目 中古物件
交通 駅:日本海ひすいライン 糸魚川駅から徒歩10分、バス:四ツ角から徒歩2分
物件所在地 新潟県糸魚川市横町2丁目2番8号
物件種別 中古一戸建て
構造 木造 階建 地上2階地下1階建
建ぺい率/容積率 60%/200%
建物面積 1階 136.29㎡/ 2階 71.16㎡/ 3階 19.8㎡/ 計 227.25㎡ /68.74坪
土地面積 535.35㎡ /161.94坪
築年月 1975年8月(築50年)
入居(引き渡し)時期 相談
用途地域 第1種住居地域 地目 宅地
都市計画 非線引き都市計画区域 学校区 糸魚川小学校(485m)・糸魚川中学校(1,147m)
形状 - 道路 北側:幅員約10m、南側:幅員約2.5m
私道 - その他の制限 -
  • 糸魚川市横町2丁目 中古物件
    株式会社 ナンバ管理
  • この物件を問い合わせる/無料
  • TEL: 0258-86-7835 0258-86-7835

物件詳細情報

所在階/階数 - 号室 -
販売価格 11,800,000円 方位
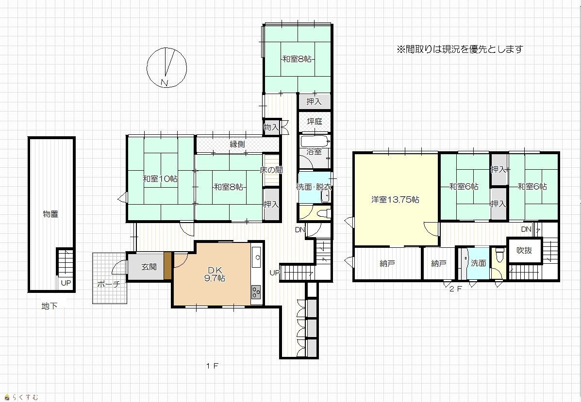
間取り 6DK (和室:8畳、8畳、6畳、6畳、10畳) (洋室:13.7)
DK9.7
専有面積 - バルコニー面積 -
その他面積 - 駐車場 -
管理費 - 修繕積立金 -
現況 空家
仲介手数料 なし
利用制限 -
設備 スーパー近く、駐車3台以上可能、バス1坪以上、トイレ2か所以上、都市ガス、上水道、下水道
取引態様 売主
備考 リフォーム工事完了しました。ぜひお問い合わせください!
■リフォーム内容
キッチン・レンジフード新品入替/洗面化粧台新品入替/給湯器新品入替/ふすま・障子張替え/DK・玄関ホール一部フロアタイル重ね張り/1階10畳和室クロス張替え/2階洋室フローリング張り/一部窓ガラス新品入替/TVアンテナ新品入替/大工工事/電気工事/設備工事/ハウスクリーニング

■担当者
 西田(携帯:080-4438-4001)
取り扱い会社

株式会社 ナンバ管理

新潟県長岡市表町1丁目9番地7

情報登録日 2025/10/16 次回更新予定日 2025/11/10
取引条件有効期限 2025/12/31
  • 糸魚川市横町2丁目 中古物件
    株式会社 ナンバ管理
  • この物件を問い合わせる/無料
  • TEL: 0258-86-7835 0258-86-7835

この物件の地図・周辺情報・行政情報

この物件の周辺情報・行政情報を詳しく見る
【周辺情報】
物件の近くにあるコンビニや銀行・学校など、アイコン付のマップで詳しく表示できます!
【行政情報】
水道料や下水道料・ガス料金など、暮らしに関係のある情報を表示しています。
セブン-イレブン 糸魚川中央店(コンビニ)まで860m
マルニハピー 横町店(スーパー)まで370m
富山第一銀行 糸魚川支店(銀行)まで170m
第四北越銀行 糸魚川支店(銀行)まで360m
原田医院(病院)まで260m

※カメラのアイコンがある場合は、マウスをポイントするとその施設の画像がご覧いただけます。


担当取扱い店舗情報

取扱い店舗画像
株式会社 ナンバ管理
TEL: 0258-86-7835
所在地: 新潟県長岡市表町1丁目9番地7
交通: 長岡駅
営業時間: 9:00~18:00/定休日:
免許番号: 新潟県知事(2)第5396号
所属団体名: (公社)新潟県宅地建物取引業協会長岡支部
取引態様: 売主
ホームページ: https://www.nanba-kanri.co.jp/