新潟県上越市大貫4丁目34-12 投資物件・その他 1,500,000円の物件情報

現在賃貸中!

物件名/所在地 詳細 価格
表面利回り
大貫4丁目オーナーチェンジ物件 150万円
新潟県上越市大貫4丁目34-12
  • 土地面積
    :464.71㎡ /140.57坪
  • 建ぺい率
    :50%
  • 容積率
    :80%
1,500,000
25.6%
(満室想定時)
  • 大貫4丁目オーナーチェンジ物件 150万円
    RE不動産(㈱ディライト)
  • この物件を問い合わせる/無料
  • TEL: 025-546-7108 025-546-7108

物件画像

外観
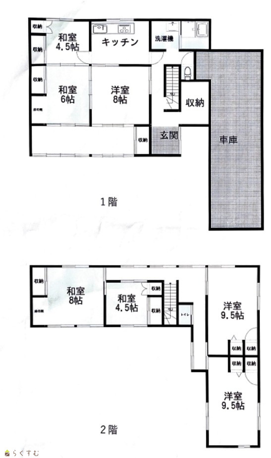
間取り
物件画像
※画像クリックで拡大表示
外観
物件画像
※画像クリックで拡大表示
間取り
詳細画像
物件画像
トイレ
物件画像
洋室
物件画像
駐車場
物件画像
洗面所
物件画像
洋室
物件画像
キッチン
物件画像
洋室
物件画像
和室
物件画像
バスルーム
物件画像
洗面所
物件画像
内装
物件画像
洋室
物件画像
印刷用地図


物件概要

2025年にフローリング等張替え済み!
物件コード 00184-200175
物件名 大貫4丁目オーナーチェンジ物件 150万円
交通 駅:妙高はねうまライン 高田駅から徒歩25分、バス:関根学園高校前から徒歩6分
物件所在地 新潟県上越市大貫4丁目34-12
物件種別 投資物件・その他
物件区分 その他
構造 木造 階建 地上2階建
建ぺい率/容積率 50%/80%
建物面積 1階 73.94㎡/ 2階 33.08㎡/ 計 107.02㎡ /32.37坪
土地面積 464.71㎡ /140.57坪
築年月 1971年7月(築54年)
入居(引き渡し)時期 相談
用途地域 第1種低層住居専用地域 地目 山林  (現状:宅地)
都市計画 市街化区域 学校区 高田西小学校(950m)・城東中学校(2,700m)
形状 - 道路 南側道路:公衆用道路 幅員約4.0m
私道 - その他の制限 -
  • 大貫4丁目オーナーチェンジ物件 150万円
    RE不動産(㈱ディライト)
  • この物件を問い合わせる/無料
  • TEL: 025-546-7108 025-546-7108

物件詳細情報

所在階/階数 - 号室 -
販売価格 1,500,000円 方位 -
表面利回り(満室想定時) 25.6% 満室想定年収 384,000円 (想定月収: 32,000円 )
現行利回り 25.6% 現行年間年収 384,000円
住戸数 1
間取り 7DK
専有面積 - バルコニー面積 -
その他面積 - 駐車場 3台無料
管理費 - 修繕積立金 -
現況 賃貸中
仲介手数料 330,000円
利用制限 ペット:相談、楽器:相談
設備 南側道路面す、駐車場(近隣含む)、公営水道、都市ガス、浄化槽
取引態様 仲介
備考 ※現在貸家として賃貸中です。
※現況有姿にて引き渡しとなります。
※現況家賃3.2万円(利回り25.6%)
※増築未登記の物件になります(登記に関しては要相談)
取り扱い会社

RE不動産(㈱ディライト)

新潟県上越市春日新田5-1-7

情報登録日 2025/08/23 次回更新予定日 2026/05/21
取引条件有効期限 2027/08/23
  • 大貫4丁目オーナーチェンジ物件 150万円
    RE不動産(㈱ディライト)
  • この物件を問い合わせる/無料
  • TEL: 025-546-7108 025-546-7108

この物件の地図・周辺情報・行政情報

この物件の周辺情報・行政情報を詳しく見る
【周辺情報】
物件の近くにあるコンビニや銀行・学校など、アイコン付のマップで詳しく表示できます!
【行政情報】
水道料や下水道料・ガス料金など、暮らしに関係のある情報を表示しています。
ナルス 高田西店(スーパー)まで870m
セブン銀行ATM(銀行)まで870m

※カメラのアイコンがある場合は、マウスをポイントするとその施設の画像がご覧いただけます。


担当取扱い店舗情報

取扱い店舗画像
RE不動産(㈱ディライト)
TEL: 025-546-7108
所在地: 新潟県上越市春日新田5-1-7
交通: 妙高はねうまライン 直江津駅より徒歩約17分
営業時間: 8:30~17:30/定休日:第2,第4水曜日・第1、第3土曜日、日曜祝日
免許番号: 新潟県知事(1)第5615号
所属団体名: 公益社団法人 全日本不動産協会 新潟県本部
取引態様: 仲介
ホームページ: http://re-fudousan.com