新潟県小千谷市城内3丁目1-25 中古一戸建て 4LDK 6,800,000円の物件情報

物件名/所在地 詳細 価格
小千谷市城内 売住宅
新潟県小千谷市城内3丁目1-25
  • 土地面積
    :255.17㎡ /77.18坪
  • 建物面積
    :244.33㎡ /73.9坪
  • 間取り
    :4LDK
  • 築年月
    :1991年12月
6,800,000
  • 小千谷市城内 売住宅
    嵐南エステート 株式会社
  • この物件を問い合わせる/無料
  • TEL: 0256-64-8886 0256-64-8886

物件画像

外観
間取り
物件画像
※画像クリックで拡大表示
外観
物件画像
※画像クリックで拡大表示
間取り
詳細画像


物件概要

物件コード 00170-200122
物件名 小千谷市城内 売住宅
交通 駅:上越線 小千谷駅から徒歩35分
物件所在地 新潟県小千谷市城内3丁目1-25
物件種別 中古一戸建て
構造 木造 階建 地上3階建
建ぺい率/容積率 60%/200%
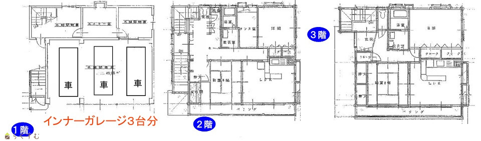
建物面積 1階 80.71㎡/ 2階 84.83㎡/ 3階 78.79㎡/ 計 244.33㎡ /73.9坪
土地面積 255.17㎡ /77.18坪
築年月 1991年12月(築34年)
入居(引き渡し)時期 相談
用途地域 第1種住居地域 地目 宅地
都市計画 - 学校区 小千谷小学校(824m)・小千谷中学校(384m)
形状 - 道路 -
私道 - その他の制限 -
  • 小千谷市城内 売住宅
    嵐南エステート 株式会社
  • この物件を問い合わせる/無料
  • TEL: 0256-64-8886 0256-64-8886

物件詳細情報

所在階/階数 - 号室 -
販売価格 6,800,000円 方位 -
間取り 4LDK
2LDK × 2
専有面積 - バルコニー面積 -
その他面積 - 駐車場 -
管理費 - 修繕積立金 -
現況 空家
仲介手数料 なし
利用制限 -
設備 都市ガス、上水道、下水道
取引態様 売主
備考 -
取り扱い会社

嵐南エステート 株式会社

新潟県三条市南四日町3-7-44

情報登録日 2025/12/18 次回更新予定日 2026/01/05
取引条件有効期限 2026/03/31
  • 小千谷市城内 売住宅
    嵐南エステート 株式会社
  • この物件を問い合わせる/無料
  • TEL: 0256-64-8886 0256-64-8886

この物件の地図・周辺情報・行政情報

この物件の周辺情報・行政情報を詳しく見る
【周辺情報】
物件の近くにあるコンビニや銀行・学校など、アイコン付のマップで詳しく表示できます!
【行政情報】
水道料や下水道料・ガス料金など、暮らしに関係のある情報を表示しています。

担当取扱い店舗情報

取扱い店舗画像
嵐南エステート 株式会社
TEL: 0256-64-8886
所在地: 新潟県三条市南四日町3-7-44
交通:
営業時間: 9:00~18:00/定休日:水曜日
免許番号: 新潟県知事(2)第5325号
所属団体名: 全日本不動産協会 新潟県本部
取引態様: 売主
ホームページ: http://rn-estate.com/