新潟県上越市中田原105-35 中古一戸建て 3LDK 31,000,000円の物件情報

☆3LDK築浅未入居住宅 ☆スーパーなど生活に必要な商業施設が近く利便性の良い住環境です 

物件名/所在地 詳細 価格
中田原 築浅未入居住宅
新潟県上越市中田原105-35
  • 土地面積
    :238.06㎡ /72.01坪
  • 建物面積
    :101.02㎡ /30.55坪
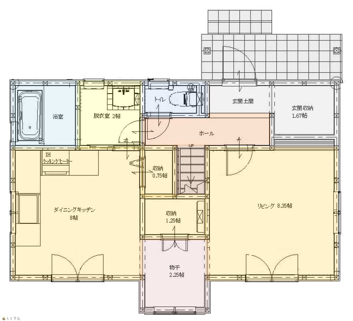
  • 間取り
    :3LDK
  • 築年月
    :2021年5月
31,000,000
  • 中田原 築浅未入居住宅
    株式会社 すむとこ
  • この物件を問い合わせる/無料
  • TEL: 025-520-7103 025-520-7103

物件画像

外観
間取り
物件画像
※画像クリックで拡大表示
外観
物件画像
※画像クリックで拡大表示
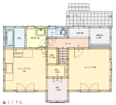
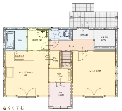
間取り1F
詳細画像
物件画像
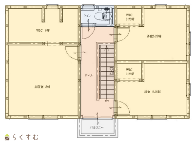
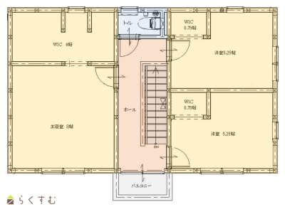
間取り2F
物件画像
ダイニングキッチン
物件画像
主寝室
物件画像
玄関収納
物件画像
洗面台
物件画像
南窓辺
物件画像
浴室
物件画像
地図画像


物件概要

☆低炭素住宅 ☆自然素材の風合いを生かしたナチュラルなデザイン《カンパーニュ》  
物件コード 00160-200273
物件名 中田原 築浅未入居住宅
交通 駅:妙高はねうまライン 南高田駅から徒歩11分、バス:商業高校前から徒歩4分
物件所在地 新潟県上越市中田原105-35
物件種別 中古一戸建て
構造 木造 階建 地上2階建
建ぺい率/容積率 60%/200%
建物面積 1階 51.34㎡/ 2階 49.68㎡/ 計 101.02㎡ /30.55坪
土地面積 238.06㎡ /72.01坪
築年月 2021年5月(築4年)
入居(引き渡し)時期 随時入居(引き渡し)可
用途地域 準工業地域 地目 宅地  (現状:宅地)
都市計画 市街化区域 学校区 黒田小学校(1,463m)・城西中学校(758m)
形状 間口 13.17m × 奥行 18.08m 道路 上越市道 北西側幅員7m
私道 - その他の制限 景観法
  • 中田原 築浅未入居住宅
    株式会社 すむとこ
  • この物件を問い合わせる/無料
  • TEL: 025-520-7103 025-520-7103

物件詳細情報

所在階/階数 - 号室 -
販売価格 31,000,000円 方位
間取り 3LDK (洋室:8、5.25、5.25)
リビング8.35帖 ダイニングキッチン8帖
物干室2.25帖 玄関収納1.67帖 WIC4帖 
専有面積 - バルコニー面積 -
その他面積 - 駐車場 -
管理費 - 修繕積立金 -
現況 空家
仲介手数料 なし
利用制限 -
設備 日当り良好、閑静な住宅街、瑕疵担保保険対象、新築時図面あり、建物確認・完了検査済証あり、全室フローリング、築10年以内、駐車2台可能、駐車3台以上可能、南向き、TVインターホン、複層ガラス、システムキッチン、IHクッキングヒーター、食器洗浄乾燥機、追いだき機能付き、浴室乾燥機、バス1坪以上、温水洗浄便座、エアコンあり、24時間換気システム、オール電化、上水道、下水道、バリアフリー、ウォークインクローゼット、全居室収納あり、シューズBOX、シューズインクローゼット
取引態様 仲介
備考 リネンカーテン・照明・エアコン付
床下冷暖房空調
トリプルサッシと木質断熱材使用
高気密高断熱”超高性能住宅”
取り扱い会社

株式会社 すむとこ

新潟県上越市下門前1705

情報登録日 2025/06/19 次回更新予定日 2026/04/06
取引条件有効期限 2026/04/14
  • 中田原 築浅未入居住宅
    株式会社 すむとこ
  • この物件を問い合わせる/無料
  • TEL: 025-520-7103 025-520-7103

この物件の地図・周辺情報・行政情報

この物件の周辺情報・行政情報を詳しく見る
【周辺情報】
物件の近くにあるコンビニや銀行・学校など、アイコン付のマップで詳しく表示できます!
【行政情報】
水道料や下水道料・ガス料金など、暮らしに関係のある情報を表示しています。

担当取扱い店舗情報

取扱い店舗画像
株式会社 すむとこ
TEL: 025-520-7103
所在地: 新潟県上越市下門前1705
交通: はねうまライン 直江津駅
営業時間: 9:00~18:00/定休日:日曜・祝祭日
免許番号: 新潟県知事(4)第4991号
所属団体名: 新潟県宅地建物取引業協会 上越支部
取引態様: 仲介
ホームページ: http://sumutoko.jp.net/