新潟県長岡市学校町2丁目6番地22 売土地・分譲地 10,980,000円の物件情報

◆選べる家具・家電30万円分プレゼントキャンペーン実施中!◆長岡駅まで徒歩圏内(徒歩約13分/1000m) ◆アクロスプラザ長岡、業務スーパーまで1km圏内 ◆角地(北、東向き)

物件名/所在地 詳細 価格
長岡市学校町2丁目 売土地 ※建築条件付き
新潟県長岡市学校町2丁目6番地22
  • 土地面積
    :143.02㎡ /43.26坪
  • 坪単価
    :253,814円/坪
  • 建ぺい率
    :60%
  • 容積率
    :200%
10,980,000
  • 長岡市学校町2丁目 売土地 ※建築条件付き
    ハーバーエステート株式会社 
  • この物件を問い合わせる/無料
  • TEL: 0120-228-815 0120-228-815

物件画像

外観
間取り
物件画像
※画像クリックで拡大表示
外観
物件画像
※画像クリックで拡大表示
敷地図
詳細画像
物件画像
外観
物件画像
外観
物件画像
東側道路
物件画像
北側道路
物件画像
建物プラン例:参考建物価格 2270.4万円(税込)
物件画像
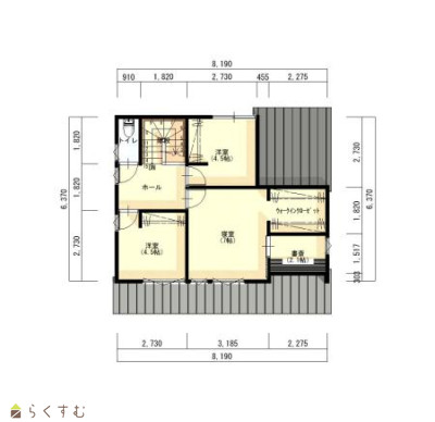
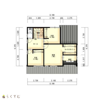
建物プラン例:1F間取図(面積 57.13㎡)
物件画像
建物プラン例:2F間取図(面積 44.02㎡)
物件画像
建物プラン例:配置図


物件概要

物件コード 00154-200706
物件名 長岡市学校町2丁目 売土地 ※建築条件付き
交通 駅:信越線 長岡駅から徒歩14分、バス:学校町1丁目から徒歩3分
物件所在地 新潟県長岡市学校町2丁目6番地22
物件種別 売土地・分譲地
物件区分 売土地
構造 - 階建 -
建ぺい率/容積率 60%/200%
建物面積 -
土地面積 143.02㎡ /43.26坪
築年月 -
入居(引き渡し)時期 相談
用途地域 第2種中高層住居専用地域 地目 宅地
都市計画 市街化区域 学校区 四郎丸小学校(459m)・南中学校(1,173m)
形状 間口 10.75m × 奥行 13.18m 道路 公道 北 幅員7.3m/公道 東 幅員4.3m
私道 - その他の制限 法22条指定区域、第二種高度地区
  • 長岡市学校町2丁目 売土地 ※建築条件付き
    ハーバーエステート株式会社 
  • この物件を問い合わせる/無料
  • TEL: 0120-228-815 0120-228-815

物件詳細情報

所在階/階数 - 号室 -
販売価格 10,980,000円 方位 -
間取り -
専有面積 - バルコニー面積 -
その他面積 - 駐車場 -
管理費 - 修繕積立金 -
現況 更地
仲介手数料 なし
利用制限 -
設備 角地、前道6m以上、学校近く、所有権、下水道(前面道路)、電気、都市ガス(宅地内)、上水道(宅地内)
取引態様 売主
備考 選べる家具・家電30万円分プレゼントキャンペーン実施中!
対象となるお客様:
2025年12月31日までに弊社で対象物件のご契約・お引渡しを完了していただいたお客様。
対象物件に対して弊社に直接お問い合わせをいただいたお客様。(他社様の紹介などは除きます。)
プレゼント内容:
・本物件のプレゼント上限金額は、30万円(税込み)です。
 物件によって異なりますので、各物件の詳細ページをご覧ください。
・家具の場合は弊社家具カタログからプレゼント上限金額分お選びください。
 カタログ:https://my.ebook5.net/herbarhouse/furniture_2025/
・家電の場合は空気清浄機、ヘアードライヤー、オーブンレンジ、ロボット掃除機などの中から
プレゼント上限金額分をお選びください。(これらの内容は、一例です。)

※ハーバーハウス㈱の建築条件付き土地です。
※汚水マスは売主負担で新設予定です。

【建物プラン例】
物件参考価格 2270万円
1階面積 約57.13㎡(約17.28坪)
2階面積 約44.02㎡(約13.31坪)
延床面積 約101.15㎡(約30.59坪)

「建物参考価格」は以下のものをすべて含んだ【コミコミ価格】です!
本体工事費 土工・基礎工事 ・木工事・屋根・板金工事・タイル工事・外壁工事・左官工事・建具工事・内装工事・塗装工事・雑工事・電気設備工事・給排水衛生設備工事 ・全室照明器具 付帯工事費 敷地調査・地盤調査・地盤改良工事・仮設工事・外構工事・屋外電気工事・屋外給排水工事 諸経費その他 設計費・現場管理費・諸経費(工事保険、営業経費など)
標準設備 システムキッチン・IHクッキングヒーター・システムバス・洗面化粧台・エコキュート・玄関ドア・玄関収納・全室建具・全室照明 ※LED・各室収納・暖房便座ウォシュレットトイレ・2階暖房便座ウォシュレットトイレ・断熱材・断熱サッシetc 標準仕様 次世代省エネルギー基準適合・オール電化仕様・高気密・高断熱仕様・換気計画・高耐震、高耐久仕様・耐雪対策・結露、カビ、ダニ対策・シックハウス対策・シロアリ対策・防火対策etc
取り扱い会社

ハーバーエステート株式会社 

新潟県長岡市神田町2-1-2

情報登録日 2025/10/30 次回更新予定日 2025/11/14
取引条件有効期限 2025/08/31
  • 長岡市学校町2丁目 売土地 ※建築条件付き
    ハーバーエステート株式会社 
  • この物件を問い合わせる/無料
  • TEL: 0120-228-815 0120-228-815

この物件の地図・周辺情報・行政情報

この物件の周辺情報・行政情報を詳しく見る
【周辺情報】
物件の近くにあるコンビニや銀行・学校など、アイコン付のマップで詳しく表示できます!
【行政情報】
水道料や下水道料・ガス料金など、暮らしに関係のある情報を表示しています。

担当取扱い店舗情報

取扱い店舗画像
ハーバーエステート株式会社 
TEL: 0120-228-815
所在地: 新潟県長岡市神田町2-1-2
交通: 長岡駅
営業時間: 10:00~18:00/定休日:無休
免許番号: 国土交通大臣(2)第9588号
所属団体名: 全日本不動産協会 新潟県本部
取引態様: 売主
ホームページ: http://www.niigata-tochi.com/