長岡市新産4丁目6番地4丁目6番地 投資物件・その他 13,800,000円の物件情報

新産4丁目の事務所・工場・倉庫に最適 建物内外の状態は良好 駐車は建物内4台・屋外3台以上可に付き修理工場などにも有用 融雪用井戸(組合加入条件)で冬季の営業も安心 月額13万円で賃貸借も可です

物件名/所在地 詳細 価格
表面利回り
新産4丁目 売事務所兼倉庫
長岡市新産4丁目6番地4丁目6番地
  • 土地面積
    :168.69㎡ /51.02坪
  • 建ぺい率
    :60%
  • 容積率
    :200%
13,800,000
-
  • 新産4丁目 売事務所兼倉庫
    有限会社 アットホーム
  • この物件を問い合わせる/無料
  • TEL: 0258-37-5450 0258-37-5450

物件画像

外観
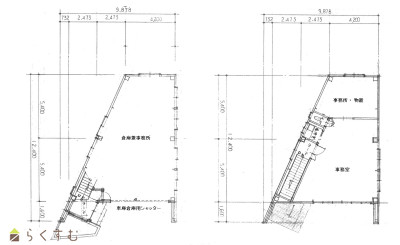
間取り
物件画像
※画像クリックで拡大表示
外観
物件画像
※画像クリックで拡大表示
間取り
詳細画像
物件画像
外観
物件画像
外観
物件画像
外観
物件画像
外観
物件画像
外観
物件画像
外観
物件画像
外観
物件画像
外観
物件画像
外観
物件画像
外観
物件画像
外観
物件画像
外観
物件画像
外観
物件画像
外観
物件画像
外観
物件画像
印刷用地図


物件概要

賃貸としてお貸しも出来ます 月額13万円(税込) 敷金3ケ月 その他ご相談下さい
物件コード 00144-200100
物件名 新産4丁目 売事務所兼倉庫
交通 駅:信越線 来迎寺駅から徒歩69分、バス:長峰団地入口から徒歩2分
物件所在地 長岡市新産4丁目6番地4丁目6番地
物件種別 投資物件・その他
物件区分 その他
構造 鉄骨 階建 地上2階建
建ぺい率/容積率 60%/200%
建物面積 1階 73.61㎡/ 2階 72.09㎡/ 計 145.7㎡ /44.07坪
土地面積 168.69㎡ /51.02坪
築年月 1989年1月(築36年)
入居(引き渡し)時期 随時入居(引き渡し)可
用途地域 準工業地域 地目 宅地
都市計画 市街化区域 学校区 才津小学校(1,100m)・西中学校(2,251m)
形状 - 道路 長岡市道9m(融雪・歩道も含めて)に面する
私道 - その他の制限 -
  • 新産4丁目 売事務所兼倉庫
    有限会社 アットホーム
  • この物件を問い合わせる/無料
  • TEL: 0258-37-5450 0258-37-5450

物件詳細情報

所在階/階数 - 号室 -
販売価格 13,800,000円 方位 -
表面利回り(満室想定時) - 満室想定年収 - (想定月収: - )
現行利回り - 現行年間年収 -
住戸数 -
間取り -
専有面積 - バルコニー面積 -
その他面積 - 駐車場 -
管理費 - 修繕積立金 -
現況 空家
仲介手数料 なし
利用制限 -
設備 駐車場(近隣含む)、公営水道、都市ガス、下水道、事業向け
取引態様 一般
備考 -
取り扱い会社

有限会社 アットホーム

新潟県長岡市西神田町2-5-17

情報登録日 2025/10/12 次回更新予定日 2025/11/10
取引条件有効期限 2025/12/11
  • 新産4丁目 売事務所兼倉庫
    有限会社 アットホーム
  • この物件を問い合わせる/無料
  • TEL: 0258-37-5450 0258-37-5450

この物件の地図・周辺情報・行政情報

この物件の周辺情報・行政情報を詳しく見る
【周辺情報】
物件の近くにあるコンビニや銀行・学校など、アイコン付のマップで詳しく表示できます!
【行政情報】
水道料や下水道料・ガス料金など、暮らしに関係のある情報を表示しています。

担当取扱い店舗情報

取扱い店舗画像
有限会社 アットホーム
TEL: 0258-37-5450
所在地: 新潟県長岡市西神田町2-5-17
交通: 長岡駅
営業時間: 9:00~18:00/定休日:不定休
免許番号: 新潟県知事(5)第4575号
所属団体名: 公益社団法人 全日本不動産協会 新潟県本部
取引態様: 一般
ホームページ: http://www.athome-no1.co.jp/